Preferiti

Sponsorizza

Stampa

Negozio in affitto a Ferrara in via contrari

  • 1.100€
  • 2 locali
  • 70 mq
  • Affittasi

Affitasi Negozio in Centro Storico, Via Contrari, Ferrara.
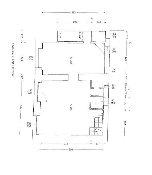
Locale commerciale di mq 70, sviluppato su due livelli e composto da due vani al piano terra ed un vano al piano primo.
Un servizio con due vetrine su strada.
Perfetto per boutique, vendita al dettaglio e attivit artigianali.
DISPONIBILE DA MAGGIO.
Potete contattarci senza impegno per ricevere informazioni o per fissare un appuntamento per visionare questo Negozio in affitto in Via Contrari, Ferrara.
COD.4088 ? 1.100 Contatta l'inserzionista

PROGETTO CASA FERRARAPROGETTO CASA FERRARA
VIA SARACENO 44
44100, Ferrara (Ferrara)
Visualizza Telefono

INFORMAZIONI SULL'IMMOBILE

  • Riferimento: 4088
  • Tipologia: Negozio in Affitto
  • Locali: 2 Locali ( 1 camera e un bagno)
  • Stato: Ottimo
  • Prezzo: 1.100 €
  • Prezzo al mq: 16 €
  • Riscaldamento: Autonomo
  • Spazio Auto: No
  • Modificato il: 21/02/2026
  • Scheda: SC9605716

Stabile

  • Piani Totali: 2
  • Classe Energetica: n.d.

Mappa e indirizzo

Negozio sito in via contrari
44100 Ferrara (Ferrara)
Centro
mappa mostra l'annuncio su mappa

Galleria Fotografica

Contatta l'inserzionista

PROGETTO CASA FERRARA

PROGETTO CASA FERRARA di Ferrara propone in affitto questo immobile, contattali subito!

Annunci simili

Annunci immobiliari a Ferrara (FE)

Copyright Š 2026 PCase.it. All rights reserved. Sede operativa MILANO. P.IVA 08508420968 - Condizioni d'uso e privacy