Preferiti

Sponsorizza

Stampa

Magazzino in vendita a Savona

  • 130.000€
  • 2 locali
  • 325 mq
  • Vendesi

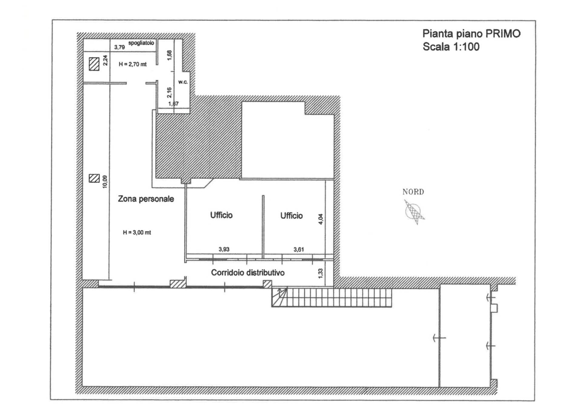
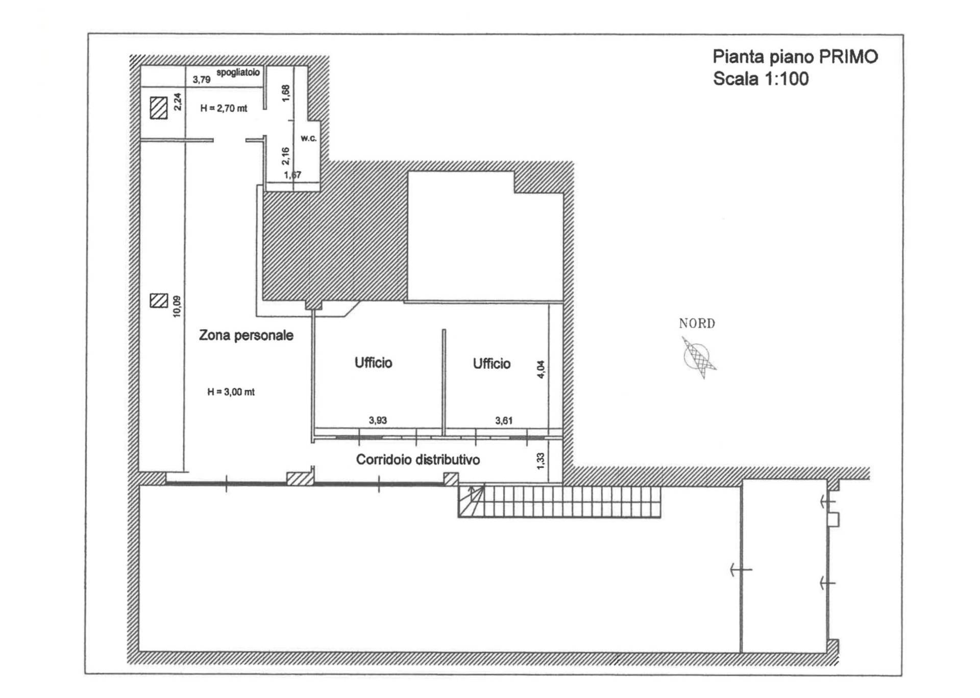
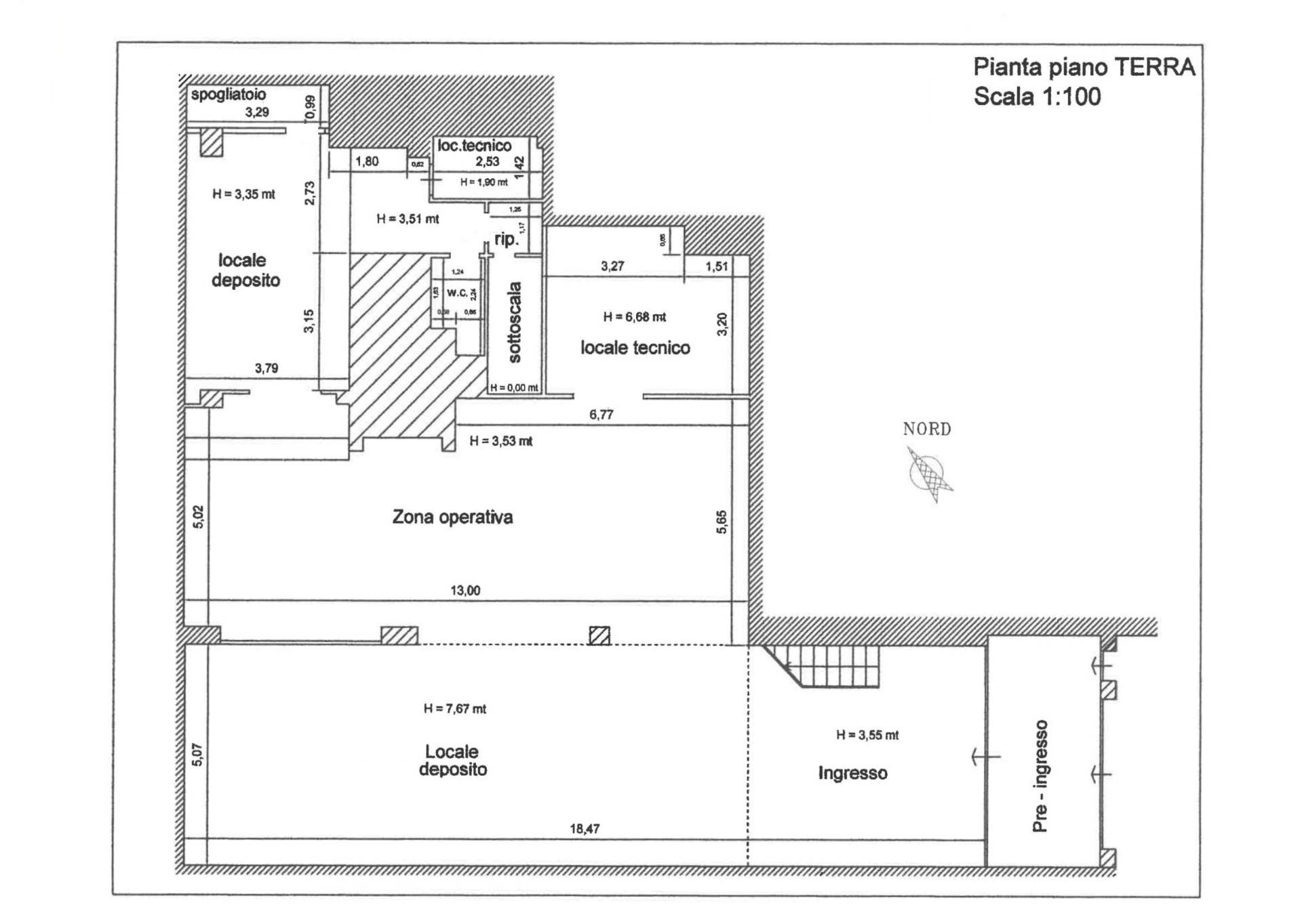
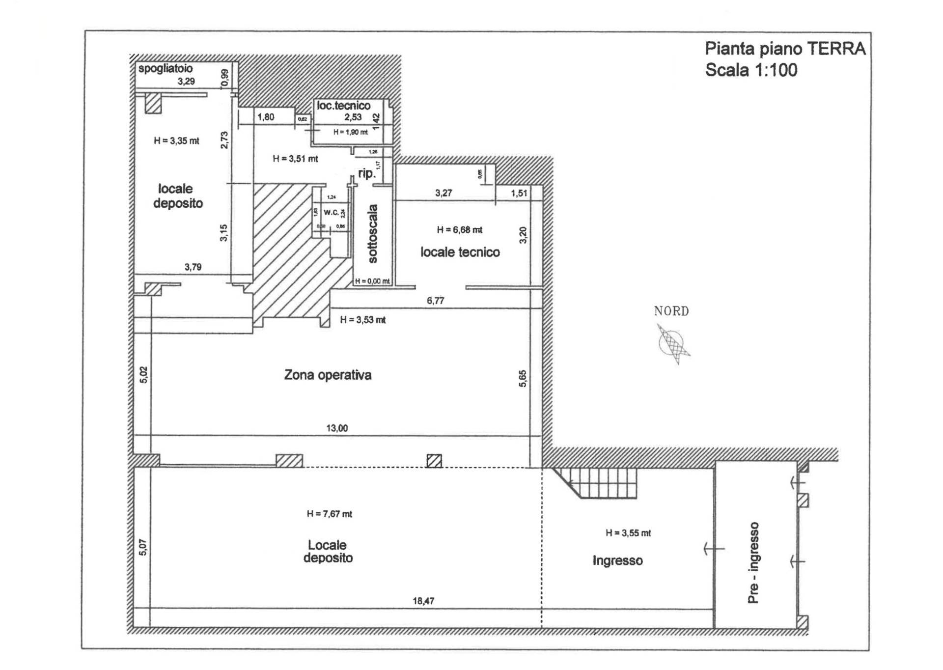
IDEALE ARTIGIANO AMPIA METRATURA 5 LOCALI Giannetto Immobiliare propone ampio magazzino soppalcato con ingresso carraio ed ingresso pedonale PIANO TERRA ___ deposito, zona operativa, altri depositi, bagno per un totale di 215 mq PIANO PRIMO ___ soppalco collegato da scala interna destinato attualmente ad uffici, zona spogliatoi e un bagno con doccia per un totale di circa 110 mq Serranda motorizzata PLANIMETRIE NELLE ULTIME FOTO POSSIBILITA' DI TRASFORMAZIONE IN AUTORIMESSA ANCHE PARZIALE Contattateci senza impegno per avere maggiori informazioni o per fissare una visita dellimmobile 019.84.29.869 - 349.67.43.593 Contatta l'inserzionista

INFORMAZIONI SULL'IMMOBILE

  • Riferimento: F16-1530
  • Tipologia: Magazzino in Vendita
  • Locali: 2 Locali ( 1 camera)
  • Stato: Ottimo
  • Prezzo: 130.000 €
  • Prezzo al mq: 400 €
  • Modificato il: 16/02/2026
  • Scheda: SC9507408

Stabile

  • Anno: 1965
  • Piani Totali: 5
  • Classe Energetica: n.d.

Mappa e indirizzo

17100 Savona (Savona)
mappa mostra l'annuncio su mappa

Galleria Fotografica

Contatta l'inserzionista

Studio Immobiliare Giannetto sas di Paolo Giannetto & C.

Studio Immobiliare Giannetto sas di Paolo Giannetto & C. di Savona propone in vendita questo immobile, contattali subito!

Annunci immobiliari a Savona (SV)

Copyright Š 2026 PCase.it. All rights reserved. Sede operativa MILANO. P.IVA 08508420968 - Condizioni d'uso e privacy