Preferiti

Sponsorizza

Stampa

Magazzino in affitto a Varese in viale borri 162

  • 850€
  • 215 mq
  • Affittasi

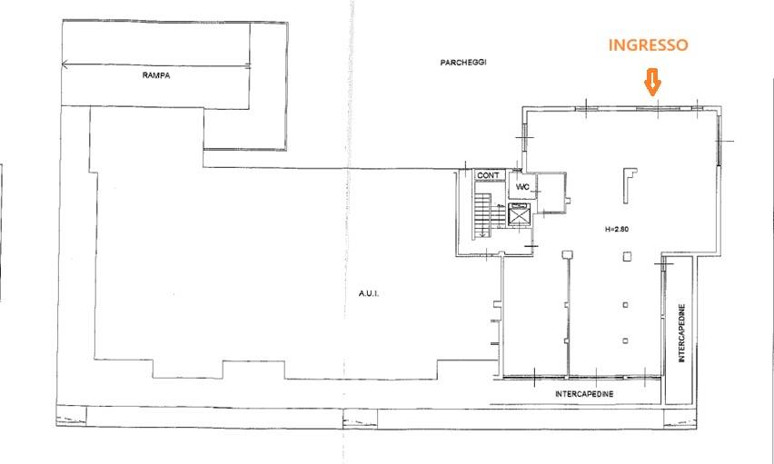
Varese, zona Viale Borri : Laboratorio/ Magazzino / Deposito con posto auto e zona ufficio In zona Viale Borri a Varese, proponiamo in locazione open space ad uso laboratorio/ magazzino/deposito al piano terreno con ufficio, un bagno...***.*******.** per logistica leggera o uso deposito.
Descrizione: Limmobile composto da ampio spazio magazzino, zona ufficio separata e posto auto riservato.
La soluzione termoautonoma, caratteristica che consente una gestione indipendente dei consumi.
L' immobile necessita di alcuni interventi di ripristino di alcune pareti e di ripulita che saranno a carico della propriet.
Caratteristiche principali: Piano terreno con facile accesso Spazio magazzino/deposito Zona ufficio Posto auto Riscaldamento autonomo Stato: L'immobile si presenta in buono stato ed SUBITO DISPONIBILE.
Condizioni economiche: Canone di locazione: ?850 / mese Spese condominiali: ?1.200 / anno Ideale per: Soluzione interessante per professionisti e piccole attivit, artigiani che cercano uno spazio funzionale di laboratorio/deposito/magazzino in una zona comoda e ben servita di Varese.
Per informazioni o per fissare una visita, contattaci. Contatta l'inserzionista

Casa immobiliareCasa immobiliare
Viale Luigi Borri 125
21100, Varese (Varese)
Visualizza Telefono

INFORMAZIONI SULL'IMMOBILE

  • Riferimento: 598-LN
  • Tipologia: Magazzino in Affitto
  • Prezzo: 850 €
  • Prezzo al mq: 4 €
  • Modificato il: 06/03/2026
  • Scheda: SC9614594

Stabile

I.P.E.
69,41Kwh/m3
G

Mappa e indirizzo

Magazzino sito in viale borri, 162
21100 Varese (Varese)
Belforte, Bizzozzero, San Carlo
mappa mostra l'annuncio su mappa

Galleria Fotografica

Contatta l'inserzionista

Casa immobiliare

Casa immobiliare di Varese propone in affitto questo immobile, contattali subito!

Annunci immobiliari a Varese (VA)

Copyright Š 2026 PCase.it. All rights reserved. Sede operativa MILANO. P.IVA 08508420968 - Condizioni d'uso e privacy