Preferiti

Sponsorizza

Stampa

Negozio in affitto a Roma in corso trieste 146

  • 6.500€
  • 1 locale
  • 243 mq
  • Affittasi

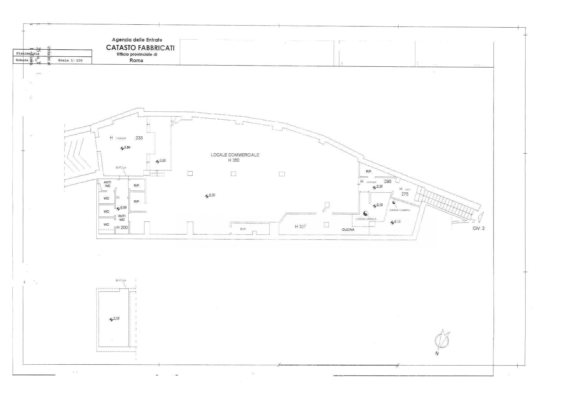
Nel cuore del quartiere Trieste, precisamente in Corso Trieste a pochi passi da Piazza Istria, Volpes Case propone in affitto un locale commerciale di mq. 243 in categoria catastale C/1 con canna fumaria e certificazione di agibilit.
Il locale commerciale a Corso Trieste angolo Via Bellinzona situato in una delle aree a pi alto passaggio pedonale e veicolare della Capitale e si sviluppa in un unico ambiente ampio e luminoso, facilmente adattabile a molteplici destinazioni duso. Attualmente composto da un grande open space, servizi igienici con antibagno, cucina con canna fumaria ed impianto a norma per il riciclo dell'aria, locali accessori ad uso ripostiglio.
Laccesso avviene sia da ingresso pedonale principale su Corso Trieste e sia da ingresso carrabile secondario di propriet in via Bellinzona, utilissimo per il carico e scarico merci ad ulteriore testimonianza della sua versatilit funzionale.
La collocazione, in un punto ad altissimo passaggio pedonale e veicolare, rende questo immobile una soluzione ideale per attivit commerciali di ristorazione o di commercio all'ingrosso che desiderano coniugare visibilit, prestigio e funzionalit.
Si loca con contratto uso commerciale per anni 6+6 a aziende referenziate in grado di fornire fideiussione bancaria.
L'immobile a Corso Trieste si pu anche acquistare con la formula del Rent to Buy pagandolo in rate mensili.
Per informazioni contattare Volpes Case Via Brenta 2/a Roma Tel. 06 32111255 - *******@*******. Volpes Case, direttamente e tramite i suoi selezionati Partner e Professionisti, offre servizi completi per ogni esigenza immobiliare: intermediazione, property management, assistenza tecnica, legale ed urbanistica, consulenza finanziaria, ristrutturazioni.
Professionalit ed esperienza per soluzioni su misura. Contatta l'inserzionista

Volpes Case srlVolpes Case srl
via Brenta 2/a
00100, Roma (Roma)
Visualizza Telefono

INFORMAZIONI SULL'IMMOBILE

  • Riferimento: V45-5574
  • Tipologia: Negozio in Affitto
  • Locali: 1 Locali ( 1 camera e 4 bagni)
  • Piano: Interrato
  • Prezzo: 6.500 €
  • Prezzo al mq: 27 €
  • Riscaldamento: Autonomo
  • Spazio Auto: No
  • Modificato il: 24/03/2026
  • Scheda: SC9580841

Stabile

  • Piano: Interrato
  • Classe Energetica: n.d.

Mappa e indirizzo

Negozio sito in corso trieste, 146
00135 Roma (Roma)
Salario, Trieste
mappa mostra l'annuncio su mappa

Metropolitana
MB
Fermata Sant'Agnese/Annibaliano a 380m
circa 6/8 min a piedi

Galleria Fotografica

Contatta l'inserzionista

Volpes Case srl

Volpes Case srl di Roma propone in affitto questo immobile, contattali subito!

Annunci immobiliari a Roma (RM)

Copyright Š 2026 PCase.it. All rights reserved. Sede operativa MILANO. P.IVA 08508420968 - Condizioni d'uso e privacy