Preferiti

Sponsorizza

Stampa

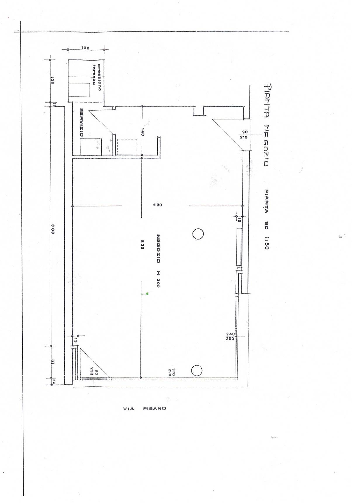
Locale commerciale in vendita a Verona in via antonio pisano 18

  • 99.000€
  • 2 locali
  • 47 mq
  • Vendesi

Negozio ristrutturato con vetrina angolare Borgo Venezia In zona Borgo Venezia, a ridosso di Piazza Isotta Nogarola, proponiamo in vendita negozio completamente ristrutturato, situato in via ad alto passaggio veicolare e pedonale.
Limmobile gode di vetrina angolare, che garantisce ottima visibilit e luminosit, ed inserito in un contesto di piccole dimensioni, con basse spese condominiali.
Il negozio climatizzato, in perfette condizioni e attualmente libero, pronto per essere utilizzato o messo a reddito senza necessit di ulteriori interventi.
Posizione strategica anche in ottica futura: la via sar interessata dal passaggio del filobus di prossima realizzazione, elemento che contribuir ad aumentare ulteriormente visibilit e valore della zona. Soluzione ideale come investimento o per attivit che necessitano di forte esposizione.
Per maggiori informazioni o per fissare una visita, contattaci. Contatta l'inserzionista

Immobiliare BazzoniImmobiliare Bazzoni
Largo Cà di Cozzi 34
37124, Verona (Verona)
Visualizza Telefono

INFORMAZIONI SULL'IMMOBILE

  • Riferimento: 163
  • Tipologia: Locale commerciale in Vendita
  • Locali: 2 Locali ( 1 camera e un bagno)
  • Piano: Terra
  • Prezzo: 99.000 €
  • Prezzo al mq: 2.106 €
  • Modificato il: 13/02/2026
  • Scheda: SC9548455

Stabile

  • Piano: Terra
  • Classe Energetica: n.d.

Mappa e indirizzo

Locale commerciale sito in via antonio pisano, 18
37142 Verona (Verona)
Borgo Venezia, Porto San Pancrazio, Santa Croce
mappa mostra l'annuncio su mappa

Galleria Fotografica

Contatta l'inserzionista

Immobiliare Bazzoni

Immobiliare Bazzoni di Verona propone in vendita questo immobile, contattali subito!

Annunci immobiliari a Verona (VR)

Copyright © 2026 PCase.it. All rights reserved. Sede operativa MILANO. P.IVA 08508420968 - Condizioni d'uso e privacy