Preferiti

Sponsorizza

Stampa

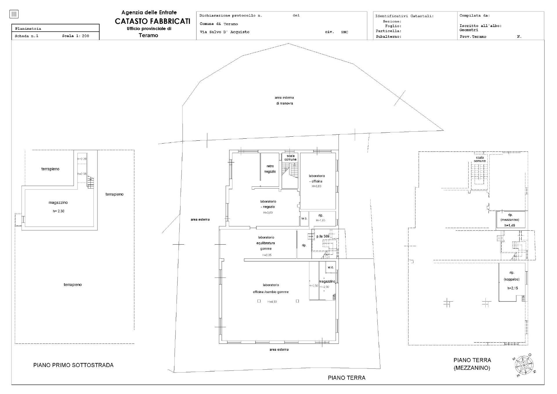
Locale commerciale in vendita a Teramo in via salvo d'acquisto

  • 420.000€
  • 2 locali
  • 509 mq
  • Vendesi

Teramo - Proponiamo in vendita un'opportunit per chi cerca un investimento sicuro con rendita garantita del 7,5% annua.
Vendesi locale commerciale accatastato "C1" di ampie dimensioni, ubicato a Piano D'Accio in posizione strategica su strada statale ad alto traffico veicolare.
L'immobile condotto in locazione dalla nota attivit commerciale denominata "Gommeur" .. Il locale ha una metratura di oltre 400 mq con ampia area esterna di circa 400 mq. La posizione strategica, l'avviamento consolidato dell'attuale affittuario, la buona visibilit e la superficie ampia e ben distribuita rendono questo locale commerciale un'ottima opportunit sia ad uso investimento e sia per chi cerca di avviare un'attivit in una zona di forte passaggio e grande interesse ***.*******.** in fase di definizione. Contatta l'inserzionista

Zuccarini ImmobiliareZuccarini Immobiliare
Corso V. Cerulli, 7-9-1-13
64100, Teramo (Teramo)
Visualizza Telefono

INFORMAZIONI SULL'IMMOBILE

  • Riferimento: 426
  • Tipologia: Locale commerciale in Vendita
  • Locali: 2 Locali ( 1 camera e un bagno)
  • Piano: Terra
  • Stato: Buono
  • Prezzo: 420.000 €
  • Prezzo al mq: 825 €
  • Riscaldamento: Autonomo
  • Modificato il: 01/04/2025
  • Scheda: SC9557894

Stabile

  • Piano: Terra
  • Classe Energetica: n.d.

Mappa e indirizzo

Locale commerciale sito in via salvo d'acquisto
64100 Teramo (Teramo)
mappa mostra l'annuncio su mappa

Galleria Fotografica

Contatta l'inserzionista

Zuccarini Immobiliare

Zuccarini Immobiliare di Teramo propone in vendita questo immobile, contattali subito!

Annunci immobiliari a Teramo (TE)

Copyright Š 2026 PCase.it. All rights reserved. Sede operativa MILANO. P.IVA 08508420968 - Condizioni d'uso e privacy