Preferiti

Sponsorizza

Stampa

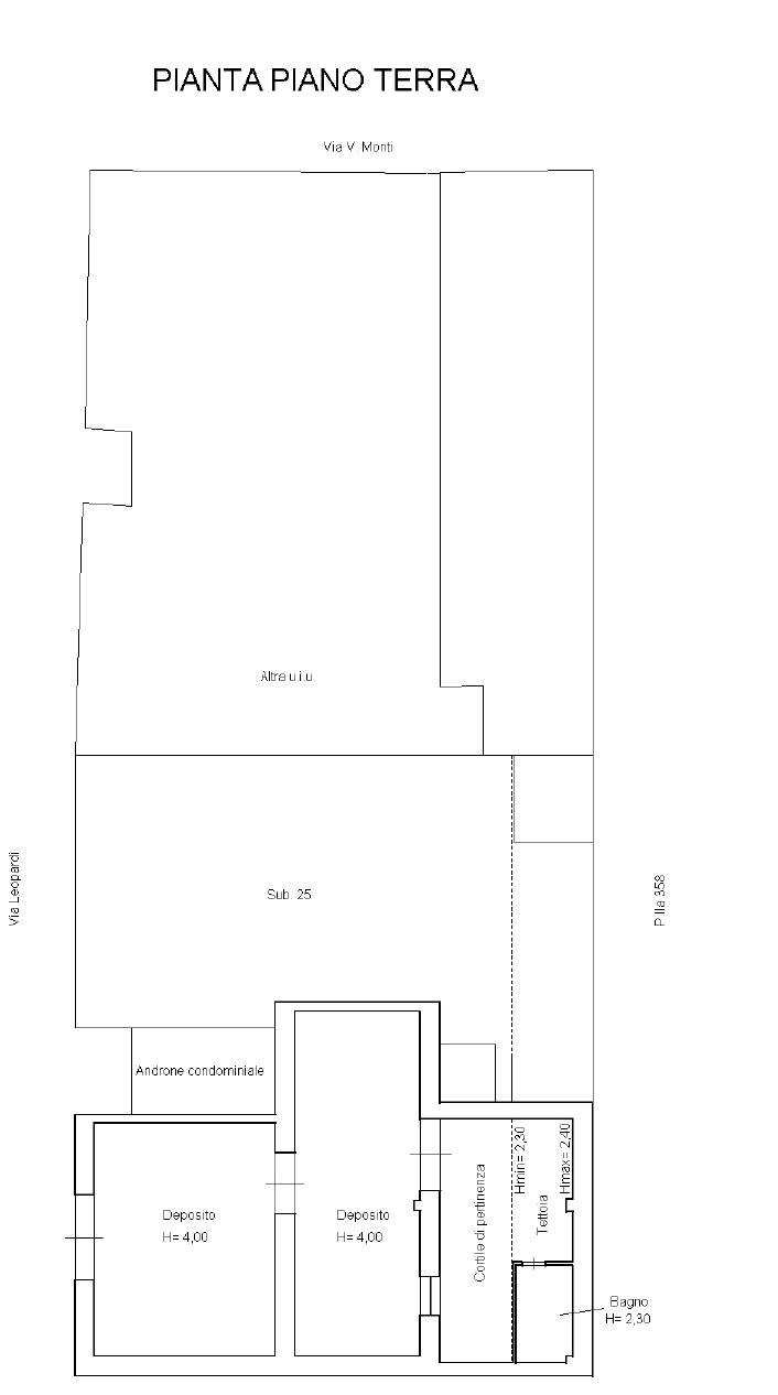
Locale commerciale in vendita a Taranto in via giacomo leopardi 67

  • 25.000€
  • 118 mq
  • Vendesi

Locale commerciale di 118mq sito in Via Giacomo Leopardi n. 67 Contatta l'inserzionista

AGENZIA GRIMALDIAGENZIA GRIMALDI
VIA REGINA ELENA 89
74121, Taranto (Taranto)
Visualizza Telefono

INFORMAZIONI SULL'IMMOBILE

  • Riferimento: 16
  • Tipologia: Locale commerciale in Vendita
  • Piano: Terra
  • Prezzo: 25.000 €
  • Prezzo al mq: 212 €
  • Modificato il: 31/03/2026
  • Scheda: SC9631646

Stabile

  • Piano: Terra
  • Classe Energetica: n.d.

Mappa e indirizzo

Locale commerciale sito in via giacomo leopardi, 67
74100 Taranto (Taranto)
mappa mostra l'annuncio su mappa

Galleria Fotografica

Contatta l'inserzionista

AGENZIA GRIMALDI

AGENZIA GRIMALDI di Taranto propone in vendita questo immobile, contattali subito!

Annunci immobiliari a Taranto (TA)

Copyright Š 2026 PCase.it. All rights reserved. Sede operativa MILANO. P.IVA 08508420968 - Condizioni d'uso e privacy