Preferiti

Sponsorizza

Stampa

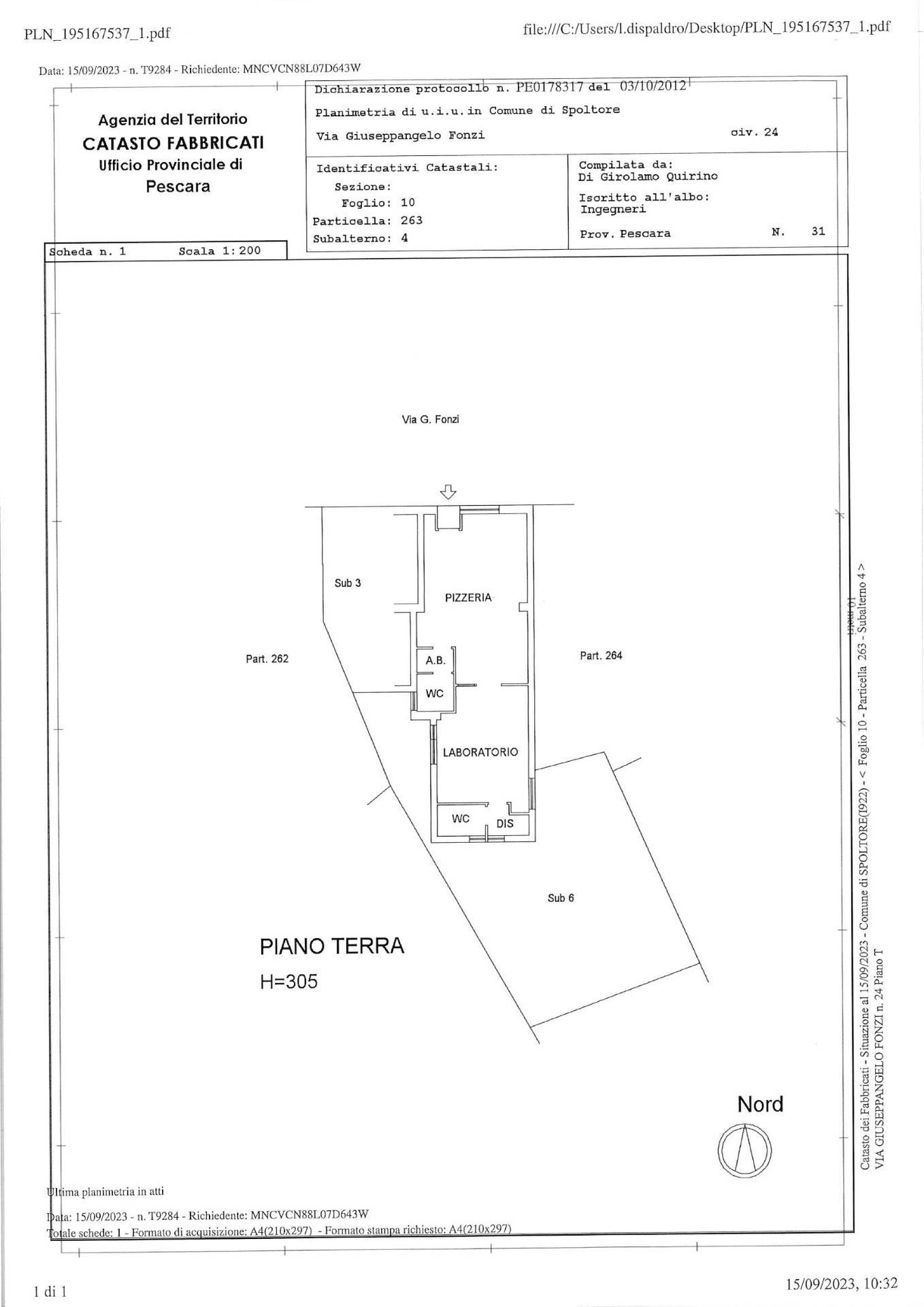
Locale commerciale in vendita a Spoltore in via g. fonzi 24

  • 95.000€
  • 1 locale
  • 82 mq
  • Vendesi

Proponiamo in vendita un interessante locale commerciale situato a Spoltore, in provincia di Pescara, in una posizione strategica e ben visibile.
Limmobile rappresenta unopportunit unica per chi desidera avviare o ampliare la propria attivit: per anni ha ospitato una storica e rinomata pizzeria del territorio, diventando un punto di riferimento per la clientela locale.
Questa lunga e consolidata esperienza ne testimonia lelevato potenziale commerciale e la forte vocazione per attivit nel settore food, ma si presta perfettamente anche ad altre tipologie di business.
Il locale si presenta con spazi funzionali e versatili, ideali per essere personalizzati in base alle proprie esigenze imprenditoriali.
La zona, caratterizzata da buon passaggio e presenza di servizi, garantisce visibilit e facilit di accesso.
Una soluzione ideale per chi cerca una base solida su cui costruire un progetto di successo, sfruttando una location gi conosciuta e apprezzata dalla comunit.
Contattaci per maggiori informazioni o per fissare una visita. Contatta l'inserzionista

Enzo D'Alessandro ImmobiliareEnzo D'Alessandro Immobiliare
Via Firenze n. 137
65122, Pescara (Pescara)
Visualizza Telefono

INFORMAZIONI SULL'IMMOBILE

  • Riferimento: 026
  • Tipologia: Locale commerciale in Vendita
  • Locali: 1 Locali ( 1 camera e un bagno)
  • Piano: Terra
  • Stato: Buono
  • Prezzo: 95.000 €
  • Prezzo al mq: 1.159 €
  • Riscaldamento: Autonomo
  • Modificato il: 18/05/2026
  • Scheda: SC9533255

Stabile

  • Piano: Terra su 2 totali
I.P.E.
722,7Kwh/m2
D

Mappa e indirizzo

Locale commerciale sito in via g. fonzi, 24
65010 Spoltore (Pescara)
mappa mostra l'annuncio su mappa

Galleria Fotografica

Contatta l'inserzionista

Enzo D'Alessandro Immobiliare

Enzo D'Alessandro Immobiliare di Pescara propone in vendita questo immobile, contattali subito!

Annunci immobiliari a Spoltore (PE)

Copyright Š 2026 PCase.it. All rights reserved. Sede operativa MILANO. P.IVA 08508420968 - Condizioni d'uso e privacy