Preferiti

Sponsorizza

Stampa

Locale commerciale in vendita a Salerno in via case rosse 30

  • 540.000€
  • 2 locali
  • 600 mq
  • Vendesi

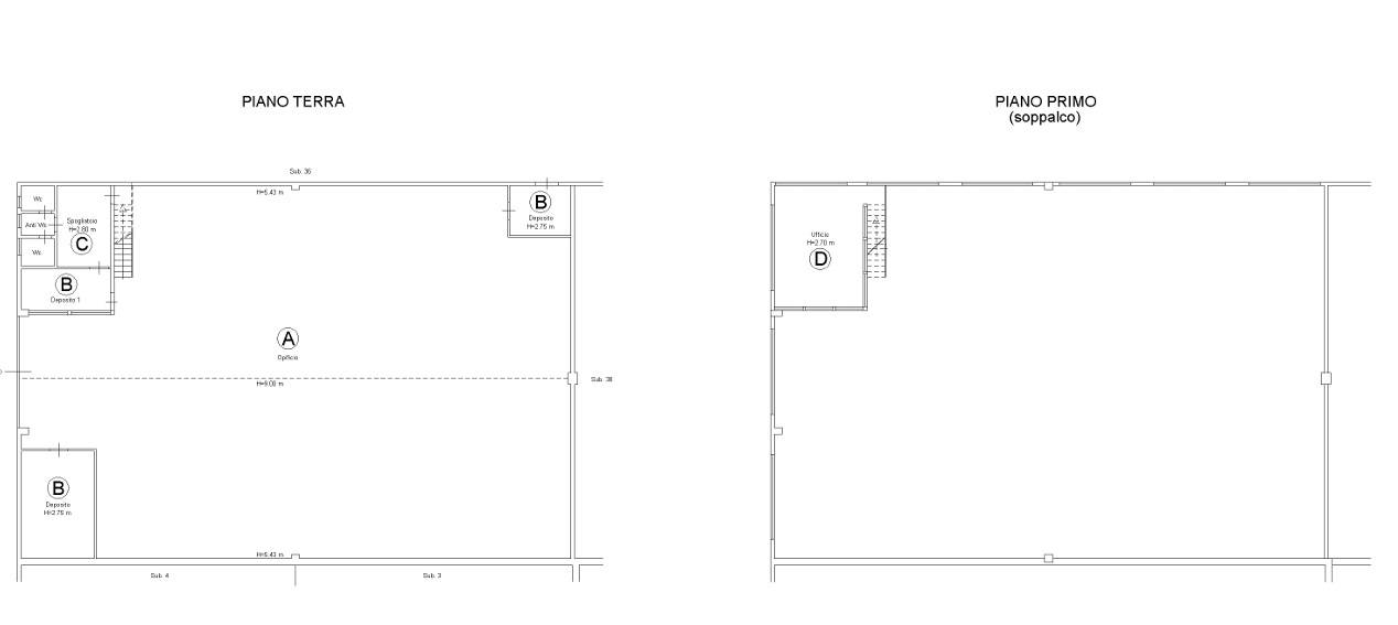
Capannone commerciale di 600 mq Via Scavate Case Rosse Proponiamo in vendita capannone commerciale di circa 600 mq, situato in Via Scavate Case Rosse, in zona ben collegata e facilmente accessibile.
Limmobile fa parte di un complesso composto da altri ulteriori tre capannoni con identica metratura inferiore venduti separatamente, ideale per attivit commerciali, artigianali o logistiche.
Gli spazi interni si presentano ampi e versatili, facilmente adattabili a diverse esigenze operative.
Il capannone strutturato su due livelli di cui il piano terra con deposito, 2 bagni e antibagno ed il primo piano con accesso tramite scala interna con area deposito ed ufficio.
Completa la propriet una superficie scoperta in comune, comoda per carico/scarico merci, parcheggio e manovra mezzi.
Caratteristiche principali: Superficie interna: 600 mq Spazi ampi e modulabili Area esterna condivisa Facilit di accesso Contesto funzionale e ben organizzato Soluzione ideale per chi cerca un immobile funzionale in una posizione strategica.
Per maggiori informazioni o per fissare un appuntamento, non esitate a contattarci. Contatta l'inserzionista

Immobiliare Ragosta srlImmobiliare Ragosta srl
corso Garibaldi 49
84122, Cetara (Salerno)
Visualizza Telefono

INFORMAZIONI SULL'IMMOBILE

  • Riferimento: case rosse600
  • Tipologia: Locale commerciale in Vendita
  • Locali: 2 Locali ( 1 camera con doppi servizi)
  • Prezzo: 540.000 €
  • Prezzo al mq: 900 €
  • Modificato il: 07/04/2026
  • Scheda: SC9633355

Stabile

  • Classe Energetica: n.d.

Mappa e indirizzo

Locale commerciale sito in via case rosse, 30
84121 Salerno (Salerno)
mappa mostra l'annuncio su mappa

Galleria Fotografica

Contatta l'inserzionista

Immobiliare Ragosta srl

Immobiliare Ragosta srl di Cetara propone in vendita questo immobile, contattali subito!

Annunci immobiliari a Salerno (SA)

Copyright Š 2026 PCase.it. All rights reserved. Sede operativa MILANO. P.IVA 08508420968 - Condizioni d'uso e privacy