Preferiti

Sponsorizza

Stampa

Attività commerciale in vendita a Porto San Giorgio

  • 270.000€
  • 2 locali
  • 140 mq
  • Vendesi

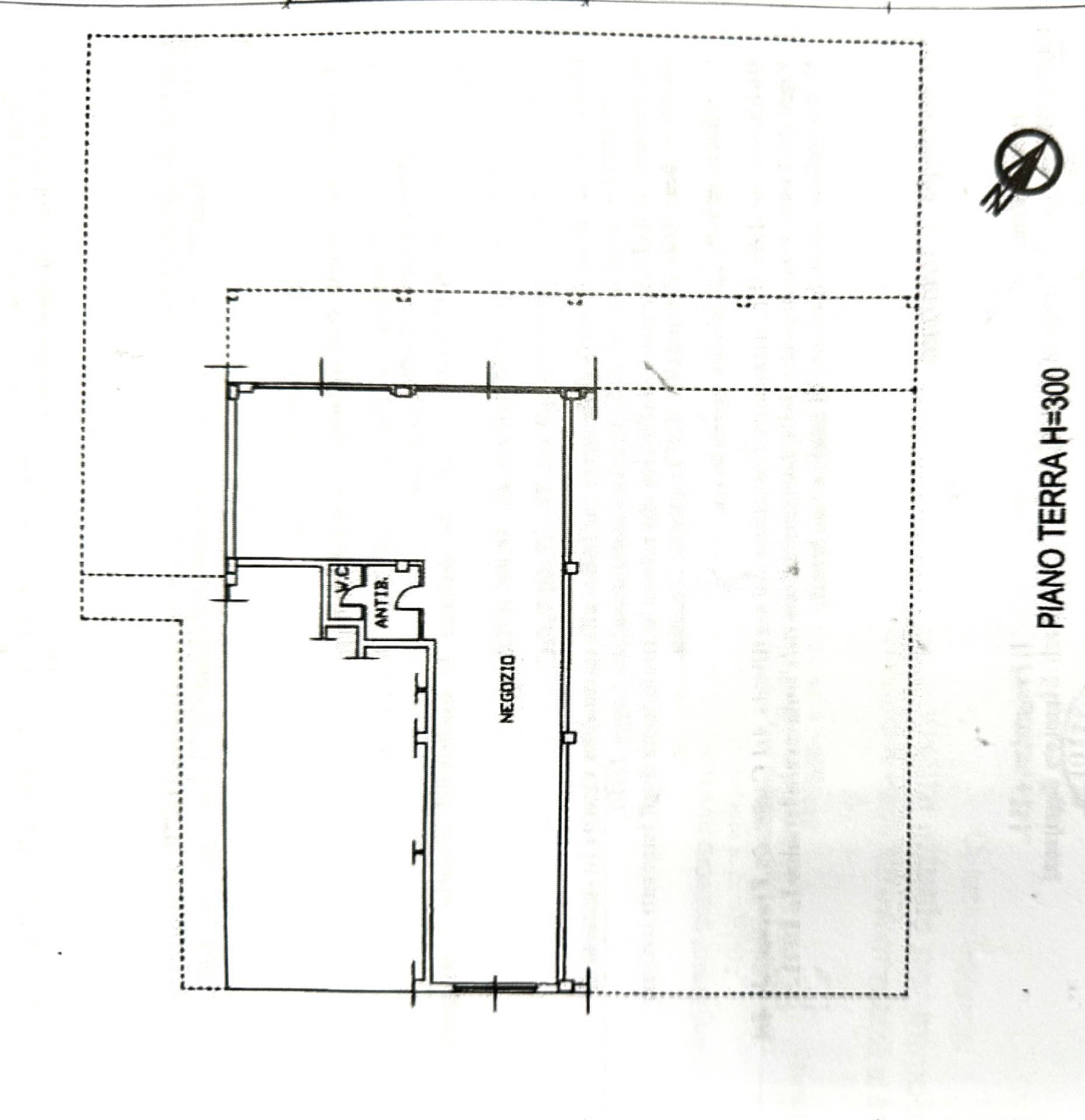
Agenzia Immobiliare Metroquadro propone per la vendita locale commerciale di mq 140, anno 2005, zona industriale di Porto San Giorgio, con doppia vetrina, bagno wc, ampio parcheggio.
Ottimo stato di conservazione. Contatta l'inserzionista

Agenzia Immobiliare MetroquadroAgenzia Immobiliare Metroquadro
Via Giacomo Boni n.1
63822, Porto San Giorgio (Fermo)
Visualizza Telefono

INFORMAZIONI SULL'IMMOBILE

  • Riferimento: AP41
  • Tipologia: Attività commerciale in Vendita
  • Locali: 2 Locali ( 1 camera e un bagno)
  • Stato: Ottimo
  • Prezzo: 270.000 €
  • Prezzo al mq: 1.929 €
  • Riscaldamento: Autonomo
  • Modificato il: 01/04/2025
  • Scheda: SC9574358

Stabile

  • Anno: 2005
F

Contatta l'inserzionista

Agenzia Immobiliare Metroquadro

Agenzia Immobiliare Metroquadro di Porto San Giorgio propone in vendita questo immobile, contattali subito!

Annunci immobiliari a Porto San Giorgio (FM)

Copyright © 2026 PCase.it. All rights reserved. Sede operativa MILANO. P.IVA 08508420968 - Condizioni d'uso e privacy