Preferiti

Sponsorizza

Stampa

Locale commerciale in vendita a Pordenone in via general cantore 86

  • 80.000€
  • 2 locali
  • 86 mq
  • Vendesi

Pordenone piazza di Torre, locale commerciale al piano terra in adiacente ad altre attivit.
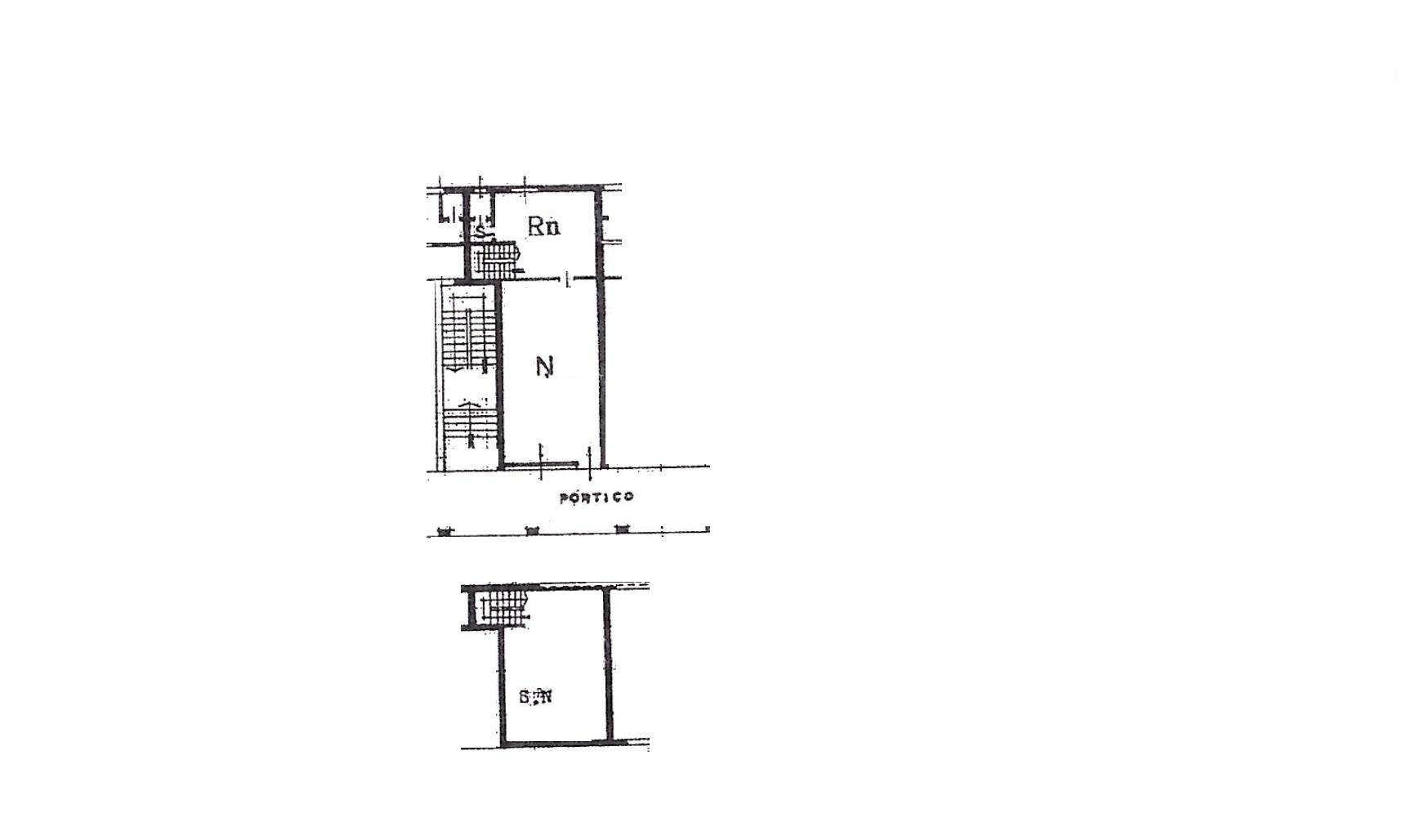
Fronte vetrina, ingresso, spazio commerciale di 45 mq, magazzino finestrato con antibagno e bagno, scala interna che da accesso al piano scantinato con magazzino di 40 mq. In buone condizioni, con facilit di parcheggio.
Il condominio ha beneficiato del superbonus 110%. Soluzione immobiliare orientata a piccole attivit al dettaglio, studi di consulenza e professionali.
Ottimo rapporto qualit- prezzo. Contatta l'inserzionista

Intercase s.a.s.Intercase s.a.s.
VIALE DANTE 48
33170, Pordenone (Pordenone)
Visualizza Telefono

INFORMAZIONI SULL'IMMOBILE

  • Riferimento: F63-3034
  • Tipologia: Locale commerciale in Vendita
  • Locali: 2 Locali ( 1 camera e un bagno)
  • Piano: Terra
  • Stato: Buono
  • Prezzo: 80.000 €
  • Prezzo al mq: 930 €
  • Spazio Auto: No
  • Cantina: Si
  • Modificato il: 15/02/2024
  • Scheda: SC9569901

Stabile

  • Piano: Terra su 3 totali
I.P.E.
696,86Kwh/m2
G

Mappa e indirizzo

Locale commerciale sito in via general cantore, 86
33170 Pordenone (Pordenone)
mappa mostra l'annuncio su mappa

Galleria Fotografica

Contatta l'inserzionista

Intercase s.a.s.

Intercase s.a.s. di Pordenone propone in vendita questo immobile, contattali subito!

Annunci immobiliari a Pordenone (PN)

Copyright Š 2026 PCase.it. All rights reserved. Sede operativa MILANO. P.IVA 08508420968 - Condizioni d'uso e privacy