Preferiti

Sponsorizza

Stampa

Negozio in vendita a Milano in via lario 13

  • 150.000€
  • 1 locale
  • 54 mq
  • Vendesi

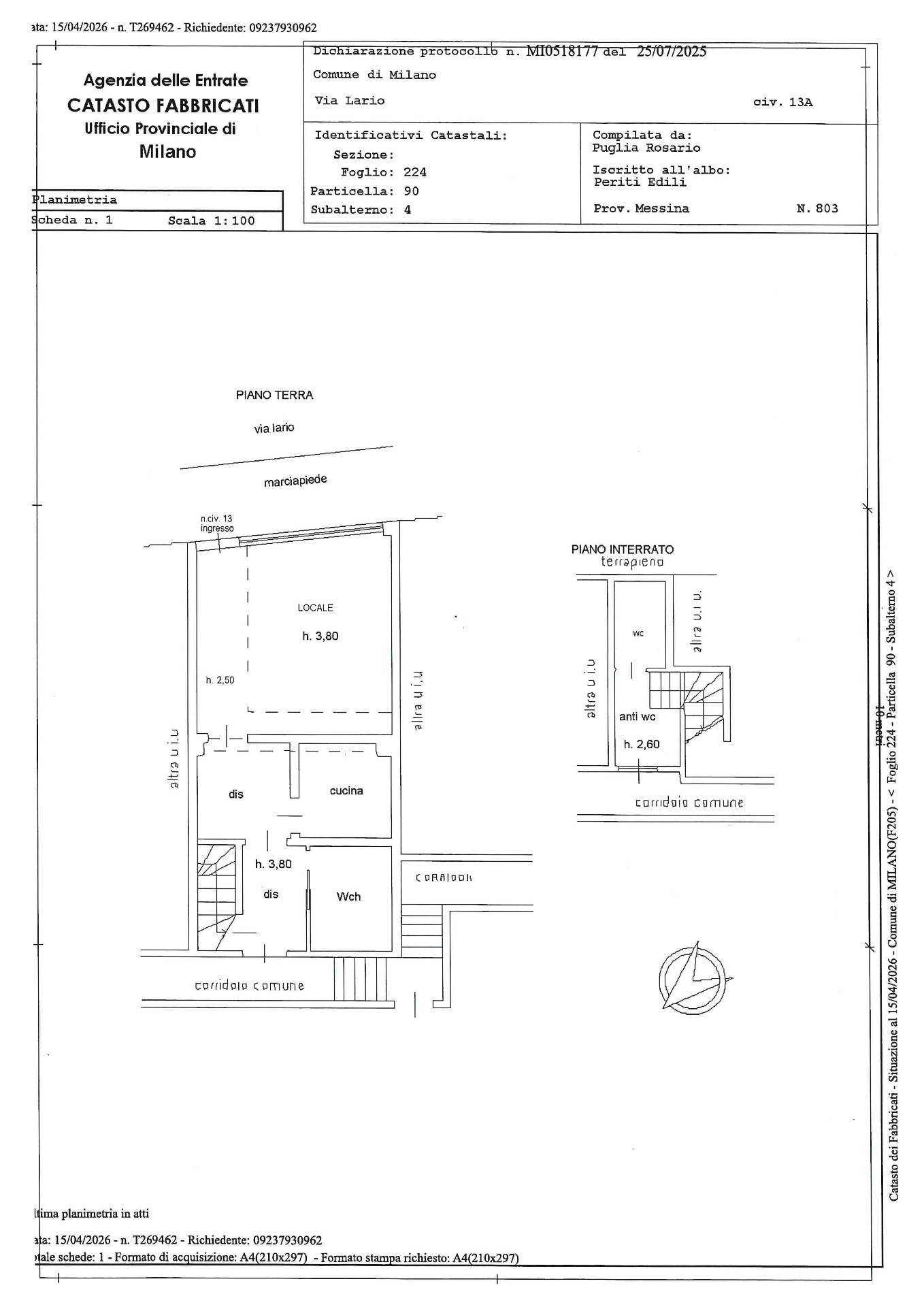
Via Lario 13 : vendesi negozio commerciale di circ 54 mq composto da un locale fronte strada , retro e locale di servizio oltre ad un bagno interno.
La zona ben servita dai mezzi pubblici e offre numerosi servizi e attivit commerciali.
Marciapiede largo e di passaggio.
Possibilit dehor esterno.
Altezza interna 4,50 metri bagno interno di nuova realizzazione , impianto di climatizzazione nuovo , impianto elettrico certificato limmobile climatizzato, riscaldamento centralizzato, portineria mezza giornata, tenda da sole fronte strada, serrande elettriche, infissi di recente fattura.
la caldaia condominiale appena stata sostituita con un'impianto di nuova realizzazione a basso consumo energetico spese di condominio compreso riscaldamento euro 3000 annue, Cert. Energ.
Classe G- IPE 180,00- kwh/m2a. Contatta l'inserzionista

Diciotto ImmobiliareDiciotto Immobiliare
Via delle Forze Armate 66
20146, Milano (Milano)
Visualizza Telefono

INFORMAZIONI SULL'IMMOBILE

  • Riferimento: negozio via Lario
  • Tipologia: Negozio in Vendita
  • Locali: 1 Locali ( 1 camera e un bagno)
  • Piano: Terra
  • Stato: Ottimo
  • Prezzo: 150.000 €
  • Prezzo al mq: 2.778 €
  • Riscaldamento: Centralizzato
  • Spazio Auto: No
  • Cantina: Si
  • Modificato il: 15/04/2026
  • Scheda: SC9638165

Stabile

  • Piano: Terra su 6 totali
I.P.E.
78,96Kwh/m2
E

Mappa e indirizzo

Negozio sito in via lario, 13
20131 Milano (Milano)
Cenisio, Sarpi, Isola
mappa mostra l'annuncio su mappa

Metropolitana
M3 M5
Fermata Zara a 180m
circa 3/5 min a piedi
Metropolitana
M5
Fermata Marche a 520m
circa 8/10 min a piedi
Metropolitana
M5
Fermata Isola a 570m
circa 9/11 min a piedi
Metropolitana
M3
Fermata Maciachini a 670m
circa 11/13 min a piedi
Metropolitana
M3
Fermata Sondrio a 890m
circa 14/16 min a piedi
Metropolitana
M2
Fermata Gioia a 930m
circa 15/17 min a piedi

Galleria Fotografica

Contatta l'inserzionista

Diciotto Immobiliare

Diciotto Immobiliare di Milano propone in vendita questo immobile, contattali subito!

Annunci simili

Annunci immobiliari a Milano (MI)

Copyright Š 2026 PCase.it. All rights reserved. Sede operativa MILANO. P.IVA 08508420968 - Condizioni d'uso e privacy