Preferiti

Sponsorizza

Stampa

Locale commerciale in vendita a Lecco in corso martiri della liberazione

  • trattativa riservata
  • 2100 mq
  • Vendesi

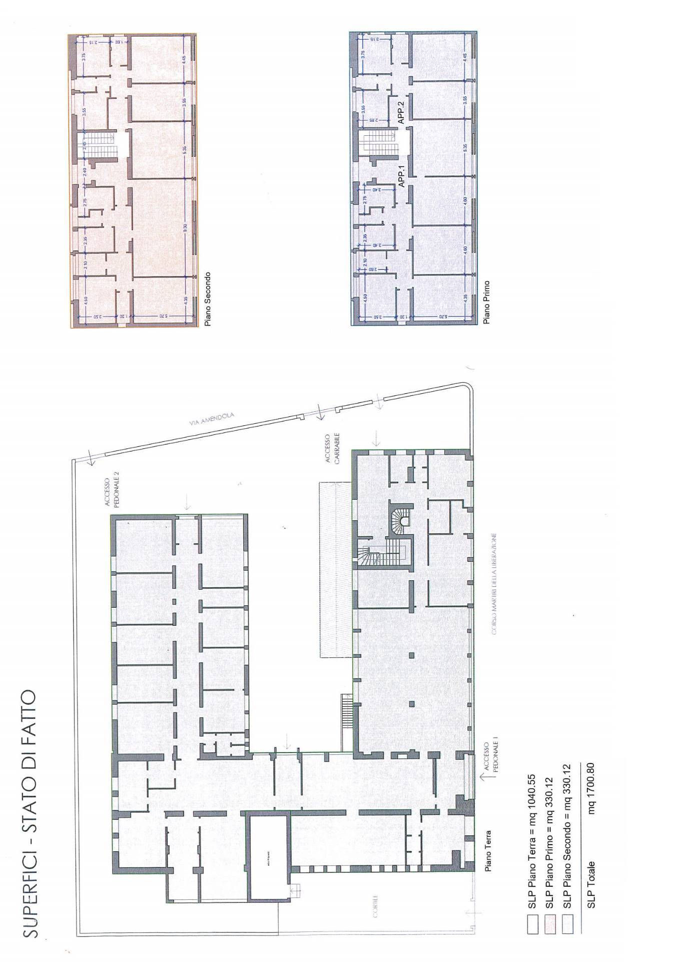
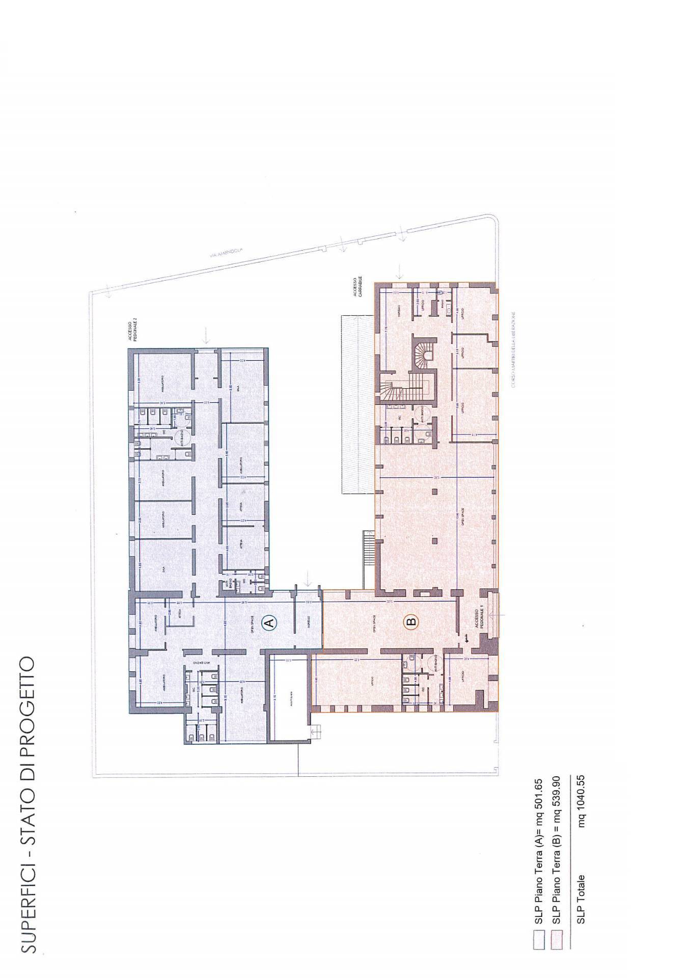
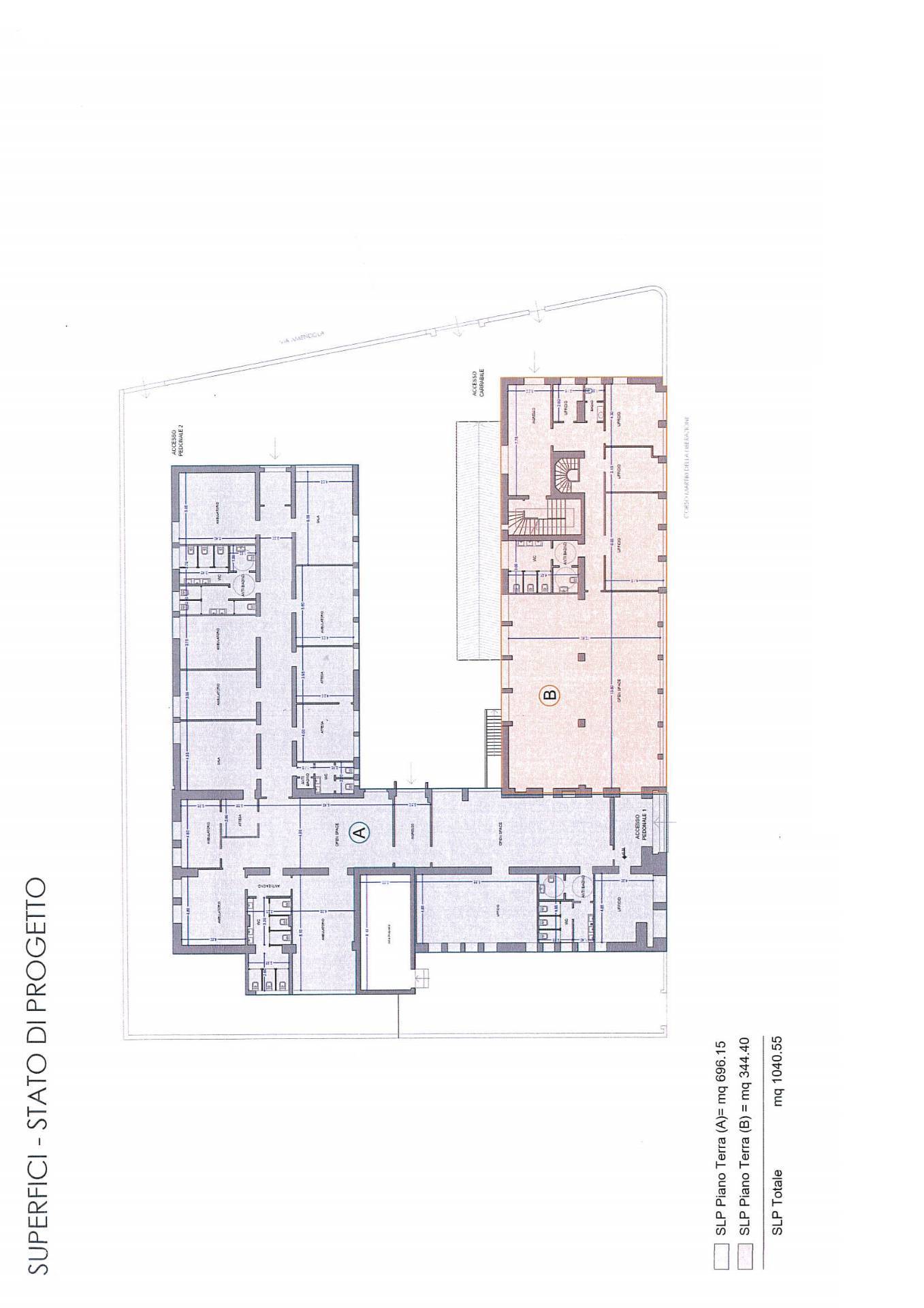
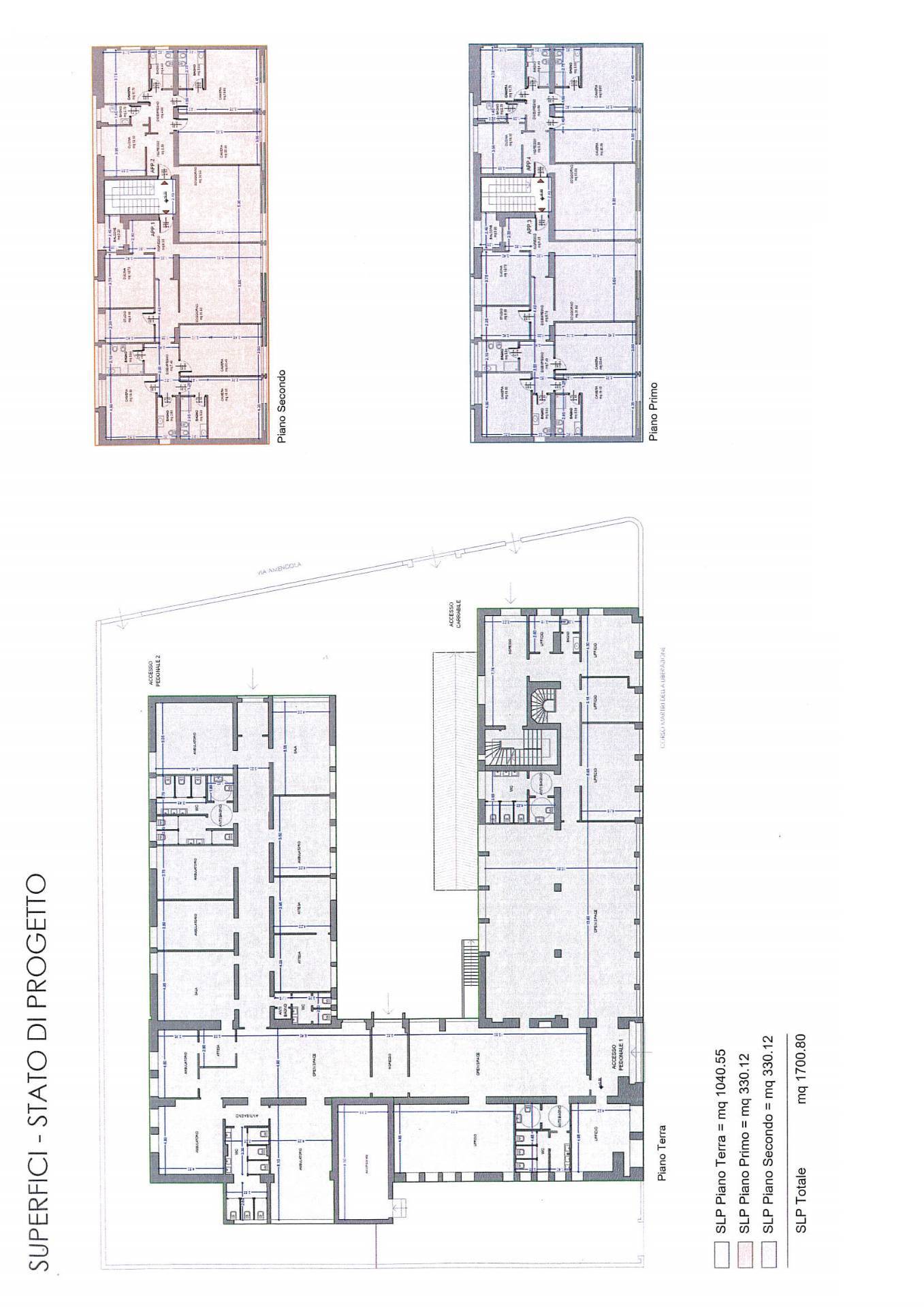
Lecco - centro: In zona di forte passaggio veicolare e pedonale, vendesi intero stabile storico da ristrutturare di un superficie complessiva di mq. 2100. L'immobile disposto su due livelli oltre al piano interrato.
Le superfici sono cos ripartite: Piano terra mq. 1040, piano primo mq.330, piano secondo mq. 330 e piano interrato mq. 400. Cortile di propriet.
Richiesta Euro 2.300.000,00 + IVA Contatta l'inserzionista

Immobiliare Ciemme di Colombo SergioImmobiliare Ciemme di Colombo Sergio
Corso M. della Liberazione 17
23900, Lecco (Lecco)
Visualizza Telefono

INFORMAZIONI SULL'IMMOBILE

  • Riferimento: 4219
  • Tipologia: Locale commerciale in Vendita
  • Modificato il: 21/10/2024
  • Scheda: SC9562254

Stabile

  • Classe Energetica: n.d.

Mappa e indirizzo

Locale commerciale sito in corso martiri della liberazione
23900 Lecco (Lecco)
Lungo Lago
mappa mostra l'annuncio su mappa

Galleria Fotografica

Contatta l'inserzionista

Immobiliare Ciemme di Colombo Sergio

Immobiliare Ciemme di Colombo Sergio di Lecco propone in vendita questo immobile, contattali subito!

Annunci immobiliari a Lecco (LC)

Copyright Š 2026 PCase.it. All rights reserved. Sede operativa MILANO. P.IVA 08508420968 - Condizioni d'uso e privacy