Preferiti

Sponsorizza

Stampa

Locale commerciale in vendita a Lanciano in via san giovanni da capestrano

  • 250.000€
  • 2 locali
  • 370 mq
  • Vendesi

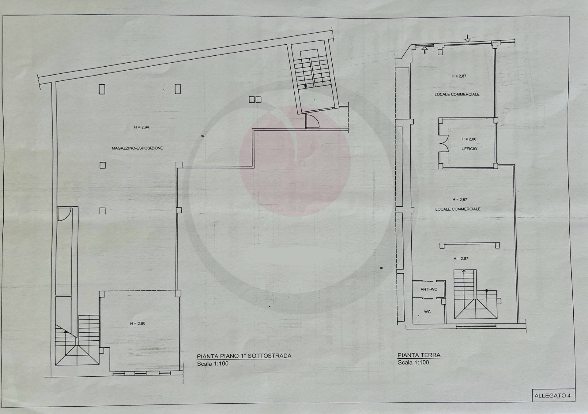
Lanciano, via San Giovanni da Capestrano, in zona centrale ad alto traffico pedonale e veicolare, proponiamo in vendita un grande locale commerciale che si sviluppa su due livelli.
Dallingresso fronte strada si accede ad un primo ambiente che ospita una stanza adibita ad ufficio.
Sullo stesso livello vi un bagno con antibagno.
Attraverso una scalinata si scende al piano inferiore: qui trova spazio un unico ambiente con un piccolo ripostiglio.
Questultimo piano sotto strada collegato anche con una rampa esterna, tramite un corridoio disimpegno.
Una propriet dalla generosa metratura, ideale per molteplici attivit, grazie anche alla presenza di un ampio parcheggio libero antistante ledificio. Contatta l'inserzionista

INFORMAZIONI SULL'IMMOBILE

  • Riferimento: 713/25
  • Tipologia: Locale commerciale in Vendita
  • Locali: 2 Locali ( 1 camera e un bagno)
  • Stato: Buono
  • Prezzo: 250.000 €
  • Prezzo al mq: 676 €
  • Modificato il: 10/07/2025
  • Scheda: SC9551971

Stabile

  • Piani Totali: 2
  • Classe Energetica: n.d.

Contatta l'inserzionista

Punto Immobiliare Lanciano di Monica Giallonardo

Punto Immobiliare Lanciano di Monica Giallonardo di Pisa propone in vendita questo immobile, contattali subito!

Annunci immobiliari a Lanciano (CH)

Copyright Š 2026 PCase.it. All rights reserved. Sede operativa MILANO. P.IVA 08508420968 - Condizioni d'uso e privacy