Preferiti

Sponsorizza

Stampa

Locale commerciale in vendita a Cordenons in via goetta 76

  • trattativa riservata
  • 4 locali
  • 1600 mq
  • Vendesi

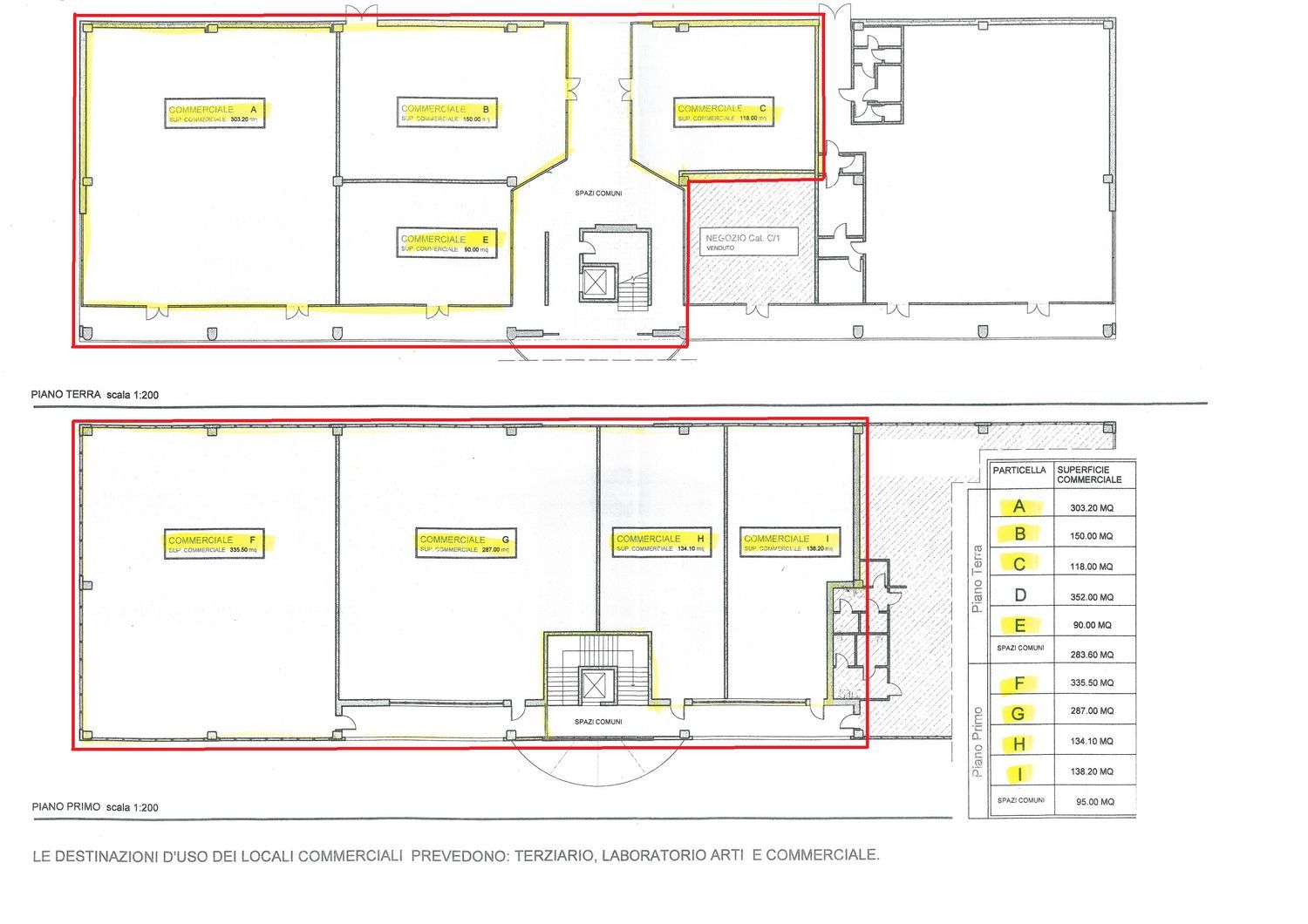
CORDENONS - VENDESI LOCALI COMMERCIALI, DIREZIONALI E ARTIGIANALI In zona tranquilla, riservata e ben servita, immersa nel verde, vicino a numerosi servizi quali supermercato, scuole, piscina, palestra, a pochi minuti dal centro di Cordenons e di Pordenone, proponiamo in vendita degli SPAZI AL GREZZO adibiti ad uso COMMERCIALE E TERZIARIO, inseriti in uno complesso di recentissima costruzione, con disponibilit totale di circa mq. 1600. I locali possono essere frazionati secondo comode e varie metrature, potendo contare sulla massima flessibilit di progettazione nella distribuzione interna, impiantistica, compatibilit di destinazione d'uso, nella composizione e realizzazione degli uffici, negozi o laboratori, con ampia disponibilit di parcheggio esterno a servizio di tutte le unit. GRANDE OCCASIONE! Prezzi e maggiori informazioni allo 0434/520602 Contatta l'inserzionista

Marchiori & Contino SncMarchiori & Contino Snc
Largo San Giovanni 28
33170, Roma (Roma)
Visualizza Telefono

INFORMAZIONI SULL'IMMOBILE

  • Riferimento: MC2641
  • Tipologia: Locale commerciale in Vendita
  • Locali: 4 Locali (3 camere e 4 bagni)
  • Modificato il: 27/08/2024
  • Scheda: SC9562147

Stabile

  • Piani Totali: 2
  • Classe Energetica: n.d.

Mappa e indirizzo

Locale commerciale sito in via goetta, 76
33084 Cordenons (Pordenone)
mappa mostra l'annuncio su mappa

Galleria Fotografica

Contatta l'inserzionista

Marchiori & Contino Snc

Marchiori & Contino Snc di Roma propone in vendita questo immobile, contattali subito!

Annunci immobiliari a Cordenons (PN)

Copyright Š 2026 PCase.it. All rights reserved. Sede operativa MILANO. P.IVA 08508420968 - Condizioni d'uso e privacy