Preferiti

Sponsorizza

Stampa

Locale commerciale in vendita classe A3 a Civitanova Marche

  • trattativa riservata
  • 1 locale
  • 45 mq
  • Vendesi

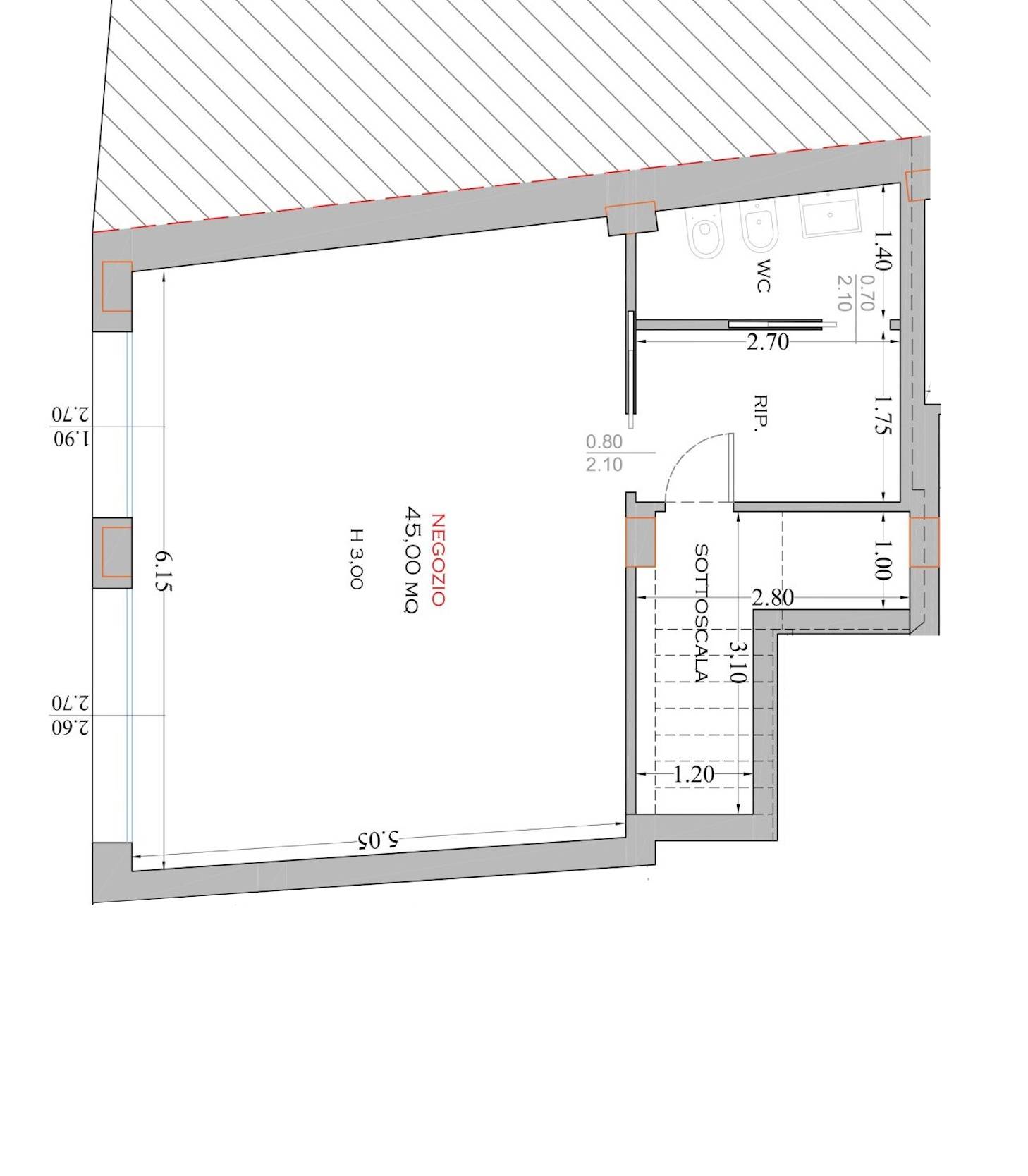
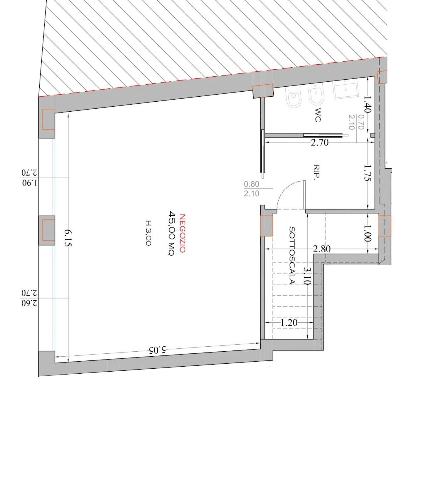
In valida posizione commerciale, a pochi passi dalla centralissima Piazza XX Settembre, locale commerciale delle dimensioni totali di circa 45 mq composto di unico ampio vano dotato di 2 vetrine su strada, ripostiglio sul retro e bagno.
L'immobile, di nuova costruzione, localizzato su via ad altissima densit di traffico sia pedonale che veicolare e risulta essere soluzione ideale per ogni tipo di attivit commerciale che necessita di centralit, visibilit e vicinanza al passeggio. Contatta l'inserzionista

DIMORE SOLUZIONI IMMOBILIARIDIMORE SOLUZIONI IMMOBILIARI
via Cavour n.14
62014, San Benedetto del Tronto (Ascoli Piceno)
Visualizza Telefono

INFORMAZIONI SULL'IMMOBILE

  • Riferimento: v1100
  • Tipologia: Locale commerciale in Vendita
  • Locali: 1 Locali ( 1 camera e un bagno)
  • Piano: Terra
  • Modificato il: 13/03/2026
  • Scheda: SC9619121

Stabile

  • Piano: Terra
A3

Mappa e indirizzo

62012 Civitanova Marche (Macerata)
mappa mostra l'annuncio su mappa

Galleria Fotografica

Contatta l'inserzionista

DIMORE SOLUZIONI IMMOBILIARI

DIMORE SOLUZIONI IMMOBILIARI di San Benedetto del Tronto propone in vendita questo immobile, contattali subito!

Annunci immobiliari a Civitanova Marche (MC)

Copyright Š 2026 PCase.it. All rights reserved. Sede operativa MILANO. P.IVA 08508420968 - Condizioni d'uso e privacy