Preferiti

Sponsorizza

Stampa

Locale commerciale in vendita a Cervia in caduti per la libert

  • 300.000€
  • 2 locali
  • 170 mq
  • Vendesi

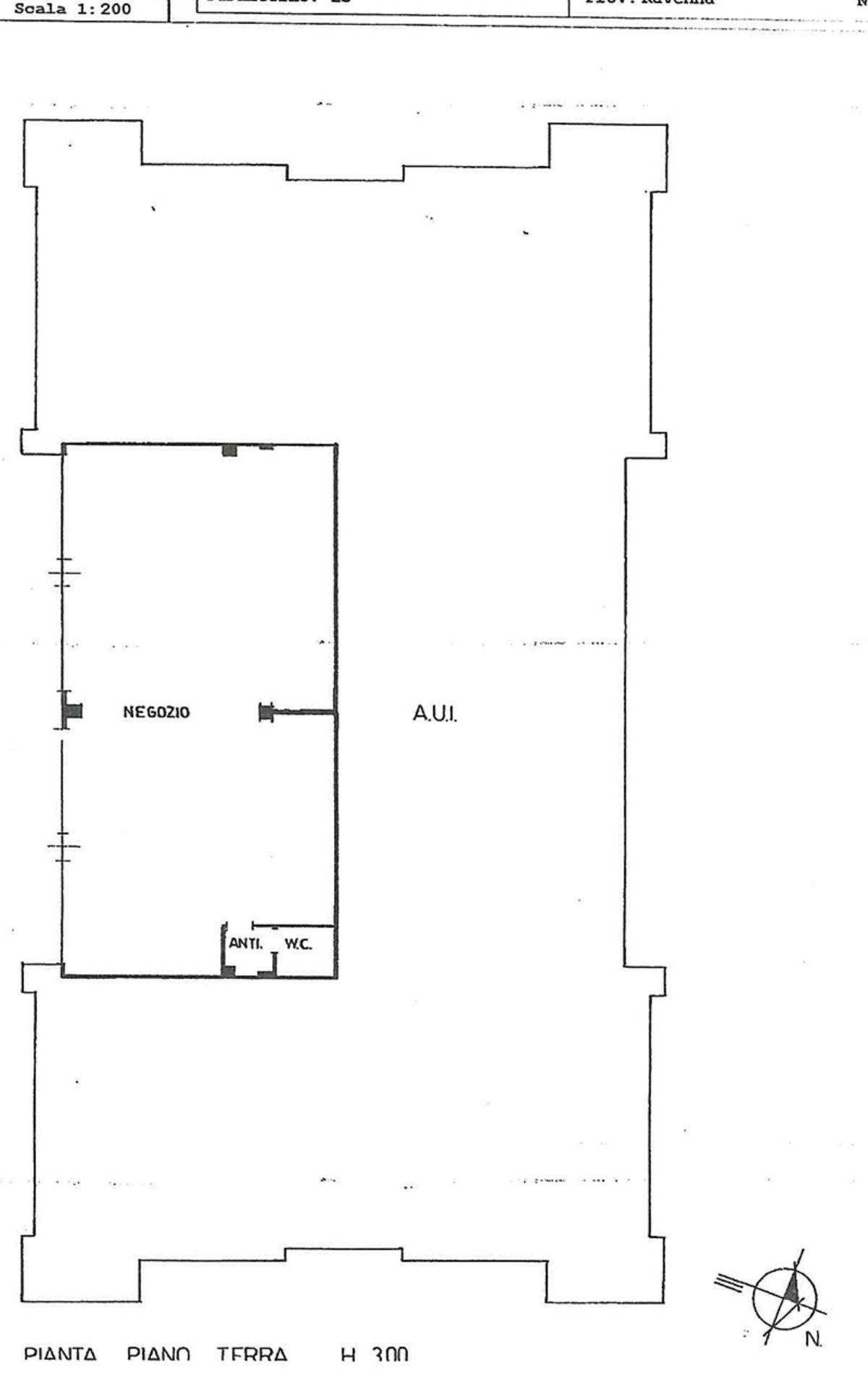
Vendiamo a Cervia, vicino al centro, in contesto commerciale ed in zona di forte passaggio, la propriet dei muri di un negozio negozio di 170 mq, attualmente affittato.
In zona commerciale, di passaggio e vicino a tutti i principali servizi, si concretizza come un ottimo investimento.
Maggiori info in ufficio.
Rif. 130. Contatta l'inserzionista

Barbieri immobiliare SrlBarbieri immobiliare Srl
Viale Volturno 27
48015, Cervia (Ravenna)
Visualizza Telefono

INFORMAZIONI SULL'IMMOBILE

  • Riferimento: BRB130
  • Tipologia: Locale commerciale in Vendita
  • Locali: 2 Locali ( 1 camera con doppi servizi)
  • Piano: Primo
  • Stato: Buono
  • Prezzo: 300.000 €
  • Prezzo al mq: 1.765 €
  • Riscaldamento: Autonomo
  • Modificato il: 01/12/2024
  • Scheda: SC9567452

Stabile

  • Piano: 1
  • Classe Energetica: n.d.

Galleria Fotografica

Contatta l'inserzionista

Barbieri immobiliare Srl

Barbieri immobiliare Srl di Cervia propone in vendita questo immobile, contattali subito!

Annunci immobiliari a Cervia (RA)

Copyright Š 2026 PCase.it. All rights reserved. Sede operativa MILANO. P.IVA 08508420968 - Condizioni d'uso e privacy