Preferiti

Sponsorizza

Stampa

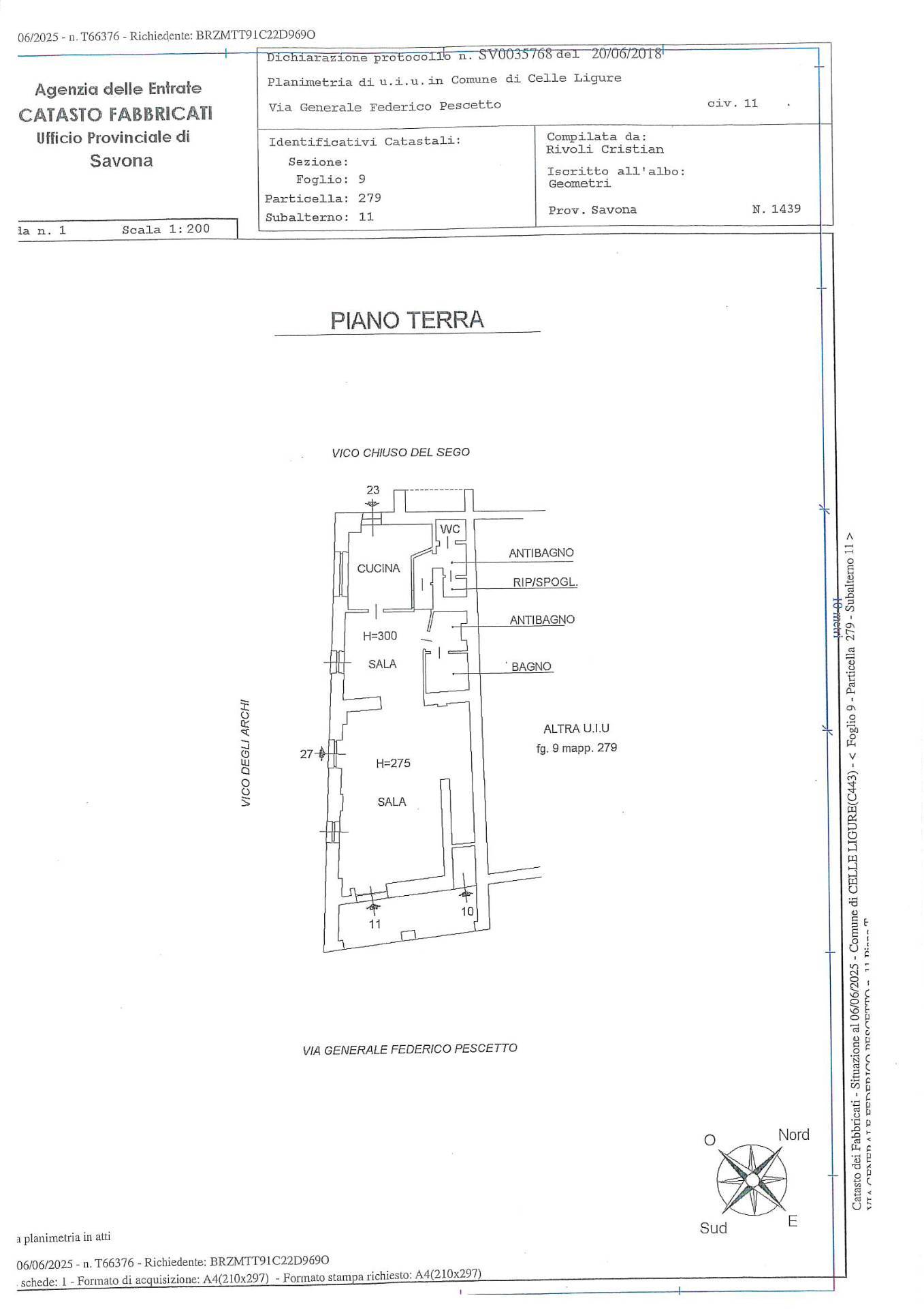
Locale commerciale in vendita a Celle Ligure in via generale pescetto 11

  • 350.000€
  • 3 locali
  • 76 mq
  • Vendesi

RIF 1763 - Sul lungomare di Celle Ligure fronte spiaggia e mare, vendesi muri di un locale commerciale ad uso ristorante, attualmente locato con contratto 6+6 e rinnovato.
L'immobile composto da ingresso, due sale ristorazione, cucina, vani accessori doppi servizi di cui uno per il personale e un bagno per gli ospiti regolarmente adibito anche a disabili.
E' stata recentemente realizzata la canna fumaria, impianto elettrico, idraulico e gas con relativa certificazione.
L'attivit di ristorazione con gli conduttori insiste dal 2018. Ottima rendita annuale.
R.C. ? 3.701,34 Contatta l'inserzionista

Chiusano SanremoChiusano Sanremo
Via Giacomo Matteotti 133
18038, San Remo (Imperia)
Visualizza Telefono

INFORMAZIONI SULL'IMMOBILE

  • Riferimento: 1763
  • Tipologia: Locale commerciale in Vendita
  • Locali: 3 Locali (2 camere con doppi servizi)
  • Piano: Terra
  • Stato: Buono
  • Prezzo: 350.000 €
  • Prezzo al mq: 4.605 €
  • Riscaldamento: Autonomo
  • Spazio Auto: No
  • Modificato il: 14/04/2026
  • Scheda: SC9623537

Stabile

  • Piano: Terra su 2 totali
G

Mappa e indirizzo

Locale commerciale sito in via generale pescetto, 11
17015 Celle Ligure (Savona)
mappa mostra l'annuncio su mappa

Galleria Fotografica

Contatta l'inserzionista

Chiusano Sanremo

Chiusano Sanremo di San Remo propone in vendita questo immobile, contattali subito!

Annunci immobiliari a Celle Ligure (SV)

Copyright Š 2026 PCase.it. All rights reserved. Sede operativa MILANO. P.IVA 08508420968 - Condizioni d'uso e privacy