Preferiti

Sponsorizza

Stampa

Locale commerciale in vendita con giardino a Cagliari

  • Prezzo ribassato -5%
  • € 540.000 510.000€
  • 2 locali
  • 320 mq
  • Vendesi

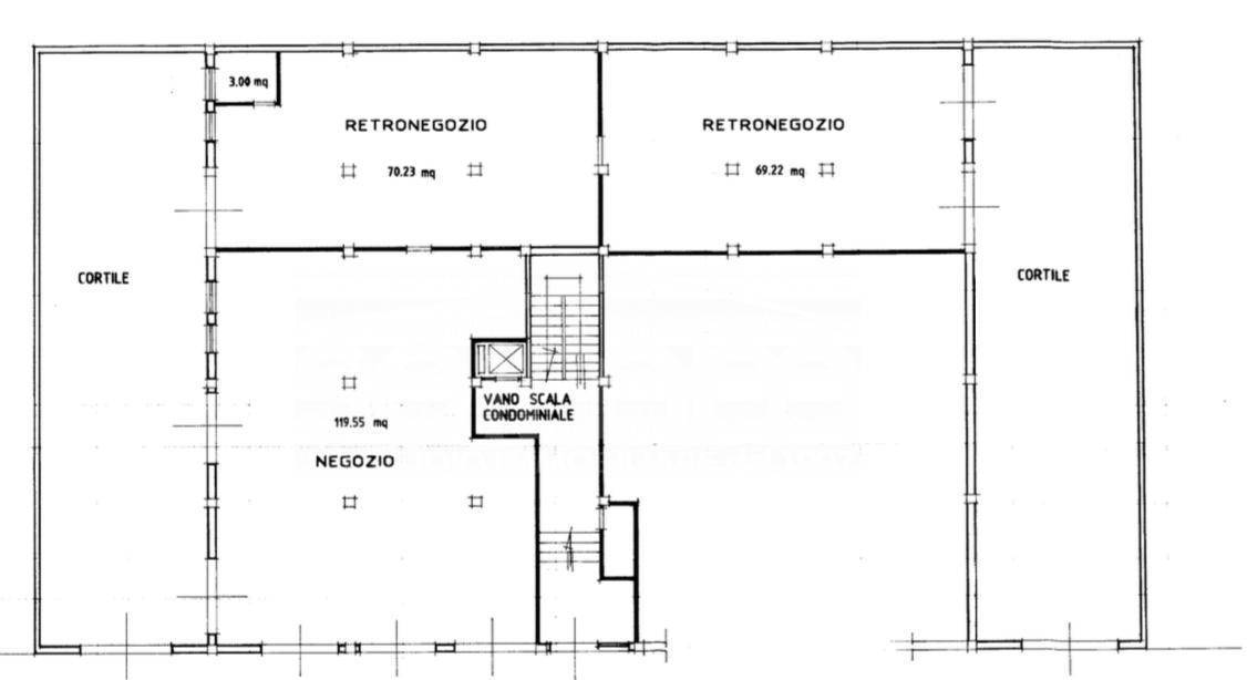
Cagliari Via dei Passeri / Via della Pineta Proponiamo in vendita esclusiva un prestigioso locale commerciale in una delle zone pi dinamiche e strategiche della citt. Limmobile si sviluppa su una superficie interna di circa 320 mq, in un unico grande open space estremamente versatile e luminoso, grazie alle tre ampie vetrine fronte strada e quattro serrande carrabili affacciate sui cortili laterali.
Il locale dotato di due cortili privati laterali di circa 110 mq ciascuno, ideali come ampia area parcheggio esclusiva per clienti e personale, ma anche come spazi funzionali per carico/scarico merci o zone operative allaperto.
Attualmente locato con contratto in scadenza il 30 aprile 2027, garantisce una rendita annua di ? 30.000, con inquilino regolare e puntuale nei pagamenti: unottima opportunit per chi cerca un investimento a reddito sicuro e immediato.
Immobile adatto a showroom, attivit commerciali, poli medici, studi associati o anche food & beverage (previa verifica urbanistica). Per informazioni e sopralluoghi, contatta il nostro centralino al numero 070684230, che ti metter in contatto con lagente di riferimento.
***.*******.** Contatta l'inserzionista

Soimm s.r.l.Soimm s.r.l.
Via Luigi Amat, 3
09100, Cagliari (Cagliari)
Visualizza Telefono

INFORMAZIONI SULL'IMMOBILE

  • Riferimento: AO640
  • Tipologia: Locale commerciale in Vendita
  • Locali: 2 Locali ( 1 camera e un bagno)
  • Piano: Terra
  • Stato: Buono
  • Prezzo: 510.000 €
  • Prezzo al mq: 1.594 €
  • Riscaldamento: Autonomo
  • Giardino: Privato
  • Modificato il: 06/03/2026
  • Scheda: SC9499398

Stabile

  • Piano: Terra su 5 totali
G

Mappa e indirizzo

09134 Cagliari (Cagliari)
Bonaria, Monte Urpinu
mappa mostra l'annuncio su mappa

Galleria Fotografica

Contatta l'inserzionista

Soimm s.r.l.

Soimm s.r.l. di Cagliari propone in vendita questo immobile, contattali subito!

Annunci simili

Annunci immobiliari a Cagliari (CA)

Copyright Š 2026 PCase.it. All rights reserved. Sede operativa MILANO. P.IVA 08508420968 - Condizioni d'uso e privacy