Preferiti

Sponsorizza

Stampa

Locale commerciale in vendita a San Benedetto del Tronto in via calatafimi

  • trattativa riservata
  • 1 locale
  • 370 mq
  • Vendesi

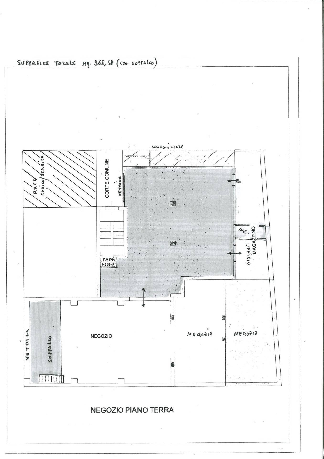
Rif. loc205 S. Benedetto del Tronto, zona centralissima, Casa Broker Immobiliare propone in vendita locale commerciale per molteplici attivit di circa 370mq al piano terra.
L'ingresso con un'ampia vetrina affaccia su strada di intensissimo traffico, antistante al locale c' un ampio parcheggio.
L'immobile ottimo anche per aziende in franchising nel settore alimentare, retail e abbigliamento, servizi e consulenza, e nel settore bancario-finanziario. Contatta l'inserzionista

Casa Broker di Maravalle Nevio LucianoCasa Broker di Maravalle Nevio Luciano
Via Monte Vergine nr. 1
63074, San Benedetto del Tronto (Ascoli Piceno)
Visualizza Telefono

INFORMAZIONI SULL'IMMOBILE

  • Riferimento: loc205
  • Tipologia: Locale commerciale in Vendita
  • Locali: 1 Locali ( 1 camera e un bagno)
  • Piano: Terra
  • Stato: Ottimo
  • Spazio Auto: No
  • Modificato il: 17/04/2026
  • Scheda: SC9517767

Stabile

  • Piano: Terra
F

Mappa e indirizzo

Locale commerciale sito in via calatafimi
63039 San Benedetto del Tronto (Ascoli Piceno)
mappa mostra l'annuncio su mappa

Galleria Fotografica

Contatta l'inserzionista

Casa Broker di Maravalle Nevio Luciano

Casa Broker di Maravalle Nevio Luciano di San Benedetto del Tronto propone in vendita questo immobile, contattali subito!

Annunci simili

Annunci immobiliari a San Benedetto del Tronto (AP)

Copyright Š 2026 PCase.it. All rights reserved. Sede operativa MILANO. P.IVA 08508420968 - Condizioni d'uso e privacy