Preferiti

Sponsorizza

Stampa

Locale commerciale in affitto a Palermo in via villagrazia 1 - 2 a

  • 1.200€
  • 4 locali
  • 115 mq
  • Affittasi

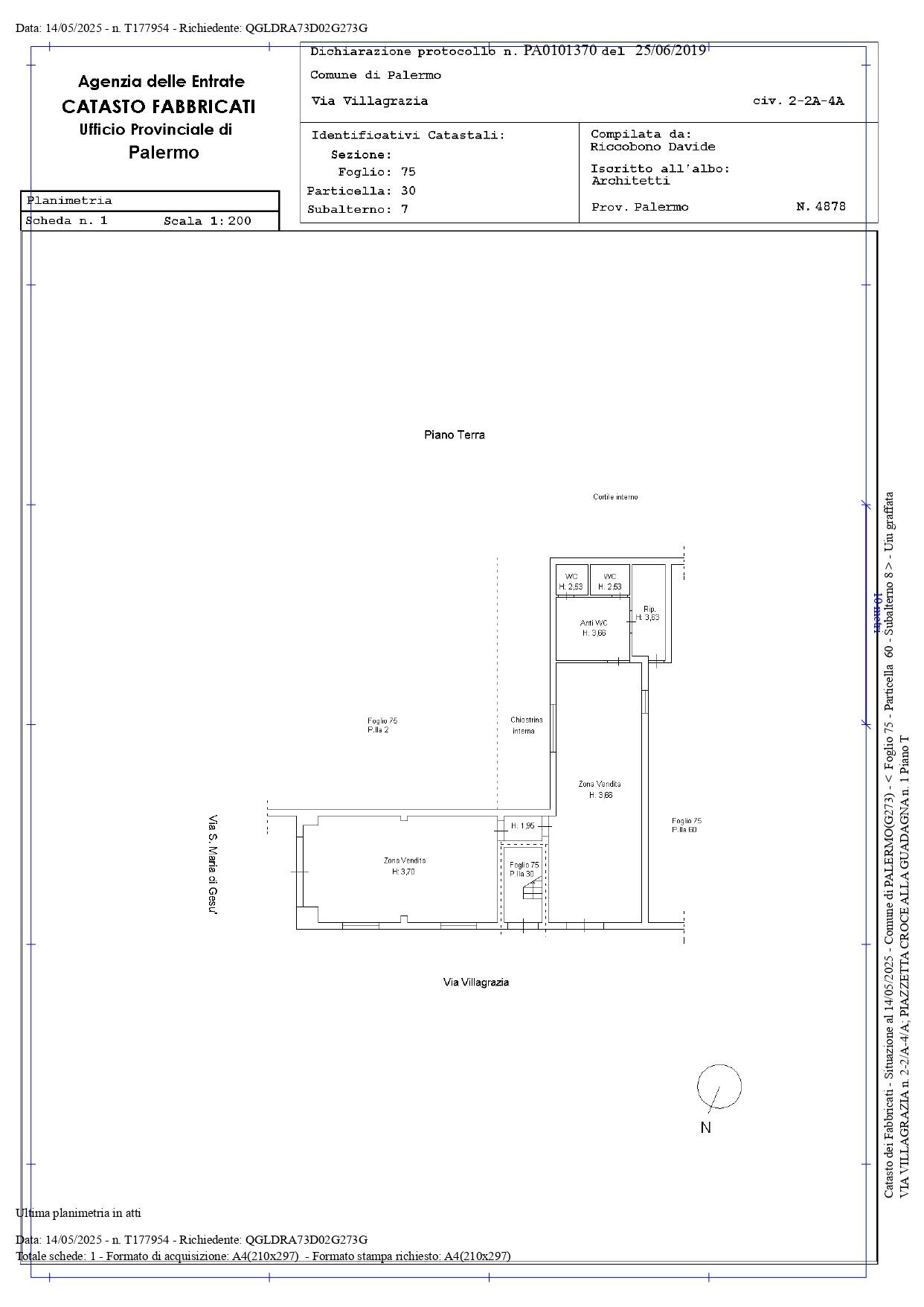
Stazione Guadagna di fronte la rotonda in piazza, lochiamo negozio ex sala giochi.
Attualmente libero ma, da personalizzare con degli interventi, il locale si trova al piano terra di un edificio di 3 piani.
La posizione strategica, lo rende facilmente accessibile e visibile, ideale per attivit commerciali che desiderano massima visibilit nonch adattabile all'apertura di qualsiasi negozio.
L'interno del locale composto da quattro locali distinti in open space, che possono essere utilizzati secondo le esigenze del futuro inquilino.
Inoltre, sono presenti due bagni, che garantiscono il massimo comfort sia ai clienti che al personale.
Il punto di forza di questo immobile sono le quattro vetrine che si affacciano angolarmente su via Villagrazia e la Croce, garantendo una grande esposizione e profondit.
Non esitate a contattarci per ulteriori informazioni e per visitare il locale personalmente.
Alessio Schicchi sar il vostro consulente contattabile al 3339173979. Contatta l'inserzionista

EmmeQEmmeQ
piazza Giuseppe Verdi n.53
90138, Palermo (Palermo)
Visualizza Telefono

INFORMAZIONI SULL'IMMOBILE

  • Riferimento: IMM1487
  • Tipologia: Locale commerciale in Affitto
  • Locali: 4 Locali (3 camere con doppi servizi)
  • Piano: Terra
  • Prezzo: 1.200 €
  • Prezzo al mq: 10 €
  • Modificato il: 05/06/2025
  • Scheda: SC9564409

Stabile

  • Piano: Terra su 4 totali
  • Classe Energetica: n.d.

Mappa e indirizzo

Locale commerciale sito in via villagrazia, 1 - 2 a
90131 Palermo (Palermo)
Guadagna, Montegrappa, Università
mappa mostra l'annuncio su mappa

Galleria Fotografica

Contatta l'inserzionista

EmmeQ

EmmeQ di Palermo propone in affitto questo immobile, contattali subito!

Annunci simili

Annunci immobiliari a Palermo (PA)

Copyright © 2026 PCase.it. All rights reserved. Sede operativa MILANO. P.IVA 08508420968 - Condizioni d'uso e privacy