Preferiti

Sponsorizza

Stampa

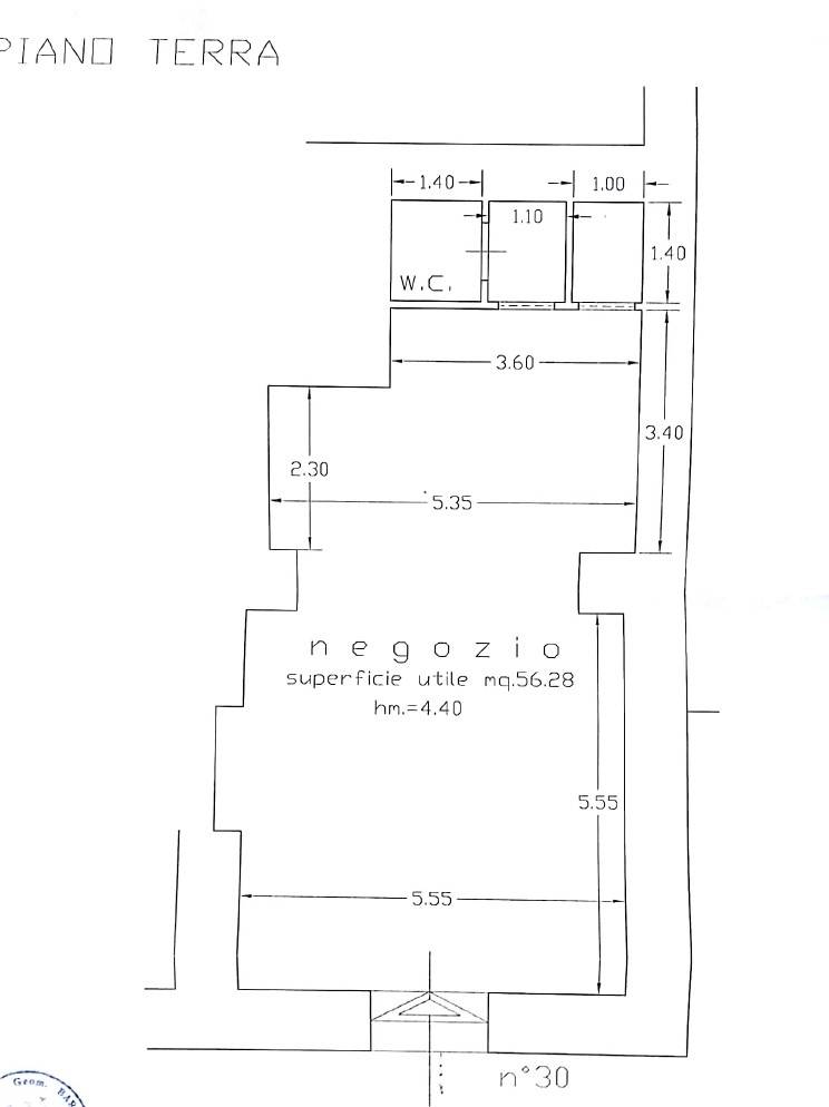
Locale commerciale in affitto a Maddaloni in via napoli 30

  • 500€
  • 1 locale
  • 57 mq
  • Affittasi

MADDALONI - VIA NAPOLI In pieno centro cittadino, e precisamente in Via Napoli, in prossimit di negozi, uffici postali ed ottimamente collegato con le maggiori arterie urbane ed extra urbane, proponiamo in esclusiva la locazione di locale commerciale di circa 60 mq con annessa bagno ed antibagno.
Ubicato al piano terra con accesso da via Napoli, l'immobile composto da un unico ambiente servito da bagno ,antibagno e spogliatoio.
Fornito di controsoffitto con faretti grandi ad incasso ed impianto di filodiffusione Contattaci allo 0823 436914 o al 3920259207 anche via WhatsApp per ricevere ulteriori informazioni o fissare un appuntamento di visita della propriet.
Visita il sito ***.*******.** per trovare tante altre soluzioni in vendita o in affitto adatte alle tue necessit.
Seguici anche su Facebook ed Instagram per essere sempre aggiornato sulle ultime novit del mercato immobiliare.
Se ti fa piacere, lascia una recensione sui nostri servizi Contatta l'inserzionista

Eccocasa ImmobiliareEccocasa Immobiliare
via Caudina n. 10
81024, Maddaloni (Caserta)
Visualizza Telefono

INFORMAZIONI SULL'IMMOBILE

  • Riferimento: 3460
  • Tipologia: Locale commerciale in Affitto
  • Locali: 1 Locali ( 1 camera e un bagno)
  • Piano: Terra
  • Stato: Ottimo
  • Prezzo: 500 €
  • Prezzo al mq: 9 €
  • Modificato il: 10/05/2023
  • Scheda: SC9552335

Stabile

  • Piano: Terra
  • Classe Energetica: n.d.

Video Slide

Galleria Fotografica

Contatta l'inserzionista

Eccocasa Immobiliare

Eccocasa Immobiliare di Maddaloni propone in affitto questo immobile, contattali subito!

Annunci simili

Annunci immobiliari a Maddaloni (CE)

Copyright Š 2026 PCase.it. All rights reserved. Sede operativa MILANO. P.IVA 08508420968 - Condizioni d'uso e privacy