Preferiti

Sponsorizza

Stampa

Locale commerciale in affitto a Eboli in via g. matteotti

  • 550€
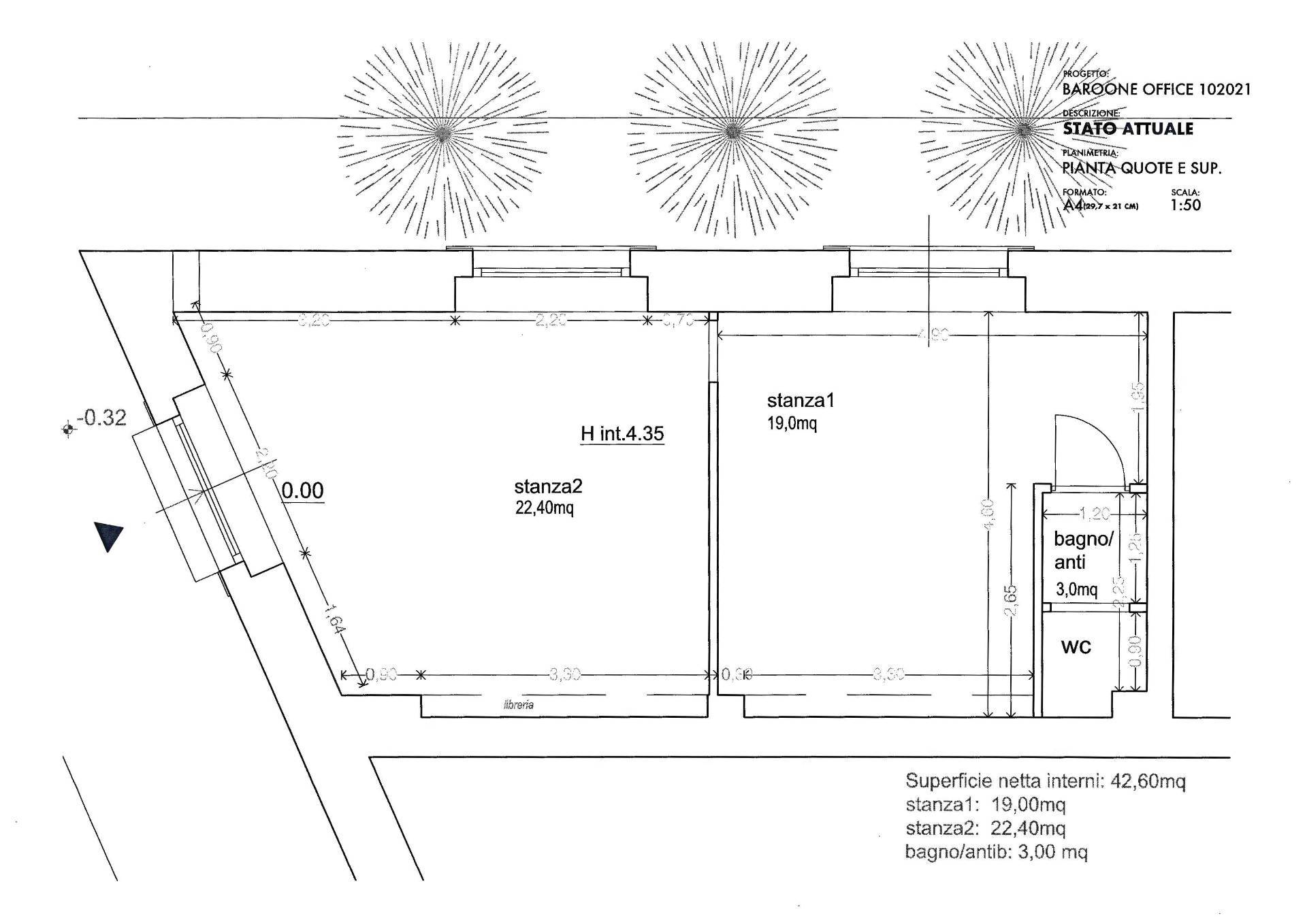
  • 2 locali
  • 50 mq
  • Affittasi

In pieno centro cittadino a pochi passi da Piazza della Repubblica proponiamo in affitto locale commerciale sito tra via G. Matteotti e via ***.*******.** Adinolfi.
IDEALE ANCHE PER STUDIO PROFESSIONALE.
Tre vetrine fronte strada.
la sua posizione centrale garantisce una forte visibilit, rendendolo un'ottima opportunit per chi desidera aprire o trasferire la propria attivit in una zona di grande passaggio e di interesse commerciale.
Un'occasione imperdibile per chi cerca un locale commerciale di qualit e in una posizione di prestigio nel cuore di Eboli. Contatta l'inserzionista

casa extra Ebolicasa extra Eboli
via U. Nobile 32
84025, Roma (Roma)
Visualizza Telefono

INFORMAZIONI SULL'IMMOBILE

  • Riferimento: BO-6
  • Tipologia: Locale commerciale in Affitto
  • Locali: 2 Locali ( 1 camera e un bagno)
  • Piano: Terra
  • Stato: Buono
  • Prezzo: 550 €
  • Prezzo al mq: 11 €
  • Modificato il: 13/04/2026
  • Scheda: SC9627638

Stabile

  • Piano: Terra
  • Classe Energetica: n.d.

Mappa e indirizzo

Locale commerciale sito in via g. matteotti
84025 Eboli (Salerno)
mappa mostra l'annuncio su mappa

Galleria Fotografica

Contatta l'inserzionista

casa extra Eboli

casa extra Eboli di Roma propone in affitto questo immobile, contattali subito!

Annunci immobiliari a Eboli (SA)

Copyright Š 2026 PCase.it. All rights reserved. Sede operativa MILANO. P.IVA 08508420968 - Condizioni d'uso e privacy