Preferiti

Sponsorizza

Stampa

Laboratorio in vendita a Grottammare in via carlo alberto dalla chiesa 15

  • 190.000€
  • 205 mq
  • Vendesi

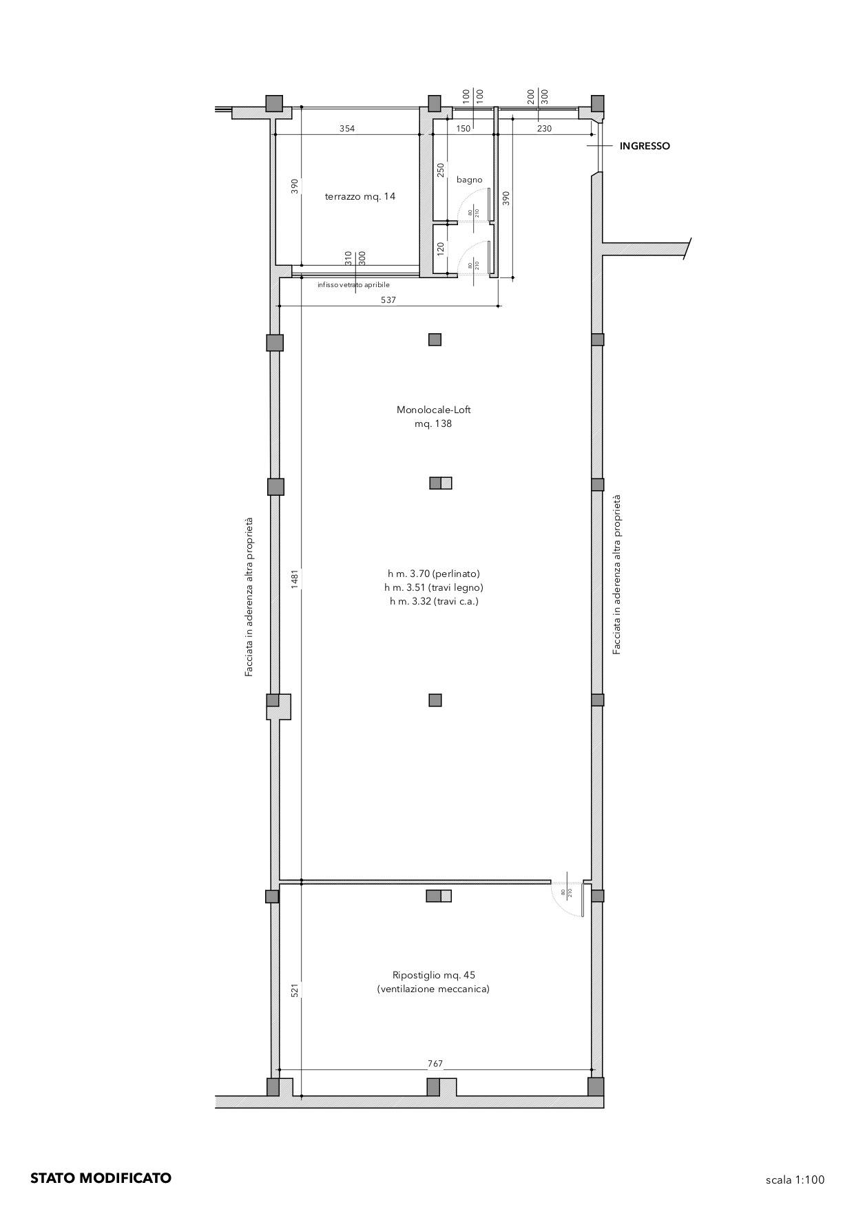
Deposito delle dimensioni di 205 mq. circa, avente altezza interna di mt. 3,70 e fornito di ampio vano - volendo suddivisibile a piacere - fornito di ampia serranda di accesso carrabile, porta per ingresso pedonale e bagno provvisto di antibagno.
Il solaio con travi di legno conferisce atmosfera al deposito che si presta ottimamente anche ad una trasformazione in loft. Ottima accessibilit e comoda posizione per carico/scarico. Contatta l'inserzionista

Spina & MarcheiSpina & Marchei
Viale De Gasperi 113
63074, San Benedetto del Tronto (Ascoli Piceno)
Visualizza Telefono

INFORMAZIONI SULL'IMMOBILE

  • Riferimento: 32744
  • Tipologia: Laboratorio in Vendita
  • Stato: Buono
  • Prezzo: 190.000 €
  • Prezzo al mq: 927 €
  • Modificato il: 18/03/2024
  • Scheda: SC9559002

Stabile

  • Classe Energetica: n.d.

Mappa e indirizzo

Laboratorio sito in via carlo alberto dalla chiesa, 15
63013 Grottammare (Ascoli Piceno)
mappa mostra l'annuncio su mappa

Galleria Fotografica

Contatta l'inserzionista

Spina & Marchei

Spina & Marchei di San Benedetto del Tronto propone in vendita questo immobile, contattali subito!

Annunci immobiliari a Grottammare (AP)

Copyright Š 2026 PCase.it. All rights reserved. Sede operativa MILANO. P.IVA 08508420968 - Condizioni d'uso e privacy