Preferiti

Sponsorizza

Stampa

Casa indipendente in vendita con giardino a Monserrato in via dei gracchi

  • 129.000€
  • 5 locali
  • 200 mq
  • Vendesi

Monserrato: Centro Storico.
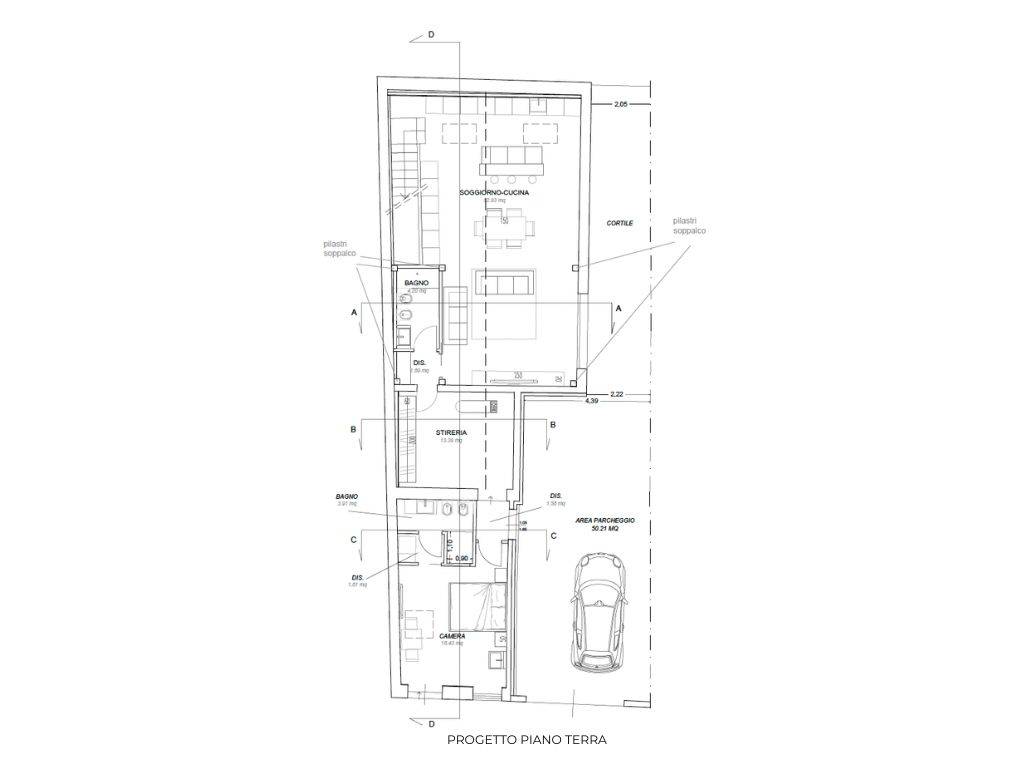
A meno di 100 metri dalla fermata della metropolitana leggera per il Policlinico e la Facolt di Medicina, proponiamo in vendita un'esclusiva opportunit costituita dal rudere di un antico magazzino del vino, venduto con progetto gi approvato per la realizzazione di ununica dimora di grande carattere con soffitti che raggiungono i 6 metri d'altezza.
La soluzione prevede un suggestivo soggiorno di oltre 52 mq con doppia altezza, quattro stanze e tre bagni e offre la possibilit di un accesso indipendente, ideale per locare una parte dell'immobile e generare una rendita aggiuntiva costante.
Completa la propriet un ampio cortile privato con passo carraio per il parcheggio interno, che rende questa proposta la scelta ideale sia come residenza di prestigio che come solida operazione di investimento.
Per maggiori informazioni o per organizzare una visita non esitare a contattarci. Contatta l'inserzionista

Italia Home S.r.l.Italia Home S.r.l.
Via Ottone Bacaredda 82
09100, Cagliari (Cagliari)
Visualizza Telefono

INFORMAZIONI SULL'IMMOBILE

  • Riferimento: I8
  • Tipologia: Casa indipendente in Vendita
  • Locali: 5 Locali
  • Piano: Terra
  • Stato: da Ristrutturare
  • Bagni: 2
  • Prezzo: 129.000 €
  • Prezzo al mq: 645 €
  • Giardino: Privato
  • Spazio Auto: No
  • Modificato il: 16/04/2026
  • Scheda: SC9638902

Stabile

  • Piano: Terra
  • Classe Energetica: n.d.

Mappa e indirizzo

Casa indipendente sito in via dei gracchi
09042 Monserrato (Cagliari)
mappa mostra l'annuncio su mappa

Galleria Fotografica

Contatta l'inserzionista

Italia Home S.r.l.

Italia Home S.r.l. di Cagliari propone in vendita questo immobile, contattali subito!

Annunci immobiliari a Monserrato (CA)

Copyright Š 2026 PCase.it. All rights reserved. Sede operativa MILANO. P.IVA 08508420968 - Condizioni d'uso e privacy