Preferiti

Sponsorizza

Stampa

Attività commerciale in vendita a Pisa in via di gello

  • 185.000€
  • 1 locale
  • 75 mq
  • Vendesi

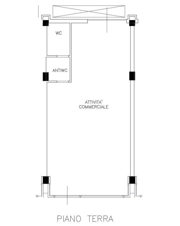
Vendesi Porta a Lucca fondo di 75 Mq composto da un unico ambiente con canna fumaria, antibagno e bagno e due vetrine, Rif.2012420 - in posizione molto interessante vicino ad un centro commerciale quindi di forte passaggio.
Riscaldamento autonomo. Contatta l'inserzionista

Megaron Immobiliare PisaMegaron Immobiliare Pisa
Via Carlo Cattaneo 59
56100, Pisa (Pisa)
Visualizza Telefono

INFORMAZIONI SULL'IMMOBILE

  • Riferimento: 2024095
  • Tipologia: Attività commerciale in Vendita
  • Locali: 1 Locali ( 1 camera e un bagno)
  • Piano: Terra
  • Stato: Buono
  • Prezzo: 185.000 €
  • Prezzo al mq: 2.467 €
  • Riscaldamento: Autonomo
  • Modificato il: 22/04/2024
  • Scheda: SC9561561

Stabile

  • Piano: Terra
G

Mappa e indirizzo

Attività commerciale sito in via di gello
56128 Pisa (Pisa)
Don Bosco, Porta a Lucca, Pratale
mappa mostra l'annuncio su mappa

Galleria Fotografica

Contatta l'inserzionista

Megaron Immobiliare Pisa

Megaron Immobiliare Pisa di Pisa propone in vendita questo immobile, contattali subito!

Annunci simili

Annunci immobiliari a Pisa (PI)

Copyright © 2026 PCase.it. All rights reserved. Sede operativa MILANO. P.IVA 08508420968 - Condizioni d'uso e privacy