Preferiti

Sponsorizza

Stampa

Attività commerciale in vendita con box a Bientina in via a pacini 30

  • 90.000€
  • 1 locale
  • 70 mq
  • Vendesi

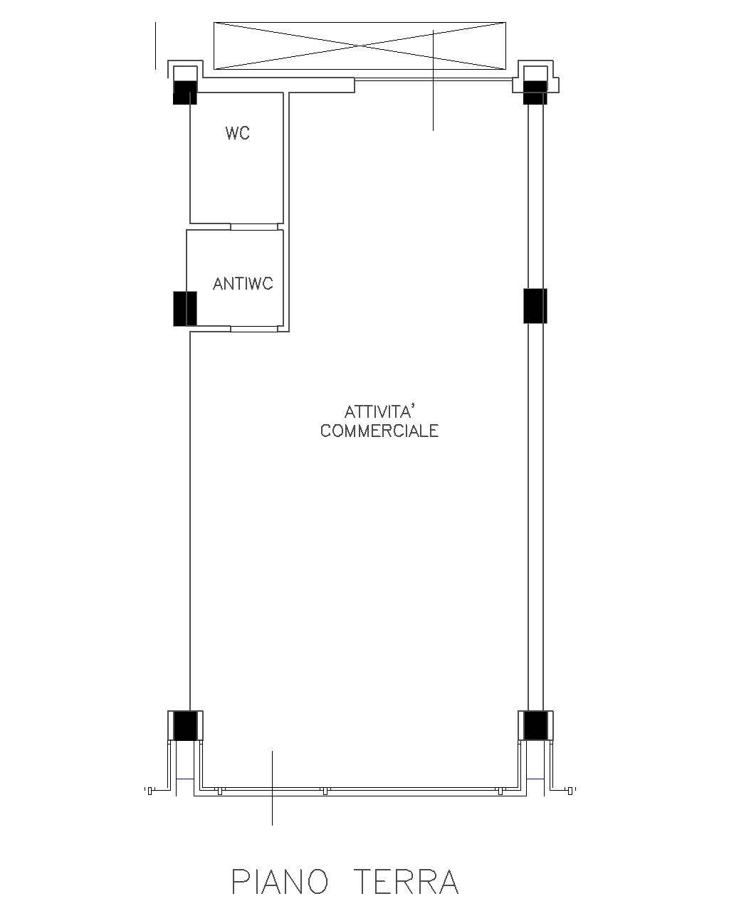
fondo commerciale nuovo vendesi Rif. 2025p099 in centro a bientina in un piccolo centro commerciale fondo di 70 mq in vendita con posto auto coperto in garage pi due posti privati sulla piazza.
Il locale composto da un unico vano con doppio ingresso e doppie vetrine antibagno e bagno.
il locale pu anche essre preso in affitto e dopo un periodo di prova stabilendo sin da subito il prezzo comprarlo per maggiori informazioni contattare l'agenzia riportando il codice di riferimento. Contatta l'inserzionista

Megaron Immobiliare PontederaMegaron Immobiliare Pontedera
Via Vittorio Veneto, 170
56025, Pisa (Pisa)
Visualizza Telefono

INFORMAZIONI SULL'IMMOBILE

  • Riferimento: 2025P100
  • Tipologia: Attività commerciale in Vendita
  • Locali: 1 Locali ( 1 camera e un bagno)
  • Piano: Terra
  • Stato: Ottimo
  • Prezzo: 90.000 €
  • Prezzo al mq: 1.286 €
  • Spazio Auto: Box singolo
  • Modificato il: 23/12/2025
  • Scheda: SC9577212

Stabile

  • Piano: Terra su 3 totali
G

Mappa e indirizzo

Attività commerciale sito in via a pacini, 30
56031 Bientina (Pisa)
mappa mostra l'annuncio su mappa

Galleria Fotografica

Contatta l'inserzionista

Megaron Immobiliare Pontedera

Megaron Immobiliare Pontedera di Pisa propone in vendita questo immobile, contattali subito!

Annunci simili

Annunci immobiliari a Bientina (PI)

Copyright © 2026 PCase.it. All rights reserved. Sede operativa MILANO. P.IVA 08508420968 - Condizioni d'uso e privacy