Preferiti

Sponsorizza

Stampa

Attività commerciale in gestione a Ponsacco in via roma

  • 2.000€
  • 1 locale
  • 288 mq
  • Affittasi

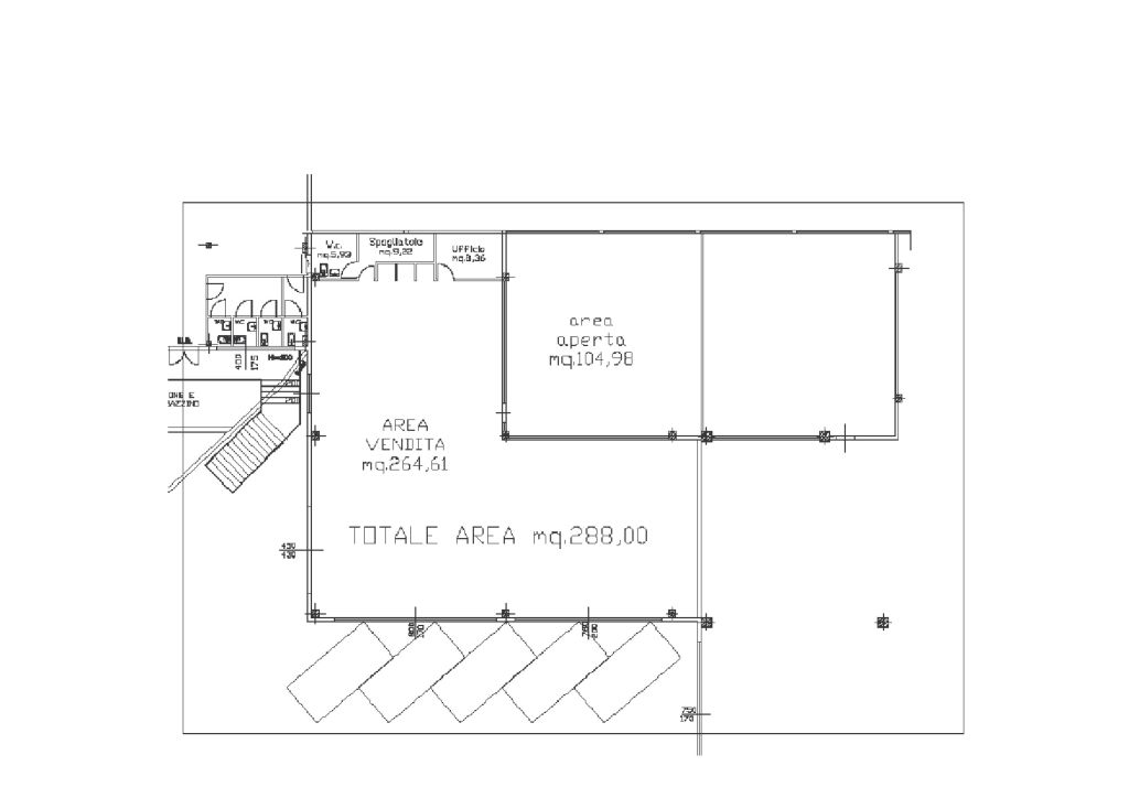
PONSACCO Disponibile fondo commerciale di circa 288 mq, in zona industriale in cui sono presenti altre attivit, composto da ampia area di vendita, ufficio, servizi e spogliatoi.
Dotato inoltre di area esterna di circa 105 mq a uso esclusivo e 47 posti auto riservati ai clienti.
Riscaldamento autonomo.
Rif. 013P032 Contatta l'inserzionista

Megaron Immobiliare PontederaMegaron Immobiliare Pontedera
Via Vittorio Veneto, 170
56025, Pisa (Pisa)
Visualizza Telefono

INFORMAZIONI SULL'IMMOBILE

  • Riferimento: 2013P032
  • Tipologia: Attività commerciale in Gestione
  • Locali: 1 Locali ( 1 camera)
  • Piano: Terra
  • Stato: Buono
  • Prezzo: 2.000 €
  • Prezzo al mq: 7 €
  • Riscaldamento: Autonomo
  • Modificato il: 25/03/2019
  • Scheda: SC9561644

Stabile

  • Piano: Terra su 1 totali
G

Mappa e indirizzo

Attività commerciale sito in via roma
56038 Ponsacco (Pisa)
mappa mostra l'annuncio su mappa

Contatta l'inserzionista

Megaron Immobiliare Pontedera

Megaron Immobiliare Pontedera di Pisa propone in affitto questo immobile, contattali subito!

Annunci simili

Annunci immobiliari a Ponsacco (PI)

Copyright © 2026 PCase.it. All rights reserved. Sede operativa MILANO. P.IVA 08508420968 - Condizioni d'uso e privacy