Preferiti

Sponsorizza

Stampa

Attività commerciale in gestione classe A4 a Pisa in via antonio meucci

  • 22.000€
  • 1 locale
  • 1200 mq
  • Affittasi

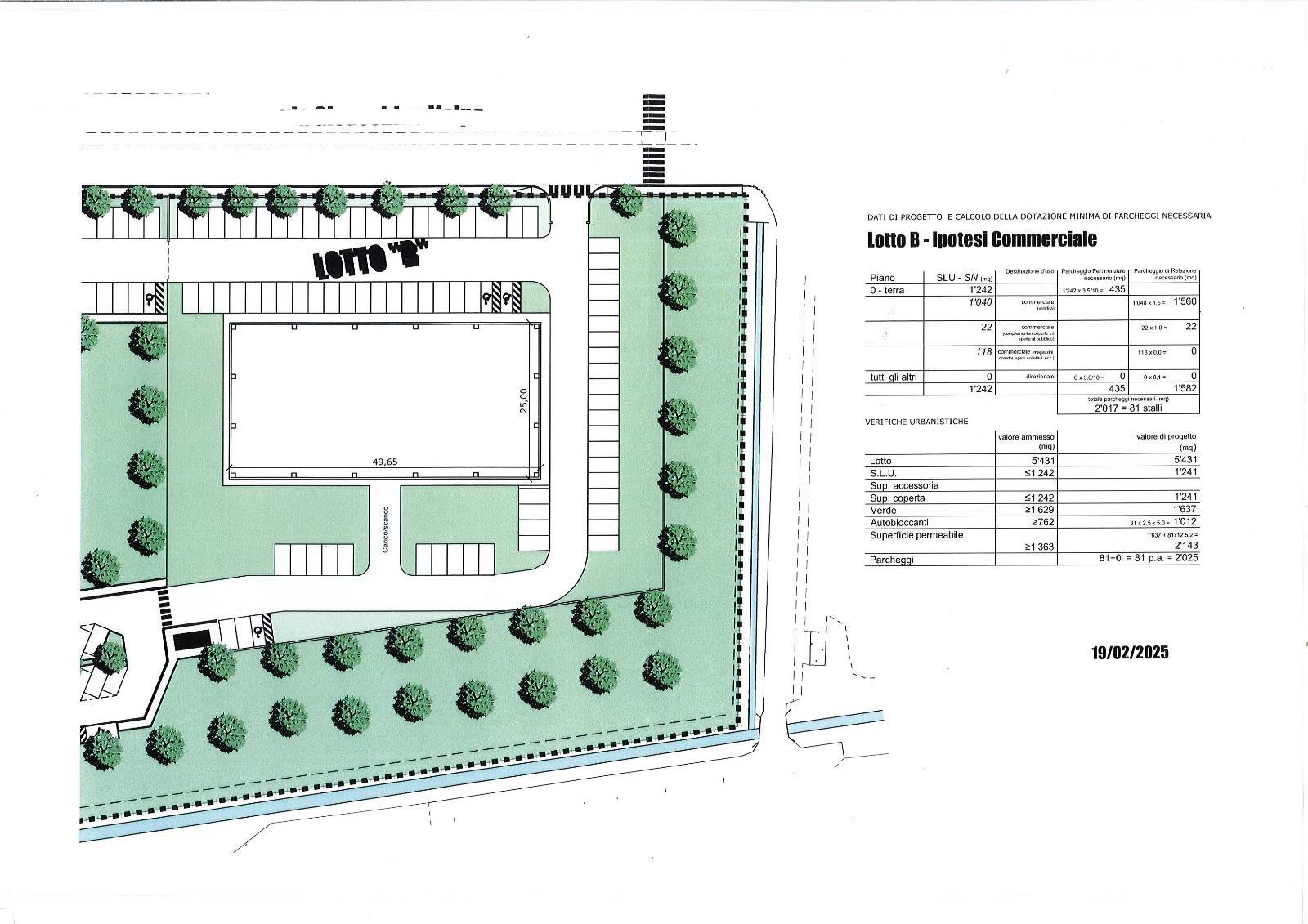
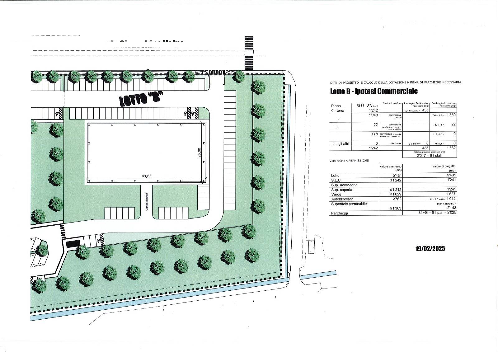
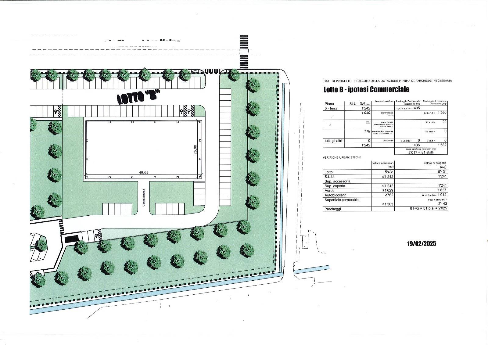
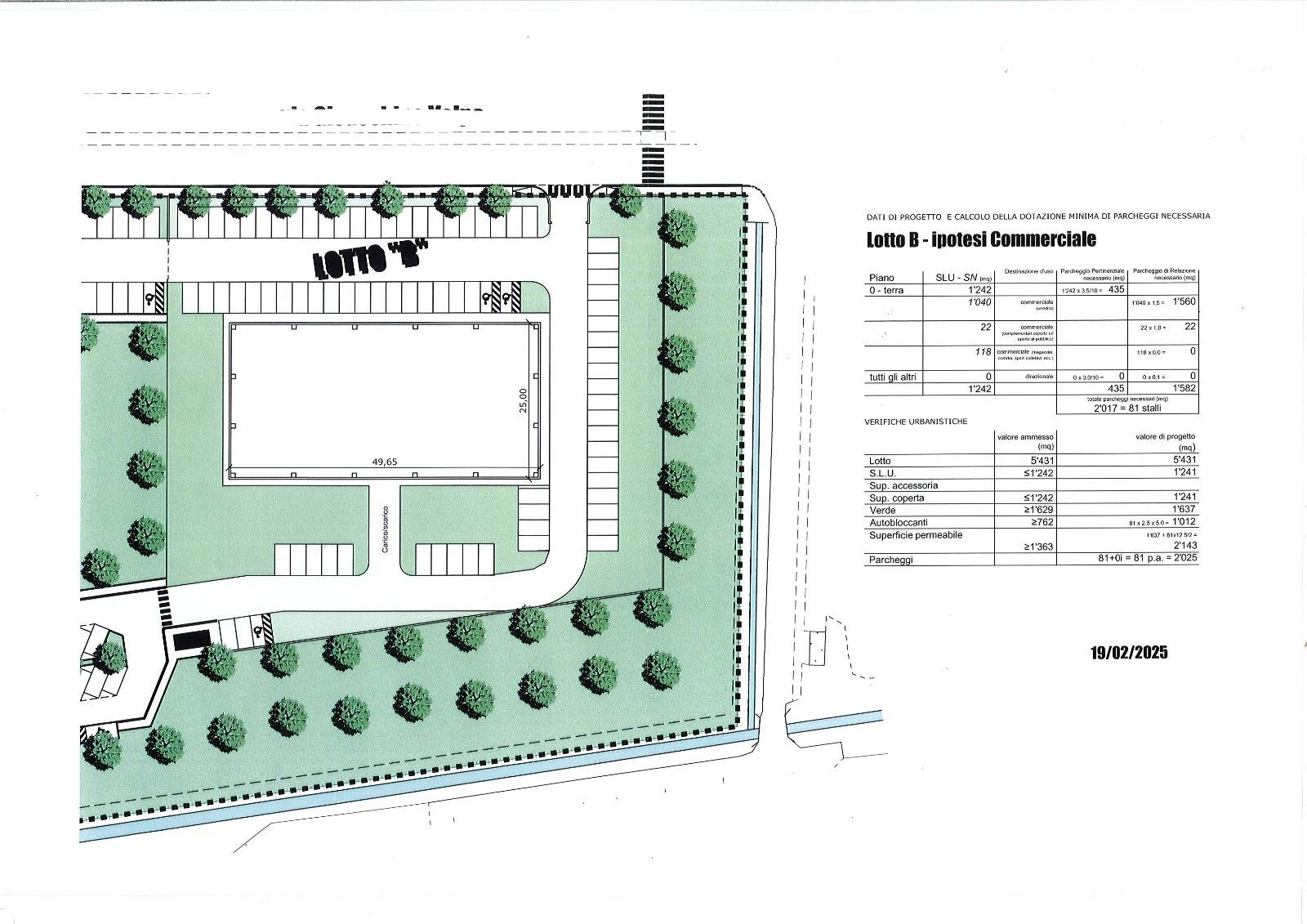
Il Fondo Commerciale in fase di costruzione in Affitto si trova a Pisa, nella zona di Ospedaletto, in una posizione strategica e di grande visibilit grazie alle diverse vetrine fronte strada.
RIF. 2025052 - Attualmente in fase di costruzione, il locale si sviluppa su un unico livello, il piano terra, per una superficie totale di 1200 metri quadrati, di cui 1040 commerciali.
Gli spazi interni sono divisi in 1 locale, ideale per accogliere attivit commerciali di vario genere.
All'interno, un ampio open space che offre molteplici possibilit di arredo e di allestimento.
Il contesto in cui si trova l'immobile un complesso di uffici, e varie attivit commerciali che garantisce un alto livello di professionalit e di seriet.
Inoltre, sono disponibili 81 posti auto scoperti per i clienti e il sistema di riscaldamento e climatizzazione moderno ed efficiente grazie all'utilizzo di aria elettrica come combustibile.
Complessivamente, il locale ideale per chi desidera avviare la propria attivit commerciale in una zona di grande passaggio e di forte impatto visivo. Contatta l'inserzionista

Megaron Immobiliare PisaMegaron Immobiliare Pisa
Via Carlo Cattaneo 59
56100, Pisa (Pisa)
Visualizza Telefono

INFORMAZIONI SULL'IMMOBILE

  • Riferimento: 2025052
  • Tipologia: Attività commerciale in Gestione
  • Locali: 1 Locali ( 1 camera e 4 bagni)
  • Piano: Terra
  • Prezzo: 22.000 €
  • Prezzo al mq: 18 €
  • Spazio Auto: No
  • Modificato il: 06/06/2025
  • Scheda: SC9561617

Stabile

  • Piano: Terra su 1 totali
A4

Mappa e indirizzo

Attività commerciale sito in via antonio meucci
56128 Pisa (Pisa)
Ospedaletto
mappa mostra l'annuncio su mappa

Galleria Fotografica

Contatta l'inserzionista

Megaron Immobiliare Pisa

Megaron Immobiliare Pisa di Pisa propone in affitto questo immobile, contattali subito!

Annunci immobiliari a Pisa (PI)

Copyright © 2026 PCase.it. All rights reserved. Sede operativa MILANO. P.IVA 08508420968 - Condizioni d'uso e privacy