Preferiti

Sponsorizza

Stampa

Attività commerciale in gestione con giardino a Livorno in via marradi 30

  • 8.000€
  • 3 locali
  • 500 mq
  • Affittasi

Fondo commerciale, C1, grandi spazi esterni privati (avanti e dietro) + p.a. POSSIBILITA' CANNA FUMARIA.
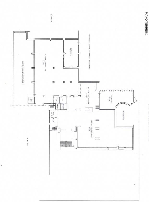
Rif. 2024Li056 - Zona centrale affittasi immobile commerciale in ottime condizioni 500 m coperti + 200 m di giardino privato + 200 m di pertinenza privata e 4 posti auto privati.
L'immobile si inserisce in un contesto signorile ben curato, in zona residenziale servita da negozi e servizi pubblici.
Per maggiori informazioni rivolgersi in agenzia Contatta l'inserzionista

Megaron Immobiliare LivornoMegaron Immobiliare Livorno
Via Montebello 2
57100, Pisa (Pisa)
Visualizza Telefono

INFORMAZIONI SULL'IMMOBILE

  • Riferimento: 2024Li056
  • Tipologia: Attività commerciale in Gestione
  • Locali: 3 Locali (2 camere con doppi servizi)
  • Piano: Terra
  • Stato: Buono
  • Prezzo: 8.000 €
  • Prezzo al mq: 16 €
  • Giardino: Privato - 200 Mq
  • Spazio Auto: No
  • Modificato il: 06/03/2025
  • Scheda: SC9561856

Stabile

  • Piano: Terra su 4 totali
G

Mappa e indirizzo

Attività commerciale sito in via marradi, 30
57128 Livorno (Livorno)
Magenta
mappa mostra l'annuncio su mappa

Galleria Fotografica

Contatta l'inserzionista

Megaron Immobiliare Livorno

Megaron Immobiliare Livorno di Pisa propone in affitto questo immobile, contattali subito!

Annunci immobiliari a Livorno (LI)

Copyright © 2026 PCase.it. All rights reserved. Sede operativa MILANO. P.IVA 08508420968 - Condizioni d'uso e privacy