Preferiti

Sponsorizza

Stampa

Attività commerciale in gestione a Castelfiorentino

  • trattativa riservata
  • 3 locali
  • 184 mq
  • Affittasi

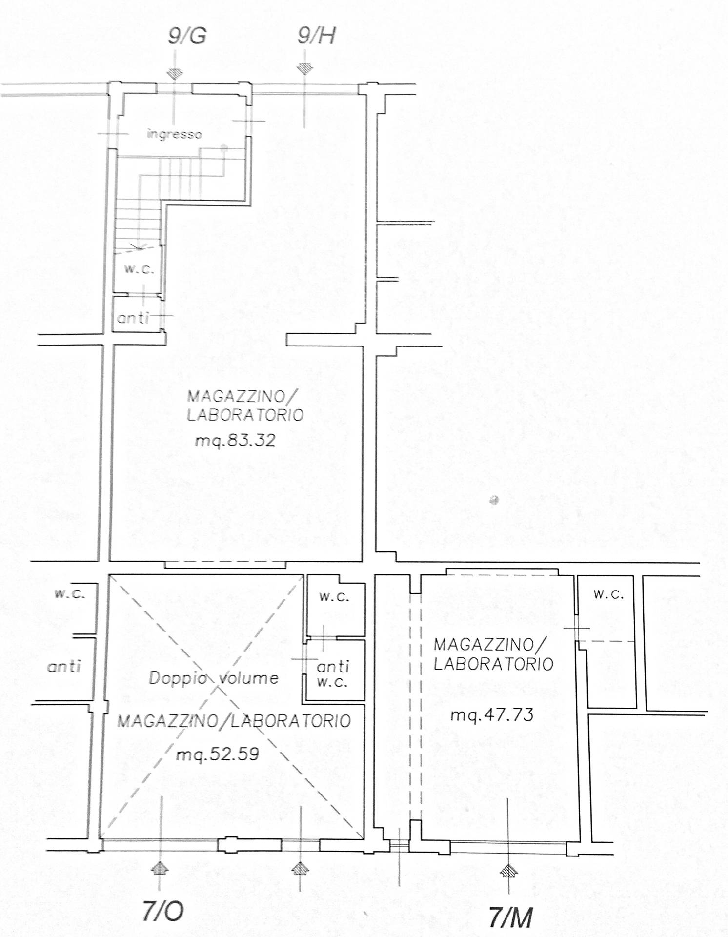
Fondo ad uso commerciale in affitto a Castelfiorentino a 2 km dal centro, zona periferica.
Si affitta fondo commerciale totalmente ristrutturato di mq 183,64 con tre bagni e antibagni, ampia possibilit di parcheggio esterno.
Possibilit di frazionamento.
Rif. CC/8449 Tratt.
Riservata.
Per maggiori informazioni potete contattare i seguenti numeri Ufficio/Whatsapp 0571 629187 cell. 393 9703849 oppure potete visitare il nostro sito ***.*******.** e valutare altre interessanti proposte. Contatta l'inserzionista

Affitta Presto CastelfiorentinoAffitta Presto Castelfiorentino
via Mario Bustichini n.18/a
50051, Castelfiorentino (Firenze)
Visualizza Telefono

INFORMAZIONI SULL'IMMOBILE

  • Riferimento: CC8449
  • Tipologia: Attività commerciale in Gestione
  • Locali: 3 Locali (2 camere e 3 bagni)
  • Piano: Terra
  • Stato: Ottimo
  • Modificato il: 15/05/2020
  • Scheda: SC9554321

Stabile

  • Piano: Terra su 1 totali
  • Classe Energetica: n.d.

Contatta l'inserzionista

Affitta Presto Castelfiorentino

Affitta Presto Castelfiorentino di Castelfiorentino propone in affitto questo immobile, contattali subito!

Annunci simili

Annunci immobiliari a Castelfiorentino (FI)

Copyright © 2026 PCase.it. All rights reserved. Sede operativa MILANO. P.IVA 08508420968 - Condizioni d'uso e privacy