Preferiti

Sponsorizza

Stampa

Stabile/Palazzo in vendita a Castel Bolognese in via calamello 1035

  • trattativa riservata
  • Vendesi

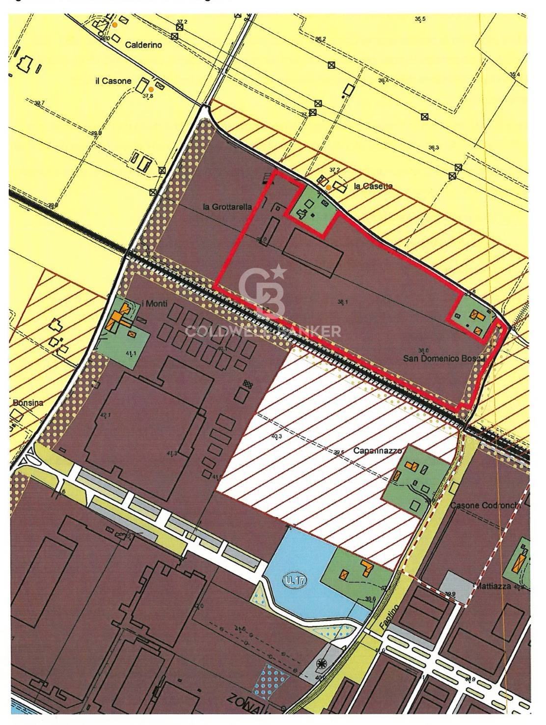
Importante complesso logistico-industriale a reddito in vendita Castel Bolognese (RA) Nel cuore della zona industriale di Castel Bolognese, in posizione strategica tra Bologna e Ravenna, proponiamo in vendita un ampio complesso industriale e logistico di grande valore strategico, ideale per investitori alla ricerca di un asset gi a reddito e con interessanti prospettive di crescita.
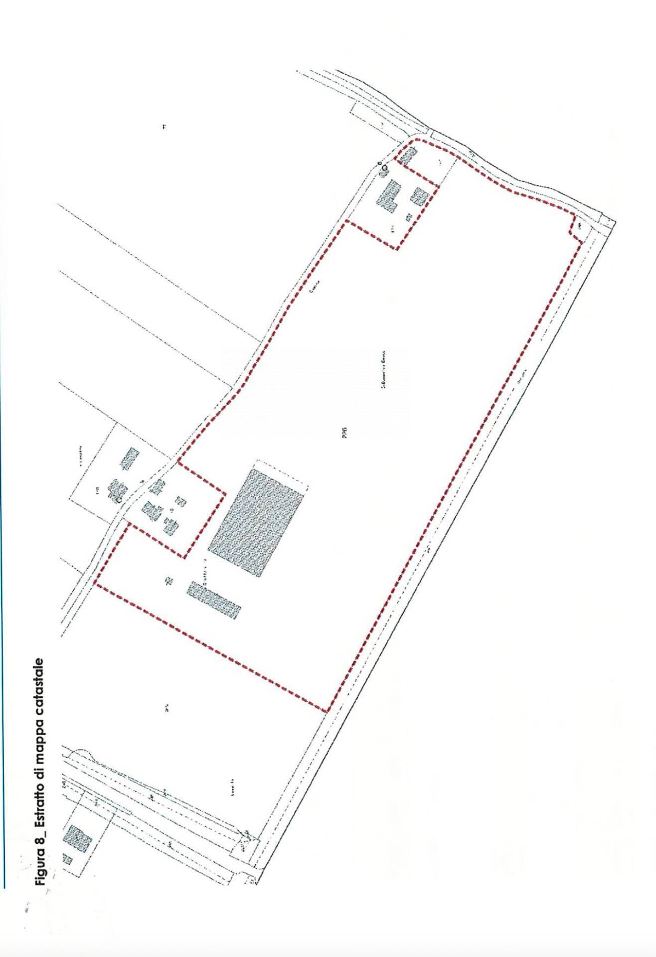
La propriet si estende su unarea complessiva di oltre 82.000 mq e comprende un articolato complesso immobiliare composto da: un capannone industriale ad uso magazzino di circa 3.845 mq una palazzina uffici con servizi di circa 442 mq una tettoia di circa 489 mq una pesa per autocarri vaste aree esterne operative pavimentate, ideali per movimentazione merci, logistica e stoccaggio.
Le superfici esterne sono particolarmente generose e consentono la gestione efficiente dei flussi di mezzi pesanti, rendendo limmobile perfettamente adatto a operatori logistici, distributivi o produttivi.
Il complesso si presenta in condizioni complessivamente buone e funzionali allutilizzo industriale.
Gli ampi piazzali, laccessibilit per i mezzi pesanti e la presenza di infrastrutture come la pesa camion rappresentano elementi di grande valore per attivit che richiedono spazi logistici efficienti.
Dal punto di vista urbanistico, larea ricade in ambito produttivo specializzato, destinato ad attivit industriali e logistiche, con importanti superfici pertinenziali che garantiscono grande flessibilit operativa.
Un elemento particolarmente interessante delloperazione rappresentato dal fatto che limmobile attualmente locato con un canone annuo di ?600.000, offrendo quindi un rendimento immediato e stabile, caratteristica che rende questa propriet particolarmente attrattiva per investitori istituzionali o privati.
A rafforzare ulteriormente il valore strategico dellinvestimento contribuisce inoltre la prossima apertura del nuovo casello autostradale di Castel Bolognese, che sorger a soli 3 km dal complesso.
Questa infrastruttura migliorer significativamente laccessibilit dellarea e aumenter nel tempo lattrattivit logistica e il valore dellimmobile.
Grazie alla posizione logistica centrale tra Bologna e Ravenna, alla grande estensione del lotto, alla redditivit immediata e alle prospettive di valorizzazione legate alle nuove infrastrutture, questa propriet rappresenta unopportunit di investimento rara nel mercato immobiliare industriale dellEmilia-Romagna.
Informazioni complete, documentazione tecnica e dettagli sul contratto di locazione disponibili su richiesta. Contatta l'inserzionista

Coldwell Banker Prime PropertiesColdwell Banker Prime Properties
Viale Virgilio 4
47838, Riccione (Rimini)
Visualizza Telefono

INFORMAZIONI SULL'IMMOBILE

  • Riferimento: CBI099-1008-520813
  • Tipologia: Stabile/Palazzo in Vendita
  • Stato: Ottimo
  • Riscaldamento: Autonomo
  • Modificato il: 13/03/2026
  • Scheda: SC9619031

Stabile

  • Piani Totali: 2
  • Classe Energetica: n.d.

Mappa e indirizzo

Stabile/Palazzo sito in via calamello, 1035
48014 Castel Bolognese (Ravenna)
mappa mostra l'annuncio su mappa

Galleria Fotografica

Contatta l'inserzionista

Coldwell Banker Prime Properties

Coldwell Banker Prime Properties di Riccione propone in vendita questo immobile, contattali subito!

Annunci immobiliari a Castel Bolognese (RA)

Copyright Š 2026 PCase.it. All rights reserved. Sede operativa MILANO. P.IVA 08508420968 - Condizioni d'uso e privacy