Preferiti

Sponsorizza

Stampa

Appartamento in vendita ristrutturato a Folignano in via arezzo

  • 140.235€
  • 3 locali
  • 94 mq
  • Vendesi

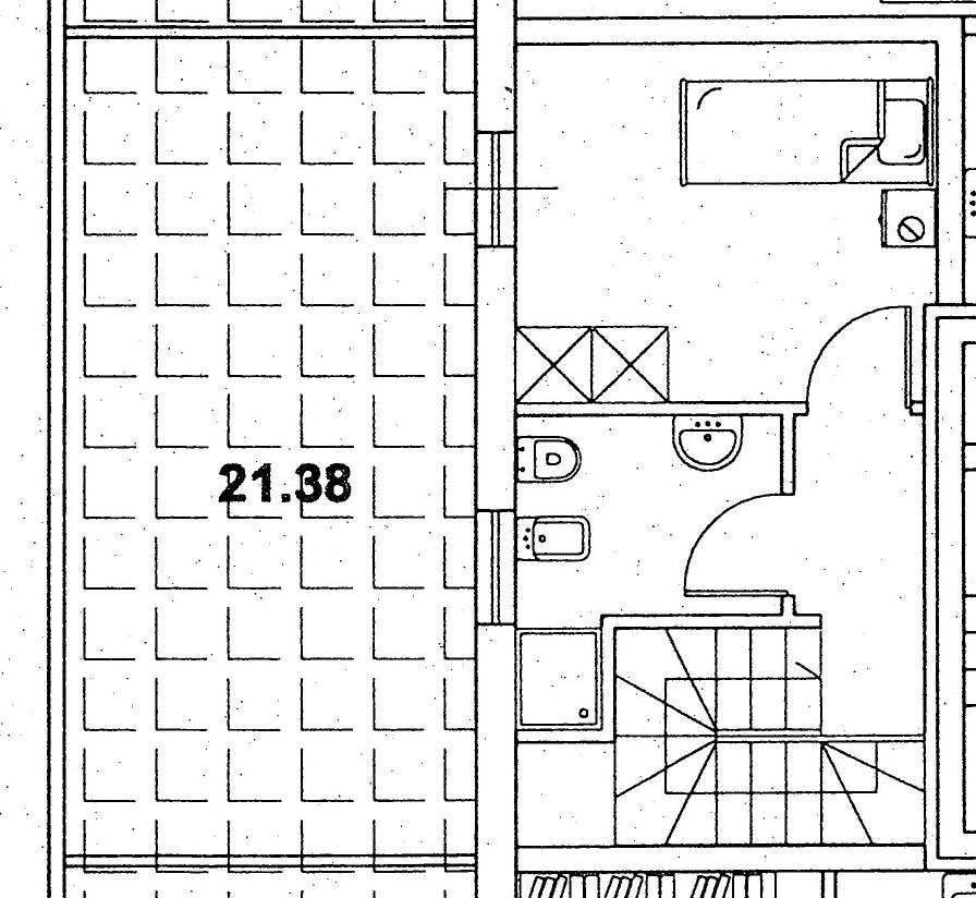
Appartamento in Duplex di recente ristrutturazione, delle dimensioni di 83 mq circa composto da tre locali con esposizione sul lato Sud, sito al quinto e sesto piano (ultimo), servito da ascensore, all' interno di una palazzina recentemente ristrutturata . - RIF. 1895 L' unit risulta cos suddivisa: -Primo livello: ingresso su soggiorno con angolo cottura, bagno finestrato con box doccia, camera da letto matrimoniale, scala di collegamento al piano superiore; -Secondo livello: disimpegno, camera singola e bagno finestrato con box doccia.
Terrazzo di mq 21 circa a servizio della camera da letto.
Disponibilit di garage di varie metrature sito al piano interrato e collegato all'appartamento attraverso l'ascensore, disponibilit inoltre di posti auto adiacenti alla palazzina.
L'unit in oggetto che fa parte di un complesso recentemente ristrutturato con cappotto termico esterno, in corso di realizzazione, quindi con possibilit di scelta rivestimenti interni, dotata di tutti i comfort per ottenere il massimo risparmio energetico, predisposizione per impianto di climatizzazione, infissi in legno doppio vetro taglio termico corredati da tapparelle, riscaldamento centralizzato, oltre a portoncino blindato videocitofono.
Classe energetica in corso di valutazione.
Questa soluzione in vendita a Folignano, localit Villa Pigna, rappresenta un ottimo investimento oltre che la residenza ideale per un nucleo familiare in cerca di vicinanza al centro e ai servizi tutti raggiungibili comodamente a piedi.
Per ulteriori informazioni e per eventuali visite potete contattare il numero 0735.060012, siamo disponibili presso i nostri uffici siti a San Benedetto del Tronto in via L. Bianchi, 18. Contatta l'inserzionista

Agile ImmobiliareAgile Immobiliare
via bianchi 18
63074, San Benedetto del Tronto (Ascoli Piceno)
Visualizza Telefono

INFORMAZIONI SULL'IMMOBILE

  • Riferimento: 1895
  • Tipologia: Appartamento in Vendita
  • Locali: 3 Locali (2 camere con doppi servizi)
  • Stato: Ristrutturato
  • Prezzo: 140.235 €
  • Prezzo al mq: 1.492 €
  • Riscaldamento: Centralizzato
  • Modificato il: 10/12/2021
  • Scheda: SC9561222

Stabile

  • Anno: 1985
  • Piani Totali: 10
  • Classe Energetica: n.d.

Mappa e indirizzo

Appartamento sito in via arezzo
63040 Folignano (Ascoli Piceno)
mappa mostra l'annuncio su mappa

Galleria Fotografica

Contatta l'inserzionista

Agile Immobiliare

Agile Immobiliare di San Benedetto del Tronto propone in vendita questo immobile, contattali subito!

Annunci simili

Annunci immobiliari a Folignano (AP)

Copyright Š 2026 PCase.it. All rights reserved. Sede operativa MILANO. P.IVA 08508420968 - Condizioni d'uso e privacy