Preferiti

Sponsorizza

Stampa

Castello in vendita con giardino a Vellezzo Bellini in via pavia 10

  • trattativa riservata
  • 14 locali
  • 2800 mq
  • Vendesi

Castello storico in vendita a Giovenzano A Giovenzano, nel territorio di Vellezzo Bellini, si trova questo castello risalente al XVI secolo, un tempo residenza di Lodovico Pallavicino di Scipione.
Conosciuto come Il Gioiello, ledificio conserva limpianto originario e si sviluppa intorno a una corte interna, con ambienti storici distribuiti su due livelli.
La propriet circondata da un parco privato che ne valorizza la riservatezza e latmosfera.
La posizione, tra Pavia e Milano, garantisce un facile accesso ai principali collegamenti senza rinunciare alla tranquillit della campagna.
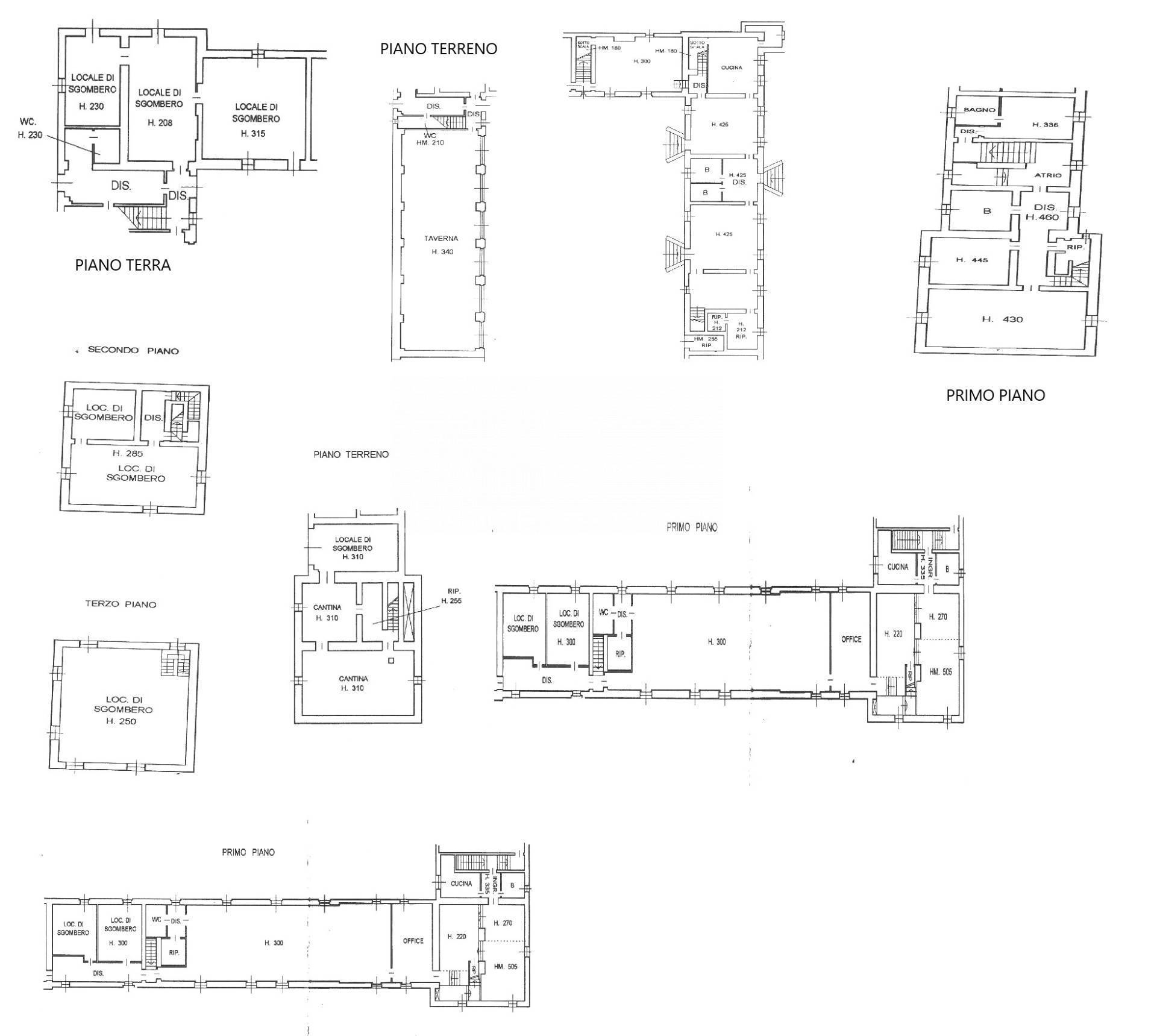
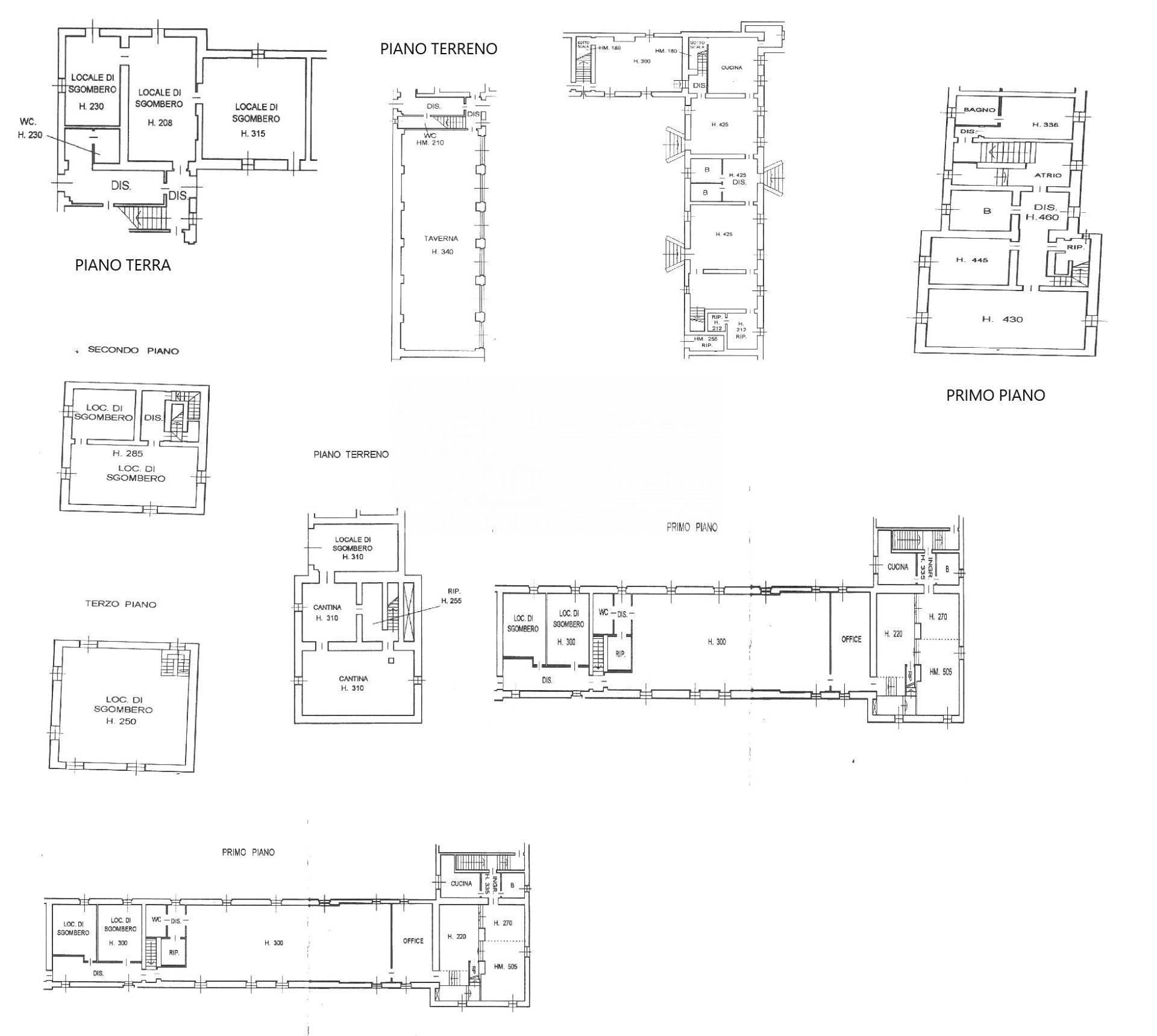
Spazi interniIl castello ha una superficie complessiva di circa 2.800 m, articolata in un corpo centrale a due piani e una torre a tre piani.
Gli interni includono ampi saloni affrescati, una cucina professionale e numerosi ambienti di rappresentanza.
Ai piani superiori si trovano cinque appartamenti, due sale per eventi e una mansarda.
La torre centrale e le aree private conservano elementi architettonici originali, che testimoniano il valore storico della residenza.
Spazi esterni e serviziIl castello circondato da un parco privato di circa 5,5 ettari, con alberi secolari, vialetti, terrazze e aree a prato.
La corte interna ideale per ricevimenti allaperto, mentre il giardino valorizza laccesso principale.
Nel cortile si trova anche una cappella privata.
Gli spazi esterni offrono scorci suggestivi ideali anche per servizi fotografici ed eventi privati.
Posizione e collegamentiIl Castello di Giovenzano si trova in Lombardia, in una zona collinare tra larea rurale di Milano e il parco del Tichino.
La posizione garantisce tranquillit e riservatezza, pur restando ben collegata ai principali centri urbani.
Milano raggiungibile in circa unora dauto, mentre Pavia dista circa 30 minuti.
La rete autostradale e ferroviaria assicura collegamenti efficienti anche con laeroporto di Milano Linate, accessibile in meno di unora. Contatta l'inserzionista

Coldwell Banker Immobiliare MorabitoColdwell Banker Immobiliare Morabito
Corso Sempione, 44
20154, Milano (Milano)
Visualizza Telefono

INFORMAZIONI SULL'IMMOBILE

  • Riferimento: CBI135-2837-2205
  • Tipologia: Castello in Vendita
  • Locali: 14 Locali
  • Stato: Ottimo
  • Bagni: 8
  • Riscaldamento: Autonomo
  • Giardino: Privato - 5500 Mq
  • Cantina: Si
  • Soffitta: Si
  • Modificato il: 12/11/2025
  • Scheda: SC9399606

Stabile

  • Anno: 1500
  • Piani Totali: 3
F

Mappa e indirizzo

Castello sito in via pavia, 10
27010 Vellezzo Bellini (Pavia)
mappa mostra l'annuncio su mappa

Galleria Fotografica

Contatta l'inserzionista

Coldwell Banker Immobiliare Morabito

Coldwell Banker Immobiliare Morabito di Milano propone in vendita questo immobile, contattali subito!

Annunci immobiliari a Vellezzo Bellini (PV)

Copyright Š 2026 PCase.it. All rights reserved. Sede operativa MILANO. P.IVA 08508420968 - Condizioni d'uso e privacy