Preferiti

Sponsorizza

Stampa

Rustico in vendita da ristrutturare a Oleggio in via gramsci 76

  • 53.000€
  • 5 locali
  • 90 mq
  • Vendesi

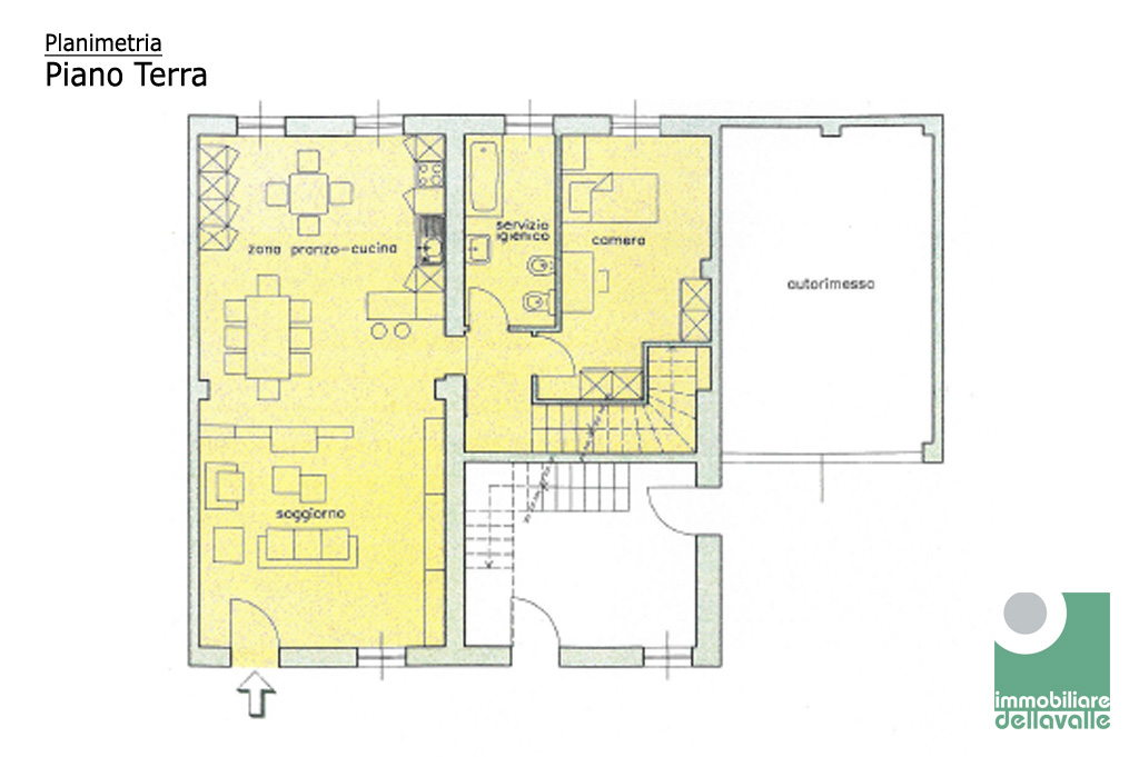
Porzione terminale di cascina totalmente da ristrutturare , sviluppata su due livelli oltre sottotetto ed adiacente cassero recuperabile ai fini abitativi.
Completa la propriet il terreno agricolo di mq 4620 . Disponibili elaborati progettuali presso il nostro ufficio con possibile soluzione abitativa . Rif. annuncio 628V_OL IMMOBILIARE DELLAVALLE - Oleggio, via Gramsci 76 Tel. 0321998685 - Cell. 375 5704138 Ci occupiamo di compravendita e di locazione.
Accompagniamo i nostri clienti in tutte le fasi della trattativa, garantendo l'assistenza tecnica necessaria per vendere, acquistare o locare un immobile in tutta sicurezza e tranquillit.
Contattaci per maggiori informazioni. Contatta l'inserzionista

Immobiliare DellavalleImmobiliare Dellavalle
via gramsci 76
28047, Oleggio (Novara)
Visualizza Telefono

INFORMAZIONI SULL'IMMOBILE

  • Riferimento: 628V_OL
  • Tipologia: Rustico in Vendita
  • Locali: 5 Locali
  • Stato: da Ristrutturare
  • Prezzo: 53.000 €
  • Prezzo al mq: 589 €
  • Spazio Auto: No
  • Modificato il: 20/07/2022
  • Scheda: SC9565990

Stabile

  • Piani Totali: 2
  • Classe Energetica: Immobile non soggetto a certificazione energetica

Mappa e indirizzo

Rustico sito in via gramsci, 76
28047 Oleggio (Novara)
mappa mostra l'annuncio su mappa

Galleria Fotografica

Contatta l'inserzionista

Immobiliare Dellavalle

Immobiliare Dellavalle di Oleggio propone in vendita questo immobile, contattali subito!

Annunci immobiliari a Oleggio (NO)

Copyright Š 2026 PCase.it. All rights reserved. Sede operativa MILANO. P.IVA 08508420968 - Condizioni d'uso e privacy