Preferiti

Sponsorizza

Stampa

Casa indipendente in vendita con giardino a Ro in via viazza

  • 69.000€
  • 6 locali
  • 150 mq
  • Vendesi

Casa con terreno in vendita a Guarda Ferrarese, Ferrara.
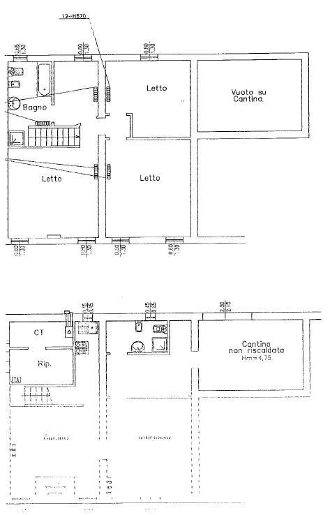
Situato in un contesto di estrema tranquillit ed interno alla strada comunale, vendiamo casa di circa 150 mq disposta su due piani oltre ad un edificio collabente di circa 100 mq adiacente la casa. Ledificio libero sui quattro lati e il terreno circostante di circa 2 ettari.
Attualmente la casa dispone di un piano terra con ampio ingresso, sala con camino, cucinotto, due grandi locali ad uso cantina.
Al piano primo tre camere da letto di grandi dimensioni, bagno.
Il terreno ideale per chiunque voglia coltivarlo, piantare alberi o tenere animali.
Poco distanti le frazioni di RO, Polesella, Rovigo.
Ferrara.
Potete contattarci senza impegno per ricevere maggiori informazioni o per prenotare un appuntamento per visionare questa Casa con terreno in vendita a Guarda Ferrarese, Ferrara.
Cod. 3436. ?. 69.000 Contatta l'inserzionista

PROGETTO CASA FERRARAPROGETTO CASA FERRARA
VIA SARACENO 44
44100, Ferrara (Ferrara)
Visualizza Telefono

INFORMAZIONI SULL'IMMOBILE

  • Riferimento: 3436
  • Tipologia: Casa indipendente in Vendita
  • Locali: 6 Locali
  • Prezzo: 69.000 €
  • Prezzo al mq: 460 €
  • Giardino: Privato
  • Modificato il: 22/03/2024
  • Scheda: SC9555852

Stabile

  • Classe Energetica: n.d.

Mappa e indirizzo

Casa indipendente sito in via viazza
44030 Ro (Ferrara)
mappa mostra l'annuncio su mappa

Galleria Fotografica

Contatta l'inserzionista

PROGETTO CASA FERRARA

PROGETTO CASA FERRARA di Ferrara propone in vendita questo immobile, contattali subito!

Annunci immobiliari a Ro (FE)

Copyright Š 2026 PCase.it. All rights reserved. Sede operativa MILANO. P.IVA 08508420968 - Condizioni d'uso e privacy