Preferiti

Sponsorizza

Stampa

Casa indipendente in vendita con giardino a Ferrara in via mascheraio

  • 490.000€
  • 7 locali
  • 240 mq
  • Vendesi

Nella splendida cornice di Casa Manfredini, via Mascheraio, adiacenze Piazza Ariostea, in palazzo storico vincolato, vendiamo luminoso appartamento con ingresso indipendente, piccolo giardino e posto auto meccanizzato di propriet acquistabile separatamente.
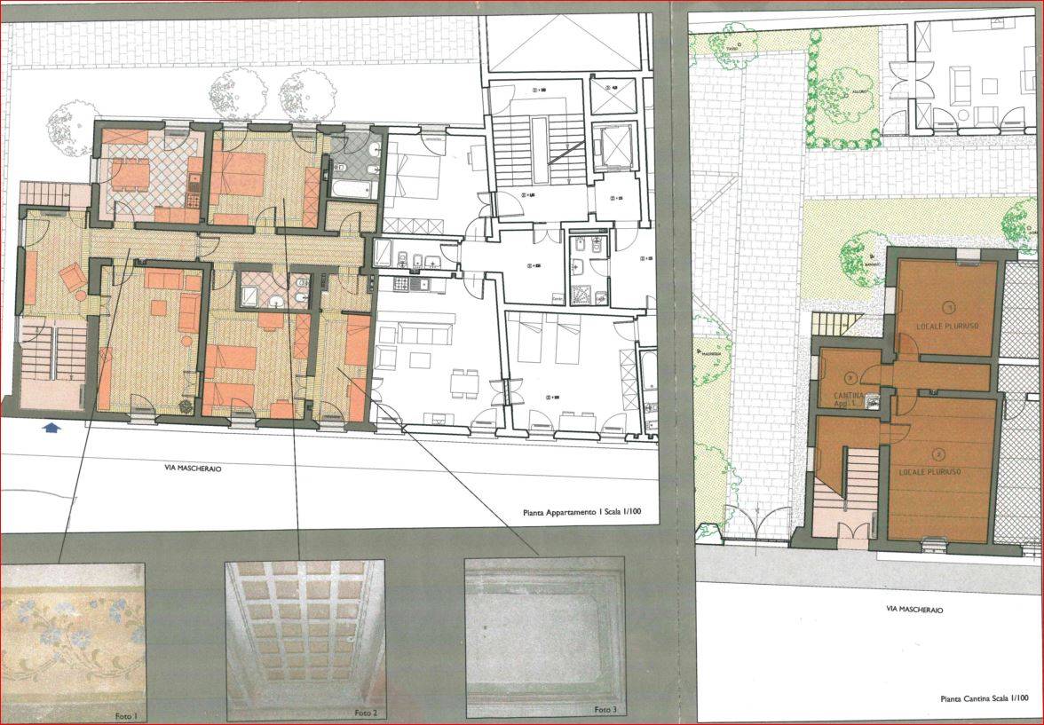
Limmobile cos disposto: Al piano rialzato, una zona ingresso studio ampia e luminosa, cucina abitabile di grande metratura contigua alla zona pranzo soggiorno, generosa stanza adibita a salotto o 3 camera da letto matrimoniale.
Corridoio notte con accesso alla camera padronale con soffitti decorati e bagno privato.
Camera singola, cabina armadio, 2 bagno.
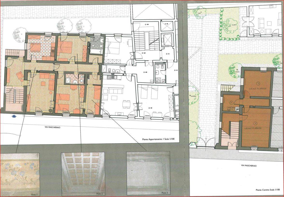
Al piano inferiore due grandi vani multiuso di circa 80 mq, utilizzabili come ulteriori camere da letto o studio, lavanderia con doccia.
Ripostiglio.
Dalla zona giorno possibile scendere al piccolo giardinetto privato di circa 10 mq e accedere al giardino comune del palazzo e ai posti auto meccanizzati.
Laccesso inoltre consentito tramite il bellissimo androne di casa Manfredini dove troverete il deposito cicli comune.
Grazie alla ristrutturazione completa dell'immobile, si trovano pavimenti in parquet, scale e bagni in marmo, porte depoca, soffitti e pareti decorate.
La casa completamente climatizzata e riscaldata con contabilizzatori autonomi.
Le spese condominiale comprendono il riscaldamento la climatizzazione e le spese ordinarie dello stabile.
Possibilit di essere sfruttata come casa e lavoro.
La vicinanza al centro storico, alla piazza Ariostea e il parcheggio auto, la rendono un oggetto quasi unico nel suo genere.
COD.2496 ?. 490.000. Contatta l'inserzionista

PROGETTO CASA FERRARAPROGETTO CASA FERRARA
VIA SARACENO 44
44100, Ferrara (Ferrara)
Visualizza Telefono

INFORMAZIONI SULL'IMMOBILE

  • Riferimento: 2496
  • Tipologia: Casa indipendente in Vendita
  • Locali: 7 Locali
  • Piano: Rialzato
  • Stato: Ristrutturato
  • Bagni: 2
  • Prezzo: 490.000 €
  • Prezzo al mq: 2.042 €
  • Giardino: Privato
  • Modificato il: 24/01/2026
  • Scheda: SC9547237

Stabile

  • Anno: 2007
  • Piano: Rialzato su 3 totali
F

Mappa e indirizzo

Casa indipendente sito in via mascheraio
44100 Ferrara (Ferrara)
Centro
mappa mostra l'annuncio su mappa

Video Slide

Galleria Fotografica

Contatta l'inserzionista

PROGETTO CASA FERRARA

PROGETTO CASA FERRARA di Ferrara propone in vendita questo immobile, contattali subito!

Annunci simili

Annunci immobiliari a Ferrara (FE)

Copyright Š 2026 PCase.it. All rights reserved. Sede operativa MILANO. P.IVA 08508420968 - Condizioni d'uso e privacy