Preferiti

Sponsorizza

Stampa

Casa indipendente in vendita da ristrutturare a Olbia

  • 130.000€
  • 5 locali
  • 125 mq
  • Vendesi

Olbia.
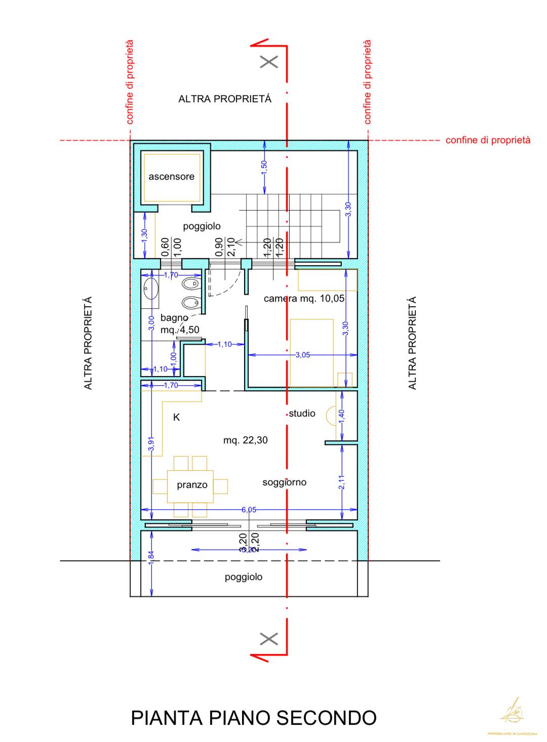
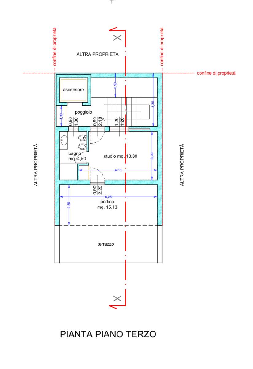
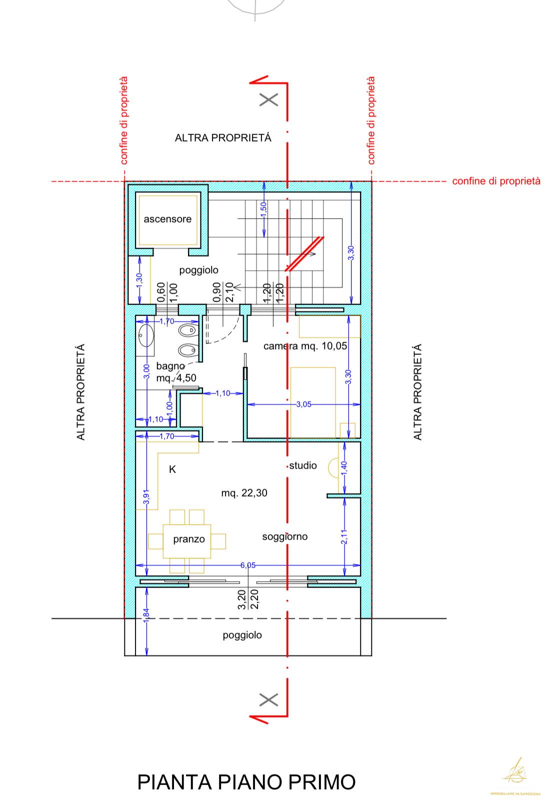
Immobile da ristrutturare e ampliare con progetto approvato categoria residenziale.
Olbia.
Immobile precedentemente utilizzato come laboratorio di pasticceria con variazione catastale da esercizio commerciale a residenziale - Progetto realizzato per immobile residenziale e approvato in Consiglio Comunale come previsto dalla normativa, ora in attesa di approvazione dirigenziale da parte dell' Ufficio Tecnico Edilizia Privata.
Al piano terra piano Pilotis con tre posto auto coperti e scala accesso ai piani superiori.
Al Primo e Secondo piano sono realizzabili due bilocali, al Terzo piano un monolocale con terrazza piana sovrastante. Contatta l'inserzionista

KR MEDIAZIONI - Immobiliare in SardegnaKR MEDIAZIONI - Immobiliare in Sardegna
Strada Vicinale Carrabuffas 46
07041, Alghero (Sassari)
Visualizza Telefono

INFORMAZIONI SULL'IMMOBILE

  • Riferimento: 15
  • Tipologia: Casa indipendente in Vendita
  • Locali: 5 Locali
  • Stato: da Ristrutturare
  • Bagni: 3
  • Prezzo: 130.000 €
  • Prezzo al mq: 1.040 €
  • Modificato il: 03/05/2025
  • Scheda: SC9626116

Stabile

  • Anno: 1950
  • Classe Energetica: n.d.

Mappa e indirizzo

07026 Olbia (Sassari)
mappa mostra l'annuncio su mappa

Galleria Fotografica

Contatta l'inserzionista

KR MEDIAZIONI - Immobiliare in Sardegna

KR MEDIAZIONI - Immobiliare in Sardegna di Alghero propone in vendita questo immobile, contattali subito!

Annunci immobiliari a Olbia (SS)

Copyright Š 2026 PCase.it. All rights reserved. Sede operativa MILANO. P.IVA 08508420968 - Condizioni d'uso e privacy