Preferiti

Sponsorizza

Stampa

Casa indipendente in vendita da ristrutturare a Offida in via garibaldi 65

  • 35.000€
  • 8 locali
  • 160 mq
  • Vendesi

In provincia di Ascoli Piceno - nel comune di Offida proponiamo in vendita Rustico incorporato nelle antiche mura cittadine, con vista panoramica sulle colline marchigiane a soli 25 km da San Benedetto del Tronto e Grottammare.
Offida un' Antico borgo racchiuso dalle mure castellane del XV sec, inserito tra I borghi pi belli d'Italia.
Nel cuore di Offida, propriet consistente in un rudere, libero su tre lati, da abbattere e ricostruire.
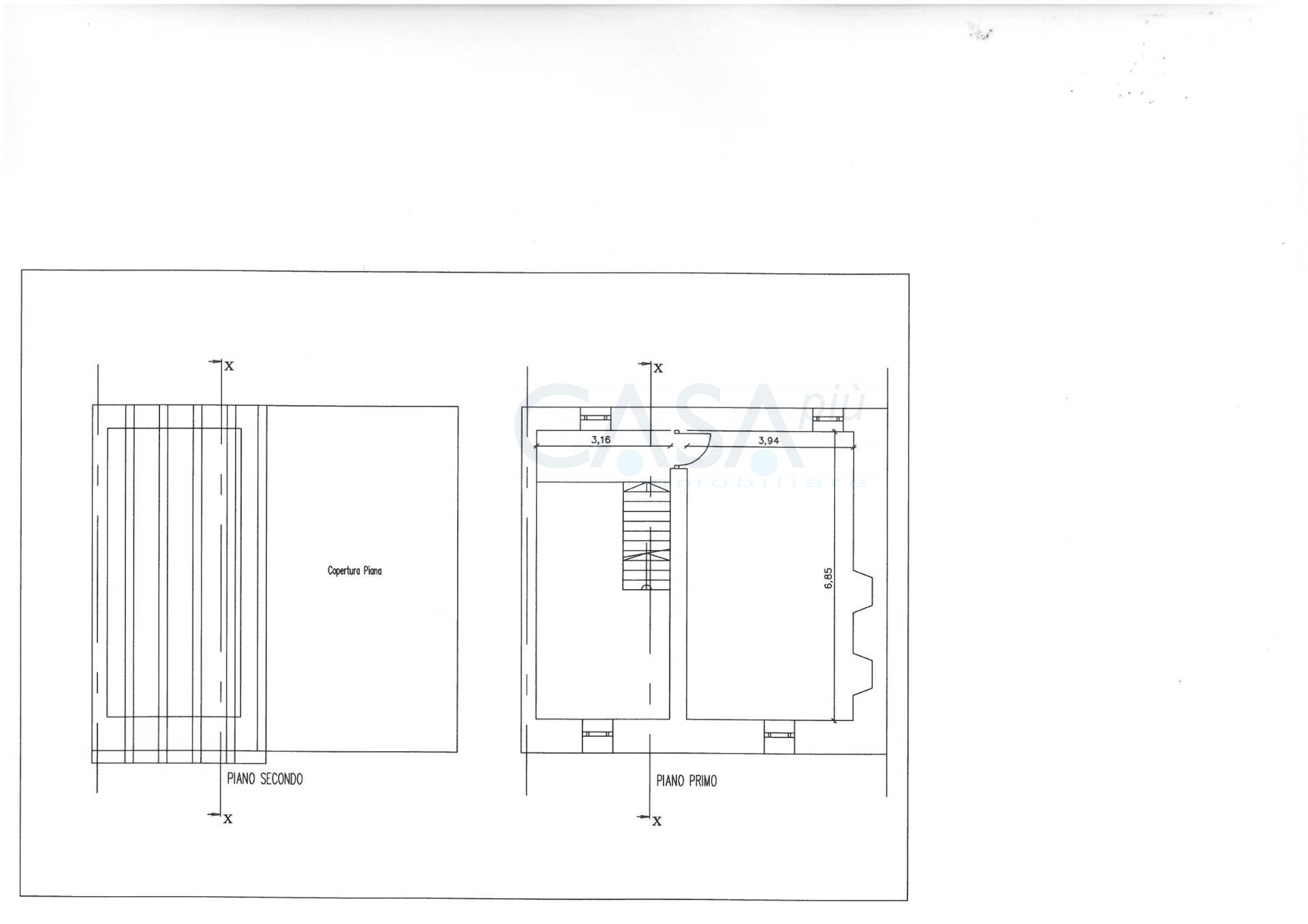
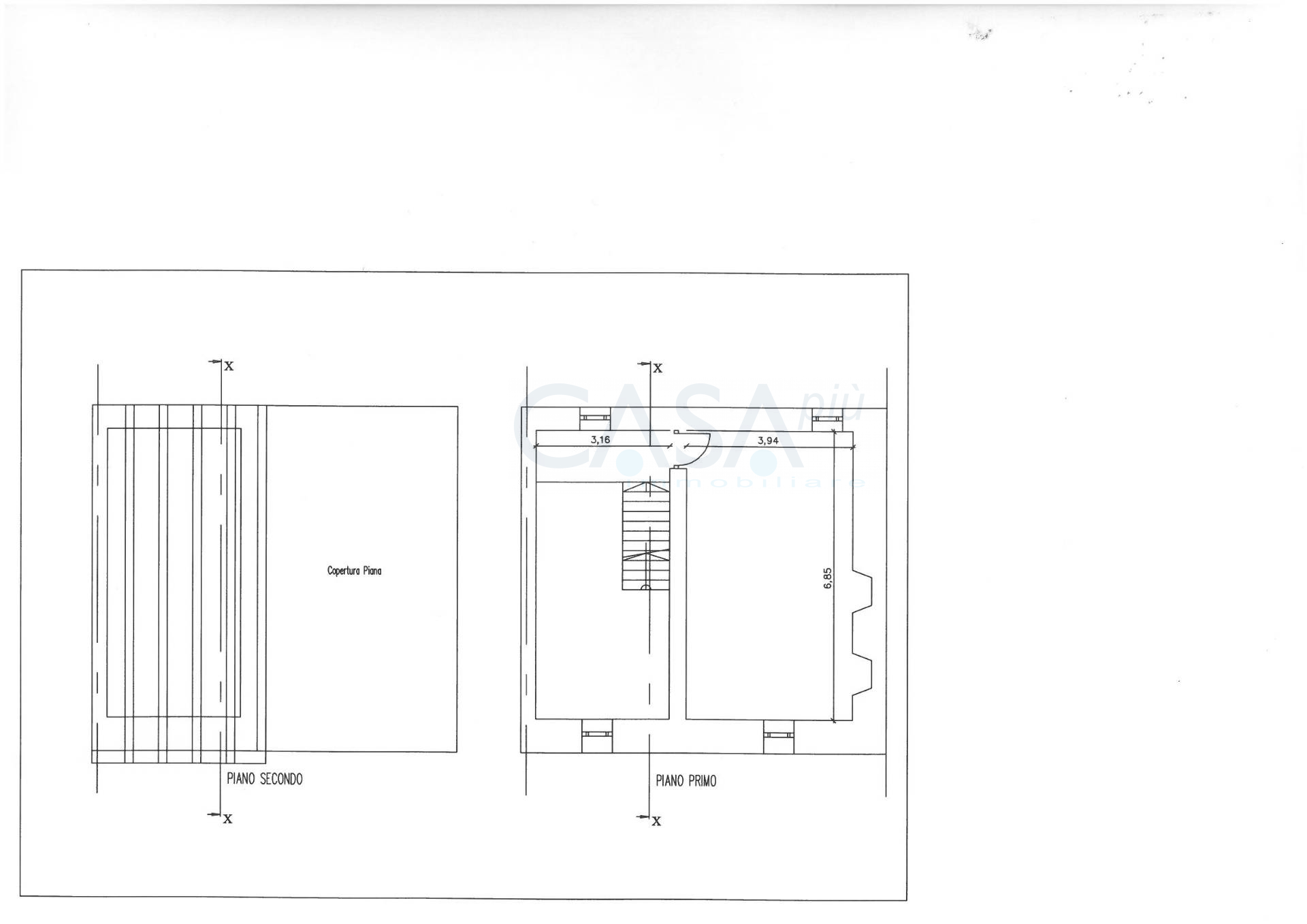
Si tratta di un ex rustico di vani 5,5 della superficie di circa 140 mq disposta su due piani (terra e primo) con corte di tipo esclusivo e locale di accesso, il cui portone d'ingresso affaccia su uno dei luoghi pi belli di Offida, adiacente l'ex Monastero di San Francesco ora enoteca regionale.
Progetto predisposto per la realizzazione di un edificio di tre piani (due piani abitativi oltre a vano tecnico con terrazza panoramica (o sottotetto). Possibilit di dividere la propriet in due unit abitative (come da progetto allegato) Ideale per chi cerca casa in un angolo di tranquillit immerso nella magia e vivacit della straordinaria Offida centro di bellezze naturali, edifici e monumenti di straordinario valore storico, divertimento con eventi, mostre, concerti, spettacoli, sagre e feste organizzate tutto l'anno oltre un'enogastronomia ricca di prodotti tipici e vini di alta qualit.
Riepilogo dimensioni progetto stato modificato: superficie abitativa 1° e 2° piano di 140 mq, 3° piano con locale tecnico di 25 mq oltre terrazza panoramica ( oppure sottotetto di 70 mq) , corte esclusiva 30 mq circa, locale d'ingresso 20 mq circa.
Propriet Ideale sia come residenza abituale sia come casa vacanza che come investimento a reddito. Contatta l'inserzionista

Casa Pių immobiliareCasa Pių immobiliare
Via Val Tiberina n. 140
63074, Ascoli Piceno (Ascoli Piceno)
Visualizza Telefono

INFORMAZIONI SULL'IMMOBILE

  • Riferimento: 170
  • Tipologia: Casa indipendente in Vendita
  • Locali: 8 Locali
  • Stato: da Ristrutturare
  • Prezzo: 35.000 €
  • Prezzo al mq: 219 €
  • Spazio Auto: No
  • Modificato il: 08/04/2019
  • Scheda: SC9568465

Stabile

  • Piani Totali: 2
  • Classe Energetica: Immobile non soggetto a certificazione energetica

Mappa e indirizzo

Casa indipendente sito in via garibaldi, 65
63035 Offida (Ascoli Piceno)
mappa mostra l'annuncio su mappa

Video Slide

Galleria Fotografica

Contatta l'inserzionista

Casa Pių immobiliare

Casa Pių immobiliare di Ascoli Piceno propone in vendita questo immobile, contattali subito!

Annunci immobiliari a Offida (AP)

Copyright Š 2026 PCase.it. All rights reserved. Sede operativa MILANO. P.IVA 08508420968 - Condizioni d'uso e privacy