Preferiti

Sponsorizza

Stampa

Casa indipendente in vendita con giardino a Montorio al Vomano in via giovanni pascoli

  • 300.000€
  • 3 locali
  • 120 mq
  • Vendesi

Immobil Oikos propone in vendita un progetto per casa indipendente prefabbricata in legno di ultima generazione, in classe energetica A3, garantita e assicurata per 30 anni. Si tratta di una soluzione abitativa moderna, realizzata con tecnologia platform frame, che rappresenta oggi uno dei sistemi costruttivi pi evoluti in termini di qualit, sicurezza ed efficienza energetica.
Lintero processo viene gestito in modo strutturato e altamente controllato: dalla progettazione tecnica interna, sviluppata tramite software CAD 2D e 3D, fino alla definizione strutturale basata sulle caratteristiche del terreno e nel pieno rispetto delle normative vigenti.
La realizzazione prevede una prima fase di preparazione con fondazioni in cemento armato e sistemi di impermeabilizzazione, seguita dalla produzione degli elementi strutturali in stabilimenti specializzati di oltre 10.000 mq, garanzia di precisione e qualit industriale.
Successivamente si procede al montaggio in cantiere della struttura prefabbricata, con posa delle pareti portanti in legno, realizzazione dei solai e della copertura, fino alla completa chiusura dellinvolucro edilizio.
Uno dei principali vantaggi di questa tecnologia la rapidit di esecuzione: lintero processo, dalla progettazione al montaggio, ha una durata indicativa di circa 11 mesi. Limmobile viene consegnato con una struttura ad alte prestazioni, composta da pareti multistrato con isolamento avanzato in lana minerale e cappotto in fibra di legno, in grado di garantire eccellenti performance termiche e acustiche, oltre a un perfetto controllo di umidit e condensa.
La copertura completamente personalizzabile (capriate, travi semplici o travi a vista), offrendo anche un importante valore estetico, mentre gli infissi in PVC con triplo vetro e doppia camera contribuiscono ulteriormente allefficienza energetica.
La struttura progettata per garantire elevata resistenza sismica e al fuoco, grazie allutilizzo di materiali certificati e standard qualitativi europei, rendendo labitazione sicura, durevole e altamente performante nel tempo.
possibile completare e personalizzare limmobile in ogni dettaglio: impianti, pavimentazioni, rivestimenti, bagni e finiture, adattando il progetto alle esigenze specifiche del cliente.
Importante: il progetto proposto rappresenta, secondo la nostra esperienza, la soluzione pi adatta al terreno.
Tuttavia, tramite il sito della societ con cui collaboriamo, possibile scegliere tra numerosi modelli e configurazioni, individuando la casa che meglio rispecchia i propri gusti e necessit.
Inoltre, per chi desidera maggiore flessibilit, possibile acquistare anche solo la struttura (grezzo avanzato) comprensiva di fondazioni, per poi completare limmobile in autonomia con artigiani o imprese locali.
Il prezzo indicativo di ?2.000/mq per la soluzione finita include anche linstallazione di impianto fotovoltaico, garantendo cos un ulteriore risparmio energetico e una maggiore sostenibilit nel tempo.
Soluzione ideale per chi cerca una casa moderna, efficiente, sostenibile e completamente personalizzabile, con tempi certi di realizzazione.
Perfetta sia come abitazione principale che come investimento immobiliare innovativo. Contatta l'inserzionista

Immobil Oikos di Pennacchietti LucianaImmobil Oikos di Pennacchietti Luciana
Via Triboletti 13
64026, Roseto degli Abruzzi (Teramo)
Visualizza Telefono

INFORMAZIONI SULL'IMMOBILE

  • Riferimento: 49
  • Tipologia: Casa indipendente in Vendita
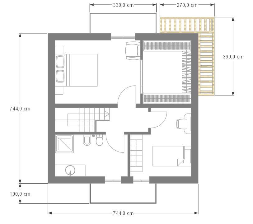
  • Locali: 3 Locali (2 camere con doppi servizi)
  • Stato: Buono
  • Prezzo: 300.000 €
  • Prezzo al mq: 2.500 €
  • Riscaldamento: Autonomo
  • Giardino: Privato - 1000 Mq
  • Spazio Auto: No
  • Modificato il: 03/04/2026
  • Scheda: SC9632390

Stabile

  • Anno: 2026
A3

Mappa e indirizzo

Casa indipendente sito in via giovanni pascoli
64046 Montorio al Vomano (Teramo)
mappa mostra l'annuncio su mappa

Video Slide

Galleria Fotografica

Contatta l'inserzionista

Immobil Oikos di Pennacchietti Luciana

Immobil Oikos di Pennacchietti Luciana di Roseto degli Abruzzi propone in vendita questo immobile, contattali subito!

Annunci immobiliari a Montorio al Vomano (TE)

Copyright Š 2026 PCase.it. All rights reserved. Sede operativa MILANO. P.IVA 08508420968 - Condizioni d'uso e privacy