Preferiti

Sponsorizza

Stampa

Casa indipendente in vendita a Monsampolo del Tronto in corso vittorio emanuele 41

  • 45.000€
  • 7 locali
  • 400 mq
  • Vendesi

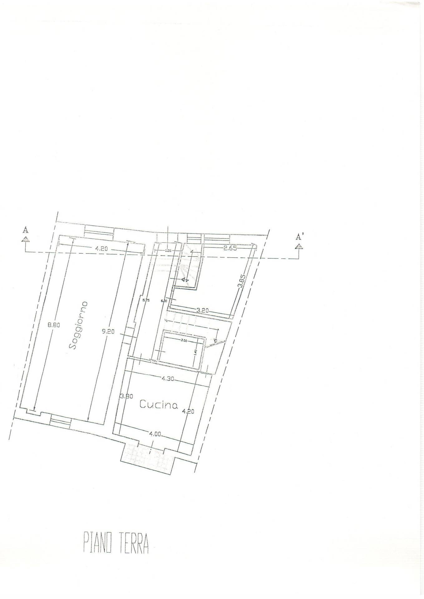
Casa cielo-terra di circa 400mq completamente da ristrutturare in Vendita nel centro storico di Monsampolo del Tronto, in provincia di Ascoli Piceno, nelle Marche.
La propriet, situata in prossimit della chiesa principale del Paese, si affaccia su due vie ed disposta su pi livelli: piano sotto strada, piano terra, piano primo, piano secondo.
Al piano sotto strada con accesso da Via Serafino Balestra troviamo uno spazioso garage ed un'ampia cantina con tipico soffitto a volte e mura in mattoncini.
Attraverso scala interna si accede al piano terra composto da due grandi locali adibiti a deposito di cui uno completo di balcone ed un bagno.
Al piano primo, con ingresso principale da Corso Vittorio Emanuele troviamo cucina con caminetto e salotto con accesso al balcone, oltre che disimpegno e locale di servizio.
Al piano secondo sono disposte tre camere da letto, un bagno oltre due terrazzi, uno esposto a nord con affaccio sul Corso, laltro esposto a sud con una magnifica vista che spazia dal Gran Sasso ai Monti Sibillini.
L'immobile si trova a soli 15 minuti di auto dalle spiagge di San Benedetto del Tronto, e a soli 20 minuti dalla citt di Ascoli Piceno. Contatta l'inserzionista

Property TalesProperty Tales
VIA DELLA TINTURA 8
63100, Ascoli Piceno (Ascoli Piceno)
Visualizza Telefono

INFORMAZIONI SULL'IMMOBILE

  • Riferimento: 112
  • Tipologia: Casa indipendente in Vendita
  • Locali: 7 Locali
  • Stato: da Ristrutturare
  • Bagni: 2
  • Prezzo: 45.000 €
  • Prezzo al mq: 113 €
  • Riscaldamento: Autonomo
  • Cantina: Si
  • Modificato il: 07/11/2024
  • Scheda: SC9558332

Stabile

  • Anno: 1920
  • Piani Totali: 4
I.P.E.
225Kwh/m3
G

Mappa e indirizzo

Casa indipendente sito in corso vittorio emanuele, 41
63030 Monsampolo del Tronto (Ascoli Piceno)
mappa mostra l'annuncio su mappa

Galleria Fotografica

Contatta l'inserzionista

Property Tales

Property Tales di Ascoli Piceno propone in vendita questo immobile, contattali subito!

Annunci immobiliari a Monsampolo del Tronto (AP)

Copyright Š 2026 PCase.it. All rights reserved. Sede operativa MILANO. P.IVA 08508420968 - Condizioni d'uso e privacy