Preferiti

Sponsorizza

Stampa

Casa indipendente in vendita da ristrutturare a Grosseto in via prile

  • 530.000€
  • 1 locale
  • 800 mq
  • Vendesi

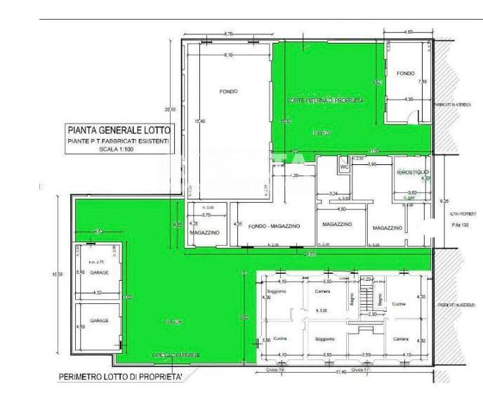
Rivolta vende, in esclusiva - Grosseto ad. via Nazario Sauro - palazzina di due livelli completamente da ristrutturare, composta da 4 unit immobiliari separate, con annessi magazzini e box. Vi la possibilit di costruire, grazie ad un'ipotesi di progetto in via di approvazione composto da 4 piani, 4 appartamenti per piano con relativi terrazzi ad eccezione dell'ultimo in cui vi presente un solo appartamento con ampio terrazzo.
Il progetto comprende anche la realizzazione di box e posti auto. Prezzo richiesto euro 530.000 Contatta l'inserzionista

INFORMAZIONI SULL'IMMOBILE

  • Riferimento: FSS-FR Grosseto
  • Tipologia: Casa indipendente in Vendita
  • Locali: 1 Locali ( 1 camera e 4 bagni)
  • Stato: da Ristrutturare
  • Prezzo: 530.000 €
  • Prezzo al mq: 663 €
  • Riscaldamento: Autonomo
  • Modificato il: 18/04/2024
  • Scheda: SC9559161

Stabile

  • Piani Totali: 2
  • Classe Energetica: n.d.

Mappa e indirizzo

Casa indipendente sito in via prile
58100 Grosseto (Grosseto)
Centro, Semi-Centro
mappa mostra l'annuncio su mappa

Galleria Fotografica

Contatta l'inserzionista

Rivolta immobiliare dal 1956 sede Roma Prati

Rivolta immobiliare dal 1956 sede Roma Prati di Roma propone in vendita questo immobile, contattali subito!

Annunci immobiliari a Grosseto (GR)

Copyright Š 2026 PCase.it. All rights reserved. Sede operativa MILANO. P.IVA 08508420968 - Condizioni d'uso e privacy