Preferiti

Sponsorizza

Stampa

Casa indipendente in vendita con giardino a Fiume Veneto

  • 398.000€
  • 5 locali
  • 161 mq
  • Vendesi

VILLETTA IN COSTRUZIONE A CIMPELLO CONSEGNA AUTUNNO 2027 Se cerchi una casa moderna, indipendente e personalizzabile, questa lopportunit perfetta! In una zona residenziale tranquilla di Fiume Veneto Loc. Cimpello, sono in costruzione due villette di cui una gi venduta, unite solo dal portico garage, garantendo massima privacy e comfort abitativo.
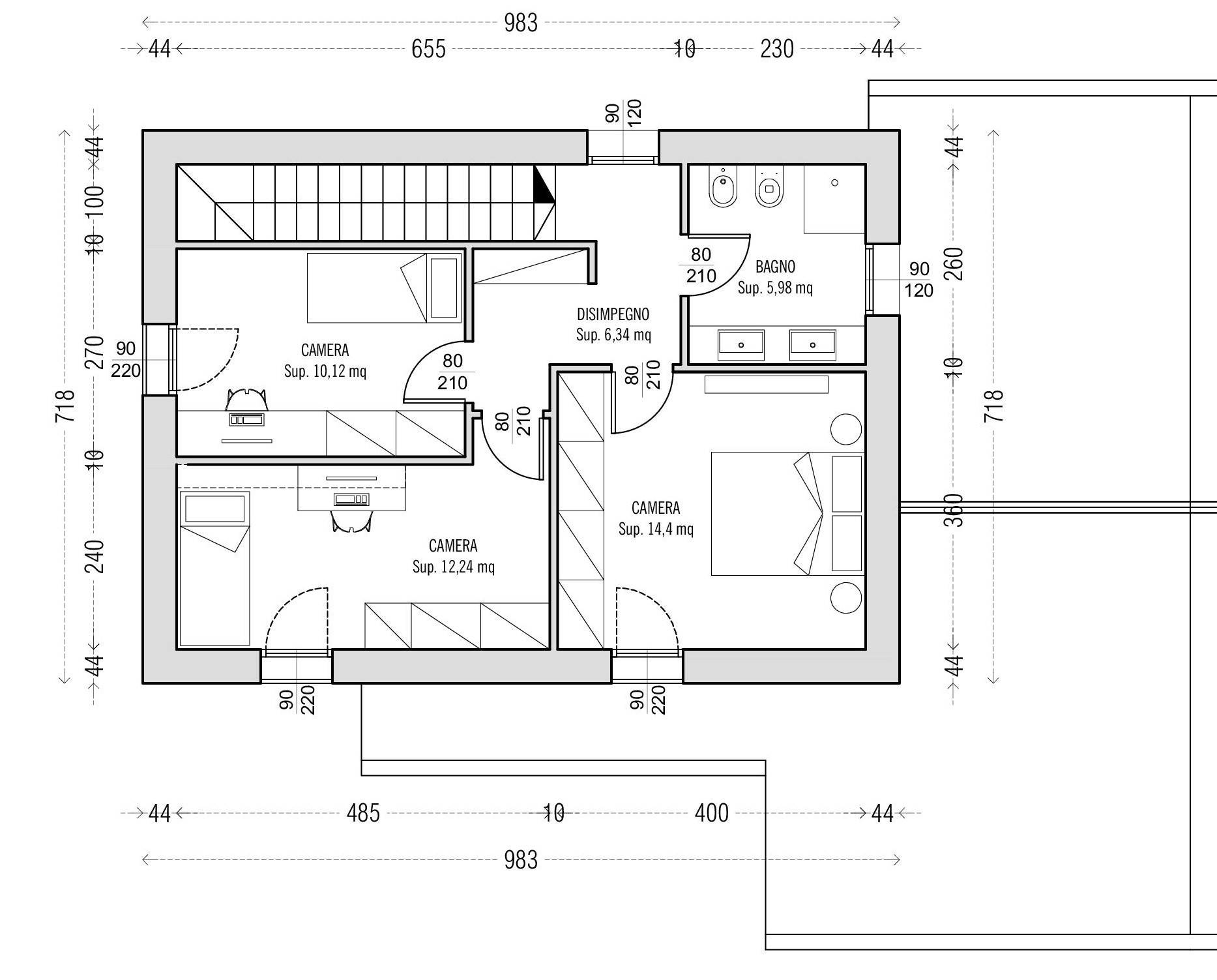
Caratteristiche principali: Superficie commerciale 161 mq, circa, spazi ben distribuiti su due livelli.
Piano terra: cucina-ampio soggiorno openspace( anche divisibile), portico esterno, servizio, locale impianti e porticato auto coperto Piano primo: tre camere da letto, ulteriore servizio, travi a vista in legno, per unatmosfera calda e accogliente.
Ampio giardino privato recintato di circa 500 mq con accesso carraio e posti auto esclusivi.
Finiture di qualit e possibilit di personalizzazione di impianti e materiali.
Posizione strategica, a pochi minuti dallo svincolo autostradale, per un collegamento rapido con la citt e i principali punti di interesse.
Proposta esente da mediazione perch gi assolta dal costruttore Valutiamo il tuo immobile usato e lo vendiamo alle migliori condizioni di mercato.
NOTA : il rendering mostrato realizzato con AI ed a scopo puramente illustrativo, non vincolante per la D.L. Per informazioni e dettagli sul progetto, contattaci al 0434-921788 e scopri altre proposte sul nostro sito sempre aggiornato ***.*******.** Contatta l'inserzionista

La Precisa SAS di Massimo Crotti & C.La Precisa SAS di Massimo Crotti & C.
Via della Colonna 26
33170, Pordenone (Pordenone)
Visualizza Telefono

INFORMAZIONI SULL'IMMOBILE

  • Riferimento: LPP01-4360-C
  • Tipologia: Casa indipendente in Vendita
  • Locali: 5 Locali
  • Piano: Terra
  • Bagni: 2
  • Prezzo: 398.000 €
  • Prezzo al mq: 2.472 €
  • Riscaldamento: Autonomo
  • Giardino: Privato
  • Modificato il: 23/03/2026
  • Scheda: SC9135997

Stabile

  • Anno: 2026
  • Piano: Terra su 2 totali
A4

Mappa e indirizzo

33080 Fiume Veneto (Pordenone)
mappa mostra l'annuncio su mappa

Galleria Fotografica

Contatta l'inserzionista

La Precisa SAS di Massimo Crotti & C.

La Precisa SAS di Massimo Crotti & C. di Pordenone propone in vendita questo immobile, contattali subito!

Annunci immobiliari a Fiume Veneto (PN)

Copyright Š 2026 PCase.it. All rights reserved. Sede operativa MILANO. P.IVA 08508420968 - Condizioni d'uso e privacy