Preferiti

Sponsorizza

Stampa

Casa indipendente in vendita con giardino a Cossignano in contrada grazie

  • trattativa riservata
  • 10 locali
  • 150 mq
  • Vendesi

Proponiamo in vendita a Cossignano (AP), in zona residenziale e tranquilla, casa singola in fase di costruzione.
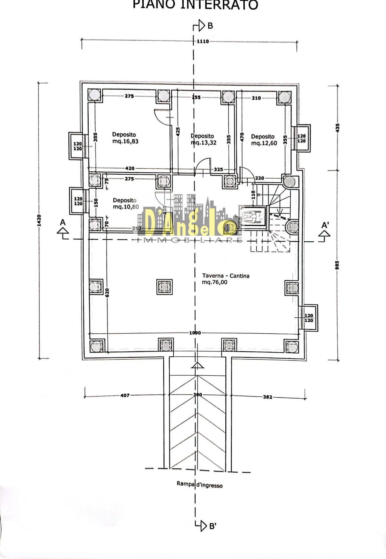
L'immobile si sviluppa su due livelli, per una superficie totale di 150 mq, ed composto da dieci locali spaziosi e ben distribuiti.
Attualmente in stato grezzo, la casa offre la possibilit di essere personalizzata e completata secondo i propri gusti e le proprie esigenze.
E' inoltre dotata di un giardino privato, ideale per trascorrere momenti di relax all'aria aperta e godere della tranquillit della zona. Grazie alla sua posizione su due piani, la casa garantisce un'ottima luminosit e una perfetta divisione degli spazi interni.
Ideale per una famiglia numerosa o per chi desidera ampi spazi.
Opportunit perfetta per vivere in una zona residenziale tranquilla e comoda ai servizi. Contatta l'inserzionista

D'Angelo ImmobiliareD'Angelo Immobiliare
Corso Serpente Aureo 24
63073, Offida (Ascoli Piceno)
Visualizza Telefono

INFORMAZIONI SULL'IMMOBILE

  • Riferimento: 24
  • Tipologia: Casa indipendente in Vendita
  • Locali: 10 Locali
  • Giardino: Privato
  • Spazio Auto: No
  • Modificato il: 07/05/2025
  • Scheda: SC9564188

Stabile

  • Piani Totali: 2
  • Classe Energetica: n.d.

Mappa e indirizzo

Casa indipendente sito in contrada grazie
63030 Cossignano (Ascoli Piceno)
mappa mostra l'annuncio su mappa

Galleria Fotografica

Contatta l'inserzionista

D'Angelo Immobiliare

D'Angelo Immobiliare di Offida propone in vendita questo immobile, contattali subito!

Annunci simili

Annunci immobiliari a Cossignano (AP)

Copyright Š 2026 PCase.it. All rights reserved. Sede operativa MILANO. P.IVA 08508420968 - Condizioni d'uso e privacy