Preferiti

Sponsorizza

Stampa

Casa indipendente in vendita con giardino a Arquata del Tronto in borgo d'arquata

  • trattativa riservata
  • 15 locali
  • 461 mq
  • Vendesi

De Carolis immobiliare propone in vendita, splendida palazzina con corte, nel meraviglioso borgo di Arquata del Tronto (Ap), posa ad un ad 1 km c/a dall'arteria principale di collegamento Salaria.
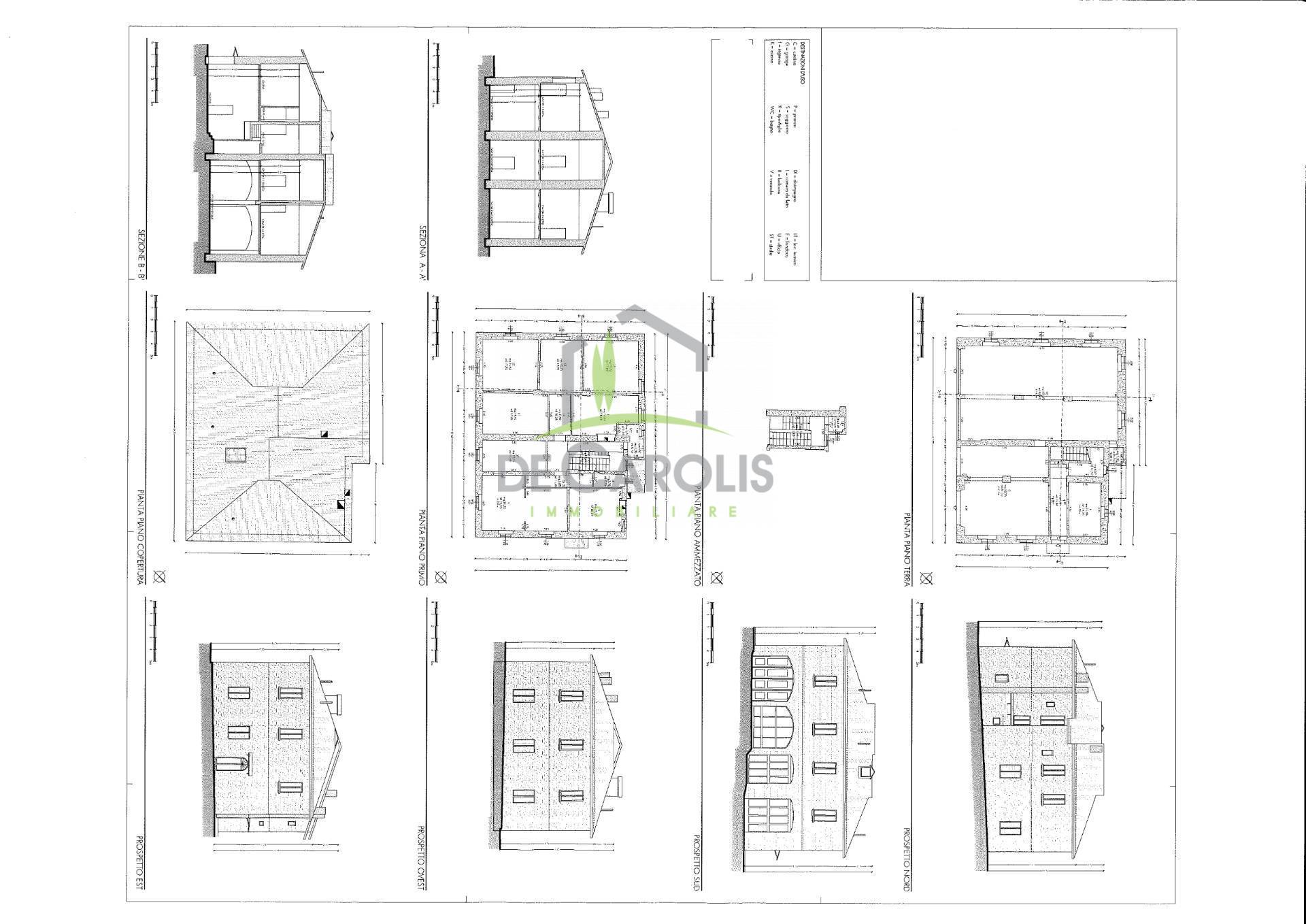
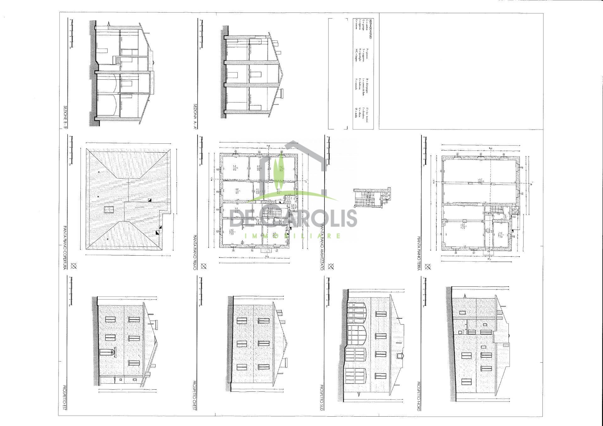
La propriet composta dallo stabile di c/a 461 mq di cui 130 locale commerciale e mq 70 di garage lavanderia.
Si precisa che l'immobile stato predisposto per creare due abitazioni con ingresso indipendente, di cui una propriet comprensiva di piano primo ad uso abitativo e piano terra ad uso commerciale/garage, ed altra propriet costituita da primo piano ad uso abitativo, e piano terra ad uso garage pi lavanderia.
Si precisa che gli immobili sono completi di tutta l'impiantistica a norma, di impianto fotovoltaico e di camino con possibilit di utilizzarlo come termo camino.
L'immobile stato completamente ristrutturato ci sono le foto dello stato originale e dello stato ultimato.
Ottima opportunit per struttura ricettiva, possibilit di dividere l'immobile in pi unit immobiliari.
Rif. 346 INFO IN Agenzia ***.*******.** Contatta l'inserzionista

De Carolis ImmobiliareDe Carolis Immobiliare
Corso Mazzini n. 57
63100, Ascoli Piceno (Ascoli Piceno)
Visualizza Telefono

INFORMAZIONI SULL'IMMOBILE

  • Riferimento: 346
  • Tipologia: Casa indipendente in Vendita
  • Locali: 15 Locali
  • Stato: da Ristrutturare
  • Bagni: 3
  • Riscaldamento: Autonomo
  • Giardino: Privato
  • Cantina: Si
  • Modificato il: 13/05/2026
  • Scheda: SC9553449

Stabile

G

Mappa e indirizzo

Casa indipendente sito in borgo d'arquata
63043 Arquata del Tronto (Ascoli Piceno)
mappa mostra l'annuncio su mappa

Galleria Fotografica

Contatta l'inserzionista

De Carolis Immobiliare

De Carolis Immobiliare di Ascoli Piceno propone in vendita questo immobile, contattali subito!

Annunci immobiliari a Arquata del Tronto (AP)

Copyright Š 2026 PCase.it. All rights reserved. Sede operativa MILANO. P.IVA 08508420968 - Condizioni d'uso e privacy