Preferiti

Sponsorizza

Stampa

Casa indipendente in vendita con giardino a Agropoli in via don aldo borrelli 7

  • 260.000€
  • 5 locali
  • 140 mq
  • Vendesi

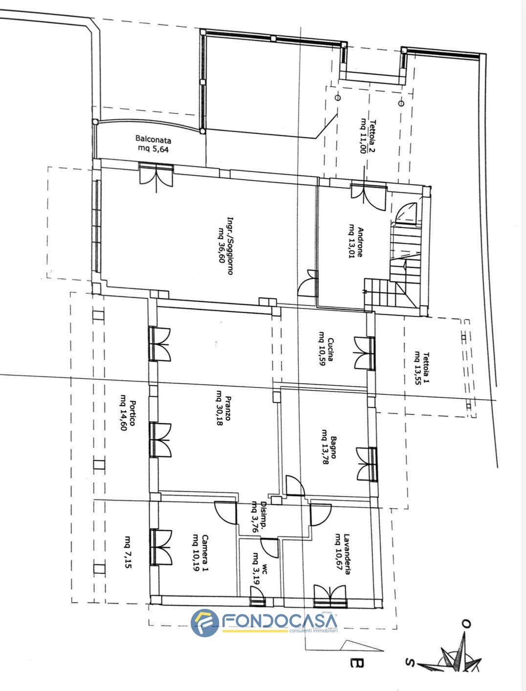
Fondocasa Salerno propone in vendita uno splendido appartamento al piano terra di una villa situata ad Agropoli, in una tranquilla zona residenziale.
La villa composta da due appartamenti, oltre ad una spaziosa mansarda.
L'appartamento gode di un ingresso comune con portone blindato, che garantisce un alto livello di sicurezza.
L'appartamento, di 133 mq, circondato da un bellissimo giardino di circa 450 mq, perfetto per godersi momenti di relax all'aria aperta in totale privacy.
L'ingresso principale si apre su un ampio e luminoso soggiorno, dotato di camino, che si affaccia sul giardino tramite una porta finestra.
La cucina, anch'essa con accesso diretto al giardino, completa la zona giorno.
La zona notte composta da due comode camere da letto e due bagni, tutti con affaccio sul giardino.
La disposizione degli ambienti garantisce privacy e tranquillit, perfetta per una famiglia o per chi desidera un'abitazione accogliente e funzionale.
A completare la propriet, un pratico deposito di 45 mq, ideale per riporre attrezzi da giardino o da utilizzare come posto auto. Non perdere l'opportunit di acquistare questa meravigliosa casa, che offre una combinazione perfetta di comfort, privacy e sicurezza, in una delle zone pi ambite di Agropoli.
Contattaci per maggiori informazioni e per prenotare una visita. Contatta l'inserzionista

SalernoSalerno
Corso Garibaldi, 172
84122, Salerno (Salerno)
Visualizza Telefono

INFORMAZIONI SULL'IMMOBILE

  • Riferimento: 409
  • Tipologia: Casa indipendente in Vendita
  • Locali: 5 Locali
  • Stato: Ristrutturato
  • Bagni: 2
  • Prezzo: 260.000 €
  • Prezzo al mq: 1.857 €
  • Riscaldamento: Autonomo
  • Giardino: Privato
  • Modificato il: 27/03/2026
  • Scheda: SC9629171

Stabile

  • Classe Energetica: n.d.

Mappa e indirizzo

Casa indipendente sito in via don aldo borrelli, 7
84043 Agropoli (Salerno)
mappa mostra l'annuncio su mappa

Galleria Fotografica

Contatta l'inserzionista

Salerno

Salerno di Salerno propone in vendita questo immobile, contattali subito!

Annunci immobiliari a Agropoli (SA)

Copyright Š 2026 PCase.it. All rights reserved. Sede operativa MILANO. P.IVA 08508420968 - Condizioni d'uso e privacy