Preferiti

Sponsorizza

Stampa

Casa indipendente in vendita con box a Civitella del Tronto

  • 180.000€
  • 280 mq
  • Vendesi

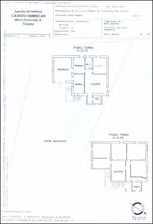
Civitella del Tronto, frazone villa Lempa, in posizione panoramica, con vista sulla vallata, casa indipendente di mq 280, divisa in due unit abitative cosl divise: al piano terra soggiorno, cucinotto, bagno, due camere, singola e matrimoniale, cantina e garage.
Al piano primo, soggiorno con angolo cottura, quattro camere e bagno.
Completa la propriet un giardino di circa 1000 mq. Contatta l'inserzionista

Ciccarelli DanielaCiccarelli Daniela
Corso Trento e Trieste, 6B
63100, Bolzano (Bolzano)
Visualizza Telefono

INFORMAZIONI SULL'IMMOBILE

  • Riferimento: 15500
  • Tipologia: Casa indipendente in Vendita
  • Bagni: 2
  • Prezzo: 180.000 €
  • Prezzo al mq: 643 €
  • Spazio Auto: Box singolo
  • Modificato il: 09/09/2015
  • Scheda: SC9572903

Stabile

  • Classe Energetica: n.d.

Galleria Fotografica

Contatta l'inserzionista

Ciccarelli Daniela

Ciccarelli Daniela di Bolzano propone in vendita questo immobile, contattali subito!

Annunci immobiliari a Civitella del Tronto (TE)

Copyright Š 2026 PCase.it. All rights reserved. Sede operativa MILANO. P.IVA 08508420968 - Condizioni d'uso e privacy