Preferiti

Sponsorizza

Stampa

Casa indipendente in vendita con giardino a Cimadolmo in via don g. campion

  • 355.000€
  • 5 locali
  • 136 mq
  • Vendesi

Singola in contesto di residence in vendita a Cimadolmo.
In zona San Michele di Piave, a Cimadolmo, sorge questa splendida casa indipendente in vendita, attualmente in fase di costruzione in consegna ad inizio 2026 salvo accordi diversi.
L' immobile inserito in un contesto di residence, composto da dieci abitazioni separate dai relativi garage, ognuna con giardino di propriet (adibita su richiesta zona barbecue e ricovero attrezzi) e un' area verde comune posta centralmente.
Si caratterizza per le facciate in sassi del Piave, in perfetta armonia con l'ambiente circostante.
L'abitazione si sviluppa su due piani, travati a vista in legno di abete antico e stipiti in pietra.
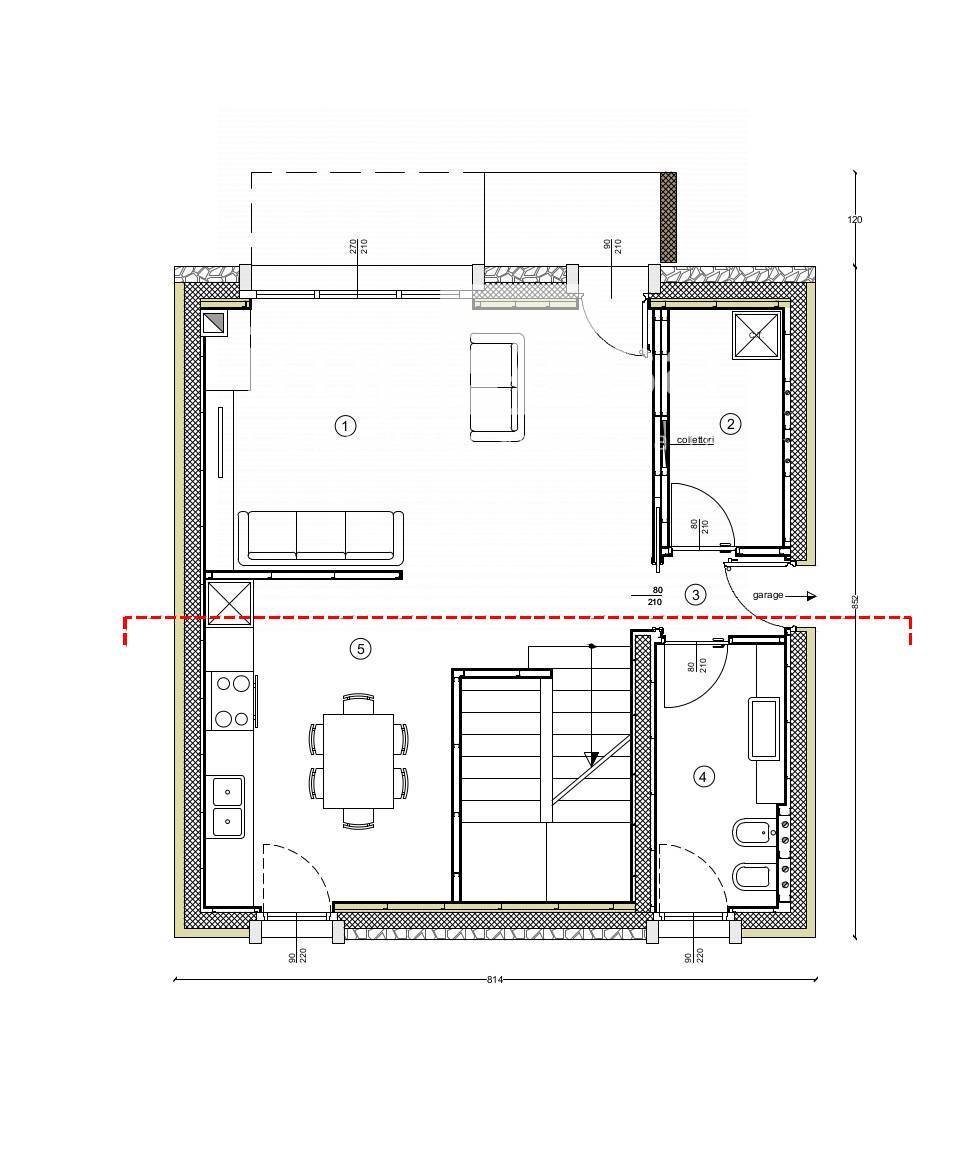
Al piano terra l'ingresso principale si apre su un luminoso soggiorno dalle ampie vetrate che si affacciano sul giardino privato circostante e la corte comune.
La cucina separata dal soggiorno abitabile, poi troviamo un ripostiglio il bagno di servizio e l'accesso diretto al garage.
Al primo piano una camera matrimoniale con bagno (o a richiesta cabina armadio), due camere singole e un ulteriore bagno.
L' abitazione sar in classe A4 fornita di fotovoltaico, pompa di calore, riscaldamento e raffrescamento a pavimento di ultima generazione, per un comfort ottimale in ogni stagione, una soluzione eco-sostenibile che garantisce un notevole risparmio sulle bollette.
Serramenti in legno con vetro antisfondamento completi di oscuri e zanzariere.
Completa la propriet anche un posto auto esterno scoperto.
Costruita con materiali di alta qualit e finiture moderne, questa casa indipendente rappresenta l'ideale per chi desidera vivere in una zona tranquilla e residenziale, a pochi passi da tutti i servizi e le comodit della vita quotidiana.
Non perdere l'opportunit di acquistare una casa indipendente perch in questa fase, ancora possibile scegliere le finiture da capitolato e decidere anche una diversa distribuzione degli spazi interni potendola cos personalizzare secondo i propri gusti ed esigenze.
Per maggiori informazioni su questa abitazione singola di nuova costruzione in vendita a Cimadolmo, potete contattare senza impegno l'agenzia immobiliare impREsa di Silea telefonando al N 0422/460300 citando il rif I/SMN279-C Visitate anche il nostro sito internet ***.*******.** Contatta l'inserzionista

impREsa SileaimpREsa Silea
Via Callalta, 40
31057, Silea (Treviso)
Visualizza Telefono

INFORMAZIONI SULL'IMMOBILE

  • Riferimento: I/SMN279-C2
  • Tipologia: Casa indipendente in Vendita
  • Locali: 5 Locali
  • Piano: Terra
  • Bagni: 3
  • Prezzo: 355.000 €
  • Prezzo al mq: 2.610 €
  • Riscaldamento: Autonomo
  • Giardino: Privato
  • Spazio Auto: Box singolo
  • Modificato il: 17/12/2025
  • Scheda: SC9534284

Stabile

  • Anno: 2024
  • Piano: Terra su 2 totali
A4

Mappa e indirizzo

Casa indipendente sito in via don g. campion
31010 Cimadolmo (Treviso)
mappa mostra l'annuncio su mappa

Galleria Fotografica

Contatta l'inserzionista

impREsa Silea

impREsa Silea di Silea propone in vendita questo immobile, contattali subito!

Annunci simili

Annunci immobiliari a Cimadolmo (TV)

Copyright Š 2026 PCase.it. All rights reserved. Sede operativa MILANO. P.IVA 08508420968 - Condizioni d'uso e privacy