Preferiti

Sponsorizza

Stampa

Casa indipendente in vendita a Canosa di Puglia in via don minzoni 8

  • trattativa riservata
  • 5 locali
  • 200 mq
  • Vendesi

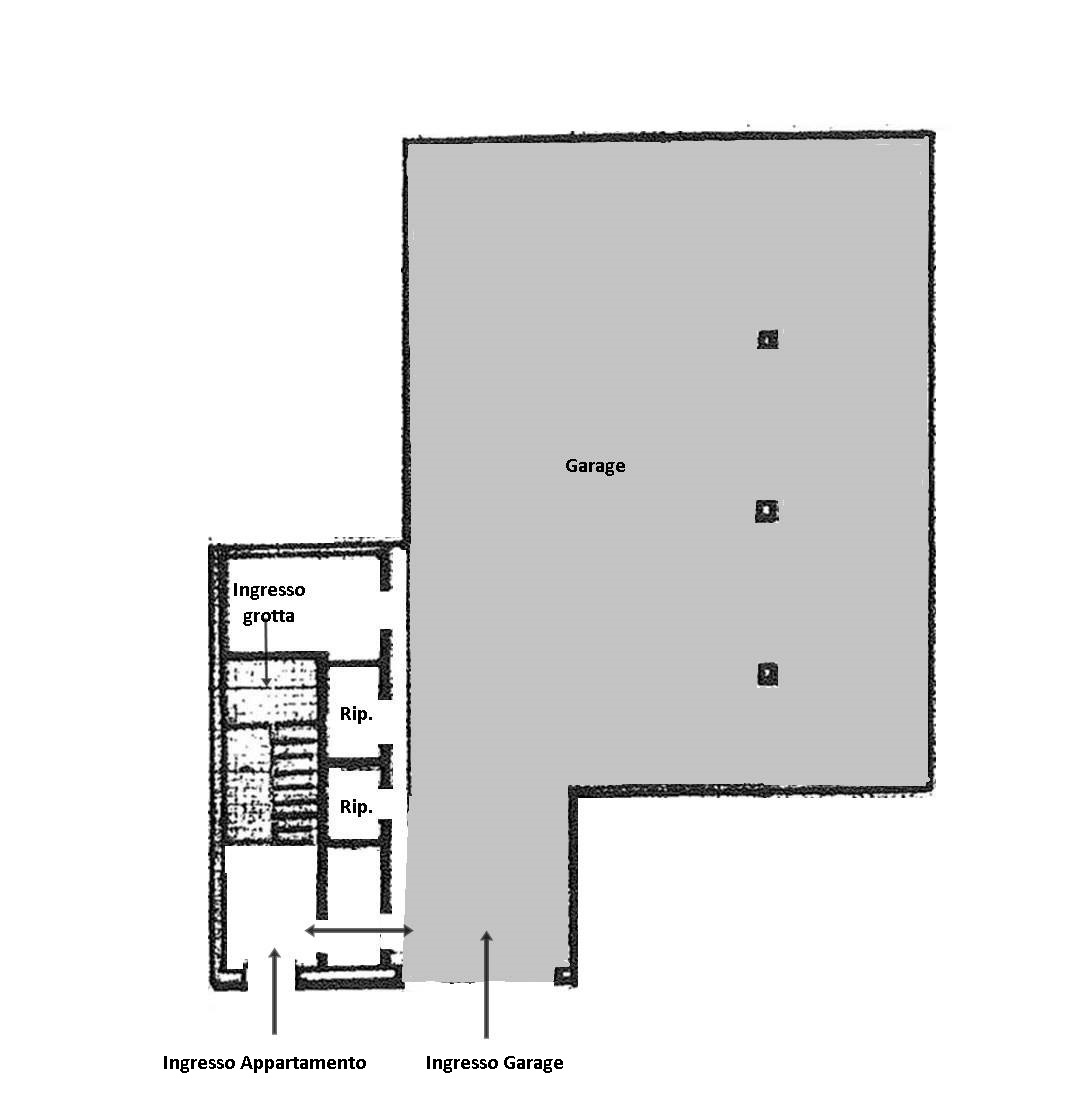
In via Don Minzoni, a due passi dal centro, imponente casa indipendente su unico livello di 180 mq in ottime condizioni.
La casa composta da un grande salone che si affaccia su una veranda di 60 mq, soggiorno con cucinino, tre camere da letto, doppio servizio ed ampia terrazza con pergolato con ampio vano con bagno.
La casa provvista di tutti i confort, impianto di allarme e infissi a doppio taglio termico.
Garage a piano strada di 240 mq con una volta molto alta. Una casa definitiva per una famiglia che ha bisogno di spazio e vera indipendenza. Contatta l'inserzionista

Soluzione Casa di Pinnelli MicheleSoluzione Casa di Pinnelli Michele
via Kennedy, 2
76012, Canosa di Puglia (Barletta-Andria-Trani)
Visualizza Telefono

INFORMAZIONI SULL'IMMOBILE

  • Riferimento: R801
  • Tipologia: Casa indipendente in Vendita
  • Locali: 5 Locali
  • Piano: Primo
  • Stato: Ottimo
  • Bagni: 3
  • Riscaldamento: Autonomo
  • Modificato il: 07/01/2025
  • Scheda: SC9575005

Stabile

  • Piano: 1
G

Mappa e indirizzo

Casa indipendente sito in via don minzoni, 8
70053 Canosa di Puglia (Barletta-Andria-Trani)
mappa mostra l'annuncio su mappa

Galleria Fotografica

Contatta l'inserzionista

Soluzione Casa di Pinnelli Michele

Soluzione Casa di Pinnelli Michele di Canosa di Puglia propone in vendita questo immobile, contattali subito!

Annunci simili

Annunci immobiliari a Canosa di Puglia (BT)

Copyright Š 2026 PCase.it. All rights reserved. Sede operativa MILANO. P.IVA 08508420968 - Condizioni d'uso e privacy