Preferiti

Sponsorizza

Stampa

Casa indipendente in vendita con giardino a San Benedetto del Tronto

  • 210.000€
  • 3 locali
  • 100 mq
  • Vendesi

SAN BENEDETTO DEL TRONTO - Via Colle Euganei - Proponiamo in vendita una propriet unica nel suo genere, situata in posizione collinare e panoramica a soli 5 minuti di auto dal centro di San Benedetto del Tronto.
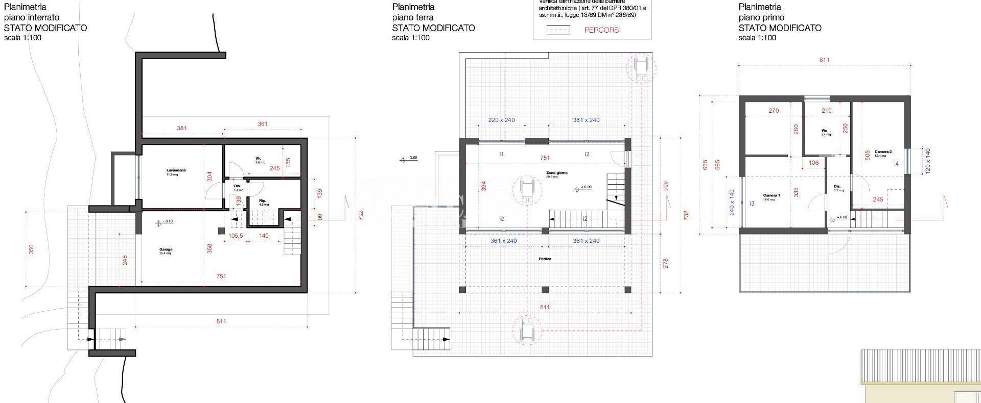
La tenuta si compone di un ettaro di terreno agricolo (10.000 m), perfettamente adatto a diverse coltivazioni, quali uliveti e frutteti, o semplicemente per chi desidera vivere immerso nel verde e nella quiete della natura ed un lotto di circa 200 m, di cui 100 m edificabili, ideale per la realizzazione di una casa indipendente, una villa o una piccola struttura ricettiva.
gi stato presentato in Comune un progetto che prevede la costruzione di un'abitazione disposta su due livelli fuori terra, di circa 50 m ca ciascuno, nel rispetto della volumetria esistente.
Progetto approvato.
Suddivisione interna prevista: soggiorno con angolo cottura open space al piano terra, due camere da letto di cui una con cabina armadio ed un bagno al piano primo.
Rustico con un lato fuori terra con ampio garage e/o rustico, bagno, locale lavanderia, ripostiglio.
Inoltre, vi la possibilit di realizzare un piano interrato di ampiezza variabile, secondo le esigenze dell'acquirente, offrendo cos un'ulteriore opportunit di ampliamento degli spazi abitativi.
La propriet gode di una vista mozzafiato sul mare e sulla citt, incorniciata dallo splendido scenario naturale delle colline retrostanti, che garantiscono riservatezza, tranquillit e un'eccellente qualit dell'aria. Contatta l'inserzionista

Re Casa S.r.l.s.Re Casa S.r.l.s.
Via San Francesco n. 13 b/c
63074, San Benedetto del Tronto (Ascoli Piceno)
Visualizza Telefono

INFORMAZIONI SULL'IMMOBILE

  • Riferimento: 9667
  • Tipologia: Casa indipendente in Vendita
  • Locali: 3 Locali (2 camere con doppi servizi)
  • Prezzo: 210.000 €
  • Prezzo al mq: 2.100 €
  • Riscaldamento: Autonomo
  • Giardino: Privato
  • Modificato il: 11/12/2025
  • Scheda: SC9517251

Stabile

  • Classe Energetica: n.d.

Galleria Fotografica

Contatta l'inserzionista

Re Casa S.r.l.s.

Re Casa S.r.l.s. di San Benedetto del Tronto propone in vendita questo immobile, contattali subito!

Annunci simili

Annunci immobiliari a San Benedetto del Tronto (AP)

Copyright Š 2026 PCase.it. All rights reserved. Sede operativa MILANO. P.IVA 08508420968 - Condizioni d'uso e privacy